Подпишитесь на новости Villagio
Мы ценим ваше время
Дом с видом на озеро в современном КП Павловы Озера.
Надежный кирпичный дом 234 м2, расположен на возвышенности, два этажа, участок правильной формы 10,5 соток — идеальное предложение для тех, кто ценит комфорт и качество.
Планировка:
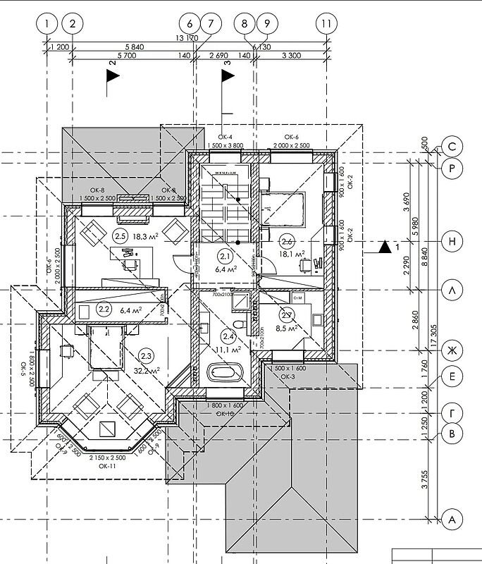
- 1 этаж: просторная гостиная с выходом на террасу (открытая зона для общения и приёма гостей), уютная кухня‑столовая с панорамными окнами, спальня на первом этаже, санузел, холл, тамбур, котельная с отдельным входом.
- 2 этаж: спальня с эркерным окном и видом на озеро, кабинет , гардеробная, ванная, детская спальня, постирочная.
- Подходит для постоянного проживания, удачная планировка позволяет использовать дом под различные сценарии жизни.
Ключевые преимущества:
- Панорамный вид на главное озеро.
- Большая территория 10,5 соток правильной формы — удобство использования и ландшафтного оформления.
- Стены -качественный материал Poroterm -теплая керамика, что позволяет сохранять тепло зимой и прохладу летом.
-Фундамент- монолитная плита из бетона повышенной прочности. Выполнена полная гидро- и теплоизоляция фундамента, что защищает от возникновения сырости и плесени и гарантирует сохранность ремонта на десятилетия. Все перекрытия и лестницы так же выполнены из монолита повышенной прочности.
-Кровля- утепленная кровля, утеплитель Технониколь, трехслойная гидроизоляционная мембрана Faracs, пароизоляционная мембрана, акриловый скотч по контуру внутри дома.
-Окна высокоэффективные, с повышенной шумоизоляцией и влагонепроницаемым профилем 75мм, с атермальным напылением от ультрафиолета, что позволяет держать в доме заданную температуру, и не зависеть от внешних факторов. Заводская тонировка позволяет сохранять приватность, тк со стороны улицы окна непрозрачные, но прозрачные изнутри дома.
-Входная бронированная дверь с термоизоляцией и шумоподавлением.
-Откатные ворота с электроприводом и фотоэлементами, для комфортного использования - все на пульте управления.
Облицовка- натуральный клинкерный кирпич, надежный и эстетичный, в эксплуатации не требует дополнительных затрат по уходу, десятилетиями сохраняет первозданный вид.
Участок - выровнен и отсыпан грунтом.
Жизнь в поселке «Павловы Озера»:
- Удобный подъезд: 14 км от МКАД по Новорижскому шоссе.
- Большое озеро с пляжем и прогулочная набережная — идеальное место для семейного отдыха и спорта.
- Аллеи и лесопарк —всегда свежий воздух, прогулки, безопасная среда для детей.
-Богатая инфраструктура пгт Нахабино: здесь есть взрослая поликлиника ФГБУ 3 ЦВКГ им. А.А. Вишневского Минобороны РФ, центр молекулярной диагностики CMD, гимназия №4 имени Героя России А.В. Водопьянова, школа фигурного катания Марии Орловой, теннисный клуб Nahabinotennisclub, спортивный комплекс «ФОК Нахабино» который предлагает разнообразные виды спорта: плавание, тренажерный зал и хореографические занятия.
Делегируйте подбор или продажу экспертам вашего уровня
искусство загородной жизниПолучите персональную коллекцию от эксперта Villagio




Дом с видом на озеро в современном КП Павловы Озера.
Надежный кирпичный дом 234 м2, расположен на возвышенности, два этажа, участок правильной формы 10,5 соток — идеальное предложение для тех, кто ценит комфорт и качество.
Планировка:
- 1 этаж: просторная гостиная с выходом на террасу (открытая зона для общения и приёма гостей), уютная кухня‑столовая с панорамными окнами, спальня на первом этаже, санузел, холл, тамбур, котельная с отдельным входом.
- 2 этаж: спальня с эркерным окном и видом на озеро, кабинет, гардеробная, ванная, детская спальня, постирочная.
- Подходит для постоянного проживания, удачная планировка позволяет использовать дом под различные сценарии жизни.
Ключевые преимущества:
- Панорамный вид на главное озеро.
- Большая территория 10,5 соток правильной формы — удобство использования и ландшафтного оформления.
- Стены -качественный материал Poroterm -теплая керамика, что позволяет сохранять тепло зимой и прохладу летом.
-Фундамент- монолитная плита из бетона повышенной прочности. Выполнена полная гидро- и теплоизоляция фундамента, что защищает от возникновения сырости и плесени и гарантирует сохранность ремонта на десятилетия. Все перекрытия и лестницы так же выполнены из монолита повышенной прочности.
-Кровля- утепленная кровля, утеплитель Технониколь, трехслойная гидроизоляционная мембрана Faracs, пароизоляционная мембрана, акриловый скотч по контуру внутри дома.
-Окна высокоэффективные, с повышенной шумоизоляцией и влагонепроницаемым профилем 75 мм, с атермальным напылением от ультрафиолета, что позволяет держать в доме заданную температуру, и не зависеть от внешних факторов. Заводская тонировка позволяет сохранять приватность, тк со стороны улицы окна непрозрачные, но прозрачные изнутри дома.
-Входная бронированная дверь с термоизоляцией и шумоподавлением.
-Откатные ворота с электроприводом и фотоэлементами, для комфортного использования — все на пульте управления.
Облицовка- натуральный клинкерный кирпич, надежный и эстетичный, в эксплуатации не требует дополнительных затрат по уходу, десятилетиями сохраняет первозданный вид.
Участок — выровнен и отсыпан грунтом.
Жизнь в поселке «Павловы Озера»:
- Удобный подъезд: 14 км от МКАД по Новорижскому шоссе.
- Большое озеро с пляжем и прогулочная набережная — идеальное место для семейного отдыха и спорта.
- Аллеи и лесопарк —всегда свежий воздух, прогулки, безопасная среда для детей.
-Богатая инфраструктура пгт Нахабино: здесь есть взрослая поликлиника ФГБУ 3 ЦВКГ им. А. А. Вишневского Минобороны РФ, центр молекулярной диагностики CMD, гимназия №4 имени Героя России А. В. Водопьянова, школа фигурного катания Марии Орловой, теннисный клуб Nahabinotennisclub, спортивный комплекс «ФОК Нахабино» который предлагает разнообразные виды спорта: плавание, тренажерный зал и хореографические занятия.