Подпишитесь на новости Villagio
Мы ценим ваше время
Уникальный загородный дом «Dune» в живописном посёлке Павловы Озёра — жилище, гармонично объединяющее комфорт, изысканный дизайн и передовые технологии.
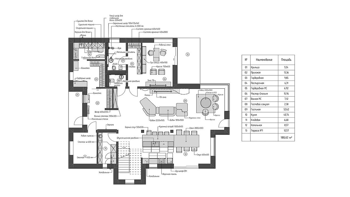
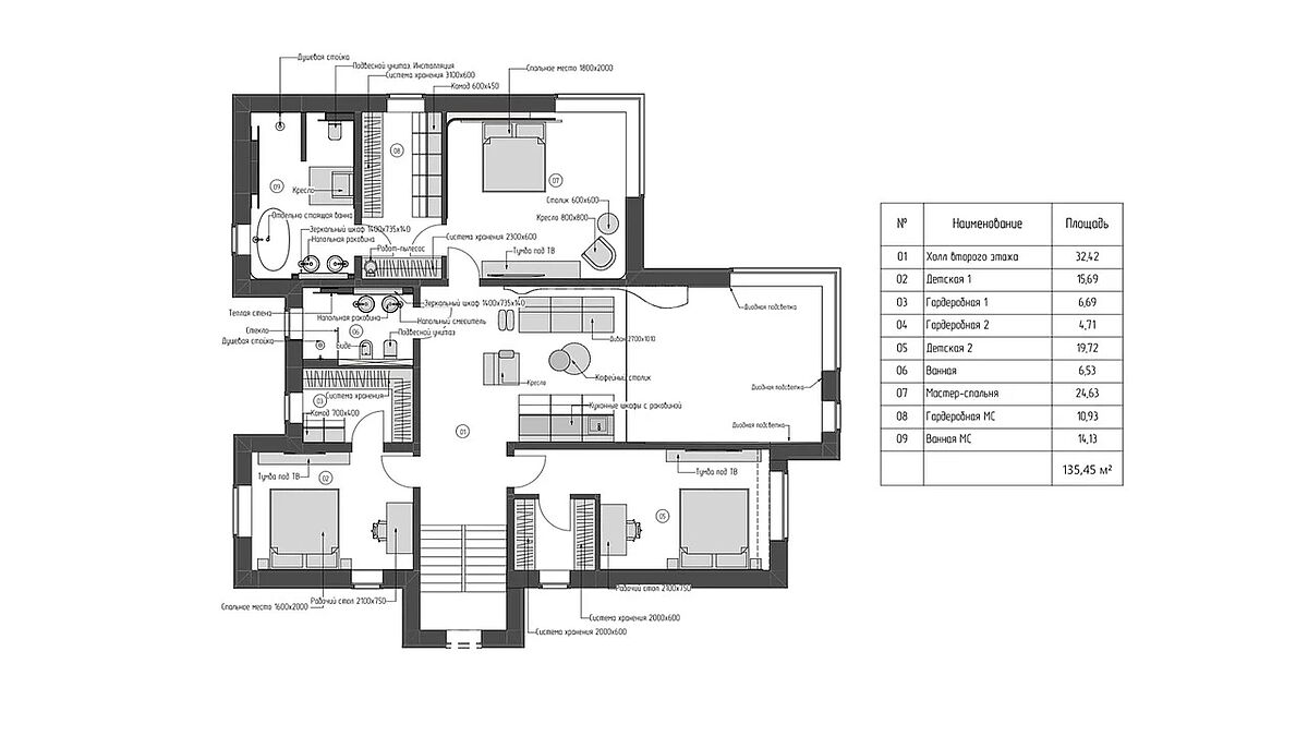
Дом общей площадью 389 м2 на земельном участке 10,5 соток. Потолки высотой 3,2 метра создают дополнительное чувство свободы и пространства. Внутреннее пространство помимо общих зон включает 3 спальни, 4 санузла и кабинет.
Просторный хозяйский блок площадью 50 квадратных метров располагает панорамными окнами, открывающими виды на тихий пруд. Для детей предусмотрены две отдельные комнаты с индивидуальными гардеробными, обеспечивающие максимум комфорта и приватности.
Первый этаж включает рабочую зону с возможностью отдельного входа и личным санузлом. Кухня-гостиная впечатляет своими размерами (90 Кв.м) и функциональностью благодаря двум островам.
Архитектурный облик дома также заслуживает особого внимания. Облицовка выполнена в монохромной гамме тёмно-коричневого цвета, дополненная выразительной фактурой 3D-кладки и уникальной конструкцией крыши с глубокими свесами, создающими впечатление лёгкости и воздушности. Вечером здание преображается благодаря продуманному внешнему освещению, подчёркивающему эстетику архитектуры и делая этот объект настоящим произведением искусства.
Система «Умный дом», управляемой десятками заранее настроенных сценариев, позволяющих контролировать климат, освещение и даже карнизы автоматически. Безрамное остекление создаёт иллюзию бесконечности пространства, позволяя наслаждаться окружающим пейзажем круглый год.
Комфорт жильцов обеспечен современной приточно-вытяжной вентиляционной системой производства Голландии («Blizzard»), гарантирующей свежий воздух и благоприятный микроклимат внутри помещений. Внутренняя отделка соответствует высокому стандарту качества Q4, инженерные коммуникации соответствуют уровню класса A+, включая итальянскую сантехнику марки Salini.
Павловы Озёра – премиальный коттеджный поселок, где природные богатства Подмосковья сочетаются с удобством городской инфраструктуры, создавая идеальное место для жизни.
В посёлке близость к природе оптимально сочетается с лёгким доступом к основным благам современного мегаполиса. Природа начинается прямо у порога дома. Жители дышат чистым воздухом, наслаждаются тишиной и уединением, прогуливаются по лесу, расположенному в шаговой доступности, отдыхают на чистейшем внутреннем озере. Возле озера расположен благоустроенный пляж. Пешеходный бульвар, который ведет к сосновому бору, оборудован велосипедными дорожками, что подчеркивает премиальный класс посёлка.
Делегируйте подбор или продажу экспертам вашего уровня
искусство загородной жизниПолучите персональную коллекцию от эксперта Villagio




Уникальный загородный дом «Dune» в живописном посёлке Павловы Озёра — жилище, гармонично объединяющее комфорт, изысканный дизайн и передовые технологии.
Дом общей площадью 389 м2 на земельном участке 10,5 соток. Потолки высотой 3,2 метра создают дополнительное чувство свободы и пространства. Внутреннее пространство помимо общих зон включает 3 спальни, 4 санузла и кабинет.
Просторный хозяйский блок площадью 50 квадратных метров располагает панорамными окнами, открывающими виды на тихий пруд. Для детей предусмотрены две отдельные комнаты с индивидуальными гардеробными, обеспечивающие максимум комфорта и приватности.
Первый этаж включает рабочую зону с возможностью отдельного входа и личным санузлом. Кухня-гостиная впечатляет своими размерами (90 Кв.м) и функциональностью благодаря двум островам.
Архитектурный облик дома также заслуживает особого внимания. Облицовка выполнена в монохромной гамме тёмно-коричневого цвета, дополненная выразительной фактурой 3D-кладки и уникальной конструкцией крыши с глубокими свесами, создающими впечатление лёгкости и воздушности. Вечером здание преображается благодаря продуманному внешнему освещению, подчёркивающему эстетику архитектуры и делая этот объект настоящим произведением искусства.
Система «Умный дом», управляемой десятками заранее настроенных сценариев, позволяющих контролировать климат, освещение и даже карнизы автоматически. Безрамное остекление создаёт иллюзию бесконечности пространства, позволяя наслаждаться окружающим пейзажем круглый год.
Комфорт жильцов обеспечен современной приточно-вытяжной вентиляционной системой производства Голландии («Blizzard»), гарантирующей свежий воздух и благоприятный микроклимат внутри помещений. Внутренняя отделка соответствует высокому стандарту качества Q4, инженерные коммуникации соответствуют уровню класса A+, включая итальянскую сантехнику марки Salini.
Павловы Озёра — премиальный коттеджный поселок, где природные богатства Подмосковья сочетаются с удобством городской инфраструктуры, создавая идеальное место для жизни.
В посёлке близость к природе оптимально сочетается с лёгким доступом к основным благам современного мегаполиса. Природа начинается прямо у порога дома. Жители дышат чистым воздухом, наслаждаются тишиной и уединением, прогуливаются по лесу, расположенному в шаговой доступности, отдыхают на чистейшем внутреннем озере. Возле озера расположен благоустроенный пляж. Пешеходный бульвар, который ведет к сосновому бору, оборудован велосипедными дорожками, что подчеркивает премиальный класс посёлка.