Подпишитесь на новости Villagio
Мы ценим ваше время
Особняк в классичеком стиле, площадью 450 м² в живописном поселке "Павловы Озера".
Дом построен из высококачественных материалов и оснащен самой современной инженерией, обеспечивая максимальный уровень комфорта и удобства для вашей семьи.
Строительство и архитектура:
- Конструкция выполнена по технологии монолит-кирпич, гарантирующей долговечность и надежность строения.
- Внешняя отделка фасада выполнена из благородного материала — дагестанского песчанника, придающего дому элегантный внешний вид.
- Фальцевая кровля обеспечивает надежную защиту от любых погодных условий.
- Предусмотрен гараж и дополнительная парковочная зона.
Интерьер и удобство проживания:
- Высокие потолки, 4 метра на первом и 3,5 метра на втором этаже создают ощущение простора и свободы.
- Панорамные окна наполняют помещения естественным светом и открывают великолепный вид на окружающие пейзажи.
- Система теплых полов на обоих этажах гарантирует тепло и комфорт в любое время года.
- Приточно-вытяжная система с рекуперацией, канальное кондиционирование.
- Камин и подоконники выполнены из престижного испанского мрамора Nero Macina, чья выразительная структура с изящными белыми прожилками создаёт впечатление подлинной роскоши и демонстрирует превосходный вкус хозяина.
- Полы перового этажа из премиального керамогранита Grespania Travertino, обладающего уникальной способностью имитировать натуральный камень, а полы второго этажа покрыты высокопрочным кварц-винилом, сочетающим в себе эстетику дерева и износостойкость современных покрытий.
- Две черновые кухни позволяют организовать пространство для приготовления пищи наиболее удобным образом. Кухонные гарнитуры из шпона высокого качества.
Продуманная планировка:
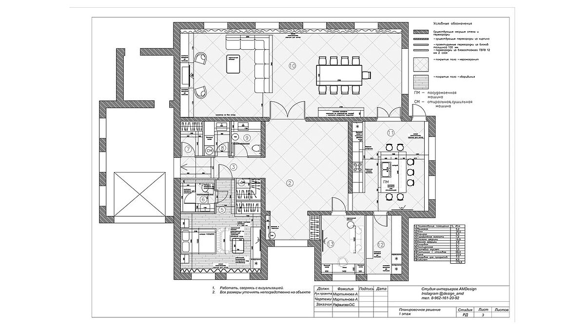
1 этаж: Прихожая, Кухня-столовая, Обеденная зона, Черновая кухня, Гостиная с изысканным камином, Кабинет, Гостевая спальня с гардеробной и санузлом, Гостевой санузел, Прачечная, гараж на 1 м/м.
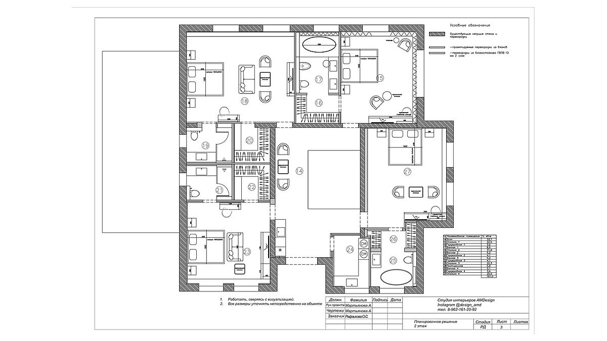
2 этаж:
- 4 комфортабельные спальни с собственными гардеробными комнатами и санузлами, Холл, Дополнительная черновая кухня, Постирочная комната.
Современные технологии и безопасность:
- Интеграция системы «Умный дом» позволяет управлять всеми системами дома через голосового помощника Яндекс.Алиса и приложение SmartLife.
- 9 камер видеонаблюдения обеспечивают круглосуточную охрану территории, позволяя удаленно следить за происходящим вокруг вашего жилища. Есть возможность открывать калитку через телефон.
- Умная система отопления ZONT контролирует температуру и автоматически регулирует подачу тепла, а также уведомляет вас о возможных проблемах, в случае протечек-автоматически перекрывает подачу воды.
- Освещение оснащено системой диммирования, позволяющей плавно регулировать интенсивность света
Местоположение и атмосфера:
Дом расположен на ухоженном участке 8,8 сотки в спокойной застроенной части поселка.
Павловы Озёра – премиальный коттеджный поселок, где природные богатства Подмосковья сочетаются с удобством городской инфраструктуры, создавая идеальное место для жизни. В посёлке близость к природе оптимально сочетается с лёгким доступом к основным благам современного мегаполиса. Природа начинается прямо у порога дома. Жители дышат чистым воздухом, наслаждаются тишиной и уединением, прогуливаются по лесу, расположенному в шаговой доступности, отдыхают на чистейшем внутреннем озере. Возле озера расположен благоустроенный пляж. Оборудованы прогулочные и беговые дорожки, универсальная спортивная площадка для большого тенниса, футбола и баскетбола, воркаут-зона.
Этот особняк станет идеальным выбором для тех, кто ценит комфорт, качество и красоту. Здесь ваша семья сможет наслаждаться каждым днем, проводя время в гармонии с природой и друг другом.
Делегируйте подбор или продажу экспертам вашего уровня
искусство загородной жизниПолучите персональную коллекцию от эксперта Villagio




Особняк в классичеком стиле, площадью 450 м² в живописном поселке «Павловы Озера».
Дом построен из высококачественных материалов и оснащен самой современной инженерией, обеспечивая максимальный уровень комфорта и удобства для вашей семьи.
Строительство и архитектура:
- Конструкция выполнена по технологии монолит-кирпич, гарантирующей долговечность и надежность строения.
- Внешняя отделка фасада выполнена из благородного материала — дагестанского песчанника, придающего дому элегантный внешний вид.
- Фальцевая кровля обеспечивает надежную защиту от любых погодных условий.
- Предусмотрен гараж и дополнительная парковочная зона.
Интерьер и удобство проживания:
- Высокие потолки, 4 метра на первом и 3,5 метра на втором этаже создают ощущение простора и свободы.
- Панорамные окна наполняют помещения естественным светом и открывают великолепный вид на окружающие пейзажи.
- Система теплых полов на обоих этажах гарантирует тепло и комфорт в любое время года.
- Приточно-вытяжная система с рекуперацией, канальное кондиционирование.
- Камин и подоконники выполнены из престижного испанского мрамора Nero Macina, чья выразительная структура с изящными белыми прожилками создаёт впечатление подлинной роскоши и демонстрирует превосходный вкус хозяина.
- Полы перового этажа из премиального керамогранита Grespania Travertino, обладающего уникальной способностью имитировать натуральный камень, а полы второго этажа покрыты высокопрочным кварц-винилом, сочетающим в себе эстетику дерева и износостойкость современных покрытий.
- Две черновые кухни позволяют организовать пространство для приготовления пищи наиболее удобным образом. Кухонные гарнитуры из шпона высокого качества.
Продуманная планировка:
1 этаж: Прихожая, Кухня-столовая, Обеденная зона, Черновая кухня, Гостиная с изысканным камином, Кабинет, Гостевая спальня с гардеробной и санузлом, Гостевой санузел, Прачечная, гараж на 1 м/м.
2 этаж:
- 4 комфортабельные спальни с собственными гардеробными комнатами и санузлами, Холл, Дополнительная черновая кухня, Постирочная комната.
Современные технологии и безопасность:
- Интеграция системы «Умный дом» позволяет управлять всеми системами дома через голосового помощника Яндекс.Алиса и приложение SmartLife.
- 9 камер видеонаблюдения обеспечивают круглосуточную охрану территории, позволяя удаленно следить за происходящим вокруг вашего жилища. Есть возможность открывать калитку через телефон.
- Умная система отопления ZONT контролирует температуру и автоматически регулирует подачу тепла, а также уведомляет вас о возможных проблемах, в случае протечек-автоматически перекрывает подачу воды.
- Освещение оснащено системой диммирования, позволяющей плавно регулировать интенсивность света
Местоположение и атмосфера:
Дом расположен на ухоженном участке 8,8 сотки в спокойной застроенной части поселка.
Павловы Озёра — премиальный коттеджный поселок, где природные богатства Подмосковья сочетаются с удобством городской инфраструктуры, создавая идеальное место для жизни. В посёлке близость к природе оптимально сочетается с лёгким доступом к основным благам современного мегаполиса. Природа начинается прямо у порога дома. Жители дышат чистым воздухом, наслаждаются тишиной и уединением, прогуливаются по лесу, расположенному в шаговой доступности, отдыхают на чистейшем внутреннем озере. Возле озера расположен благоустроенный пляж. Оборудованы прогулочные и беговые дорожки, универсальная спортивная площадка для большого тенниса, футбола и баскетбола, воркаут-зона.
Этот особняк станет идеальным выбором для тех, кто ценит комфорт, качество и красоту. Здесь ваша семья сможет наслаждаться каждым днем, проводя время в гармонии с природой и друг другом.