Подпишитесь на новости Villagio
Мы ценим ваше время
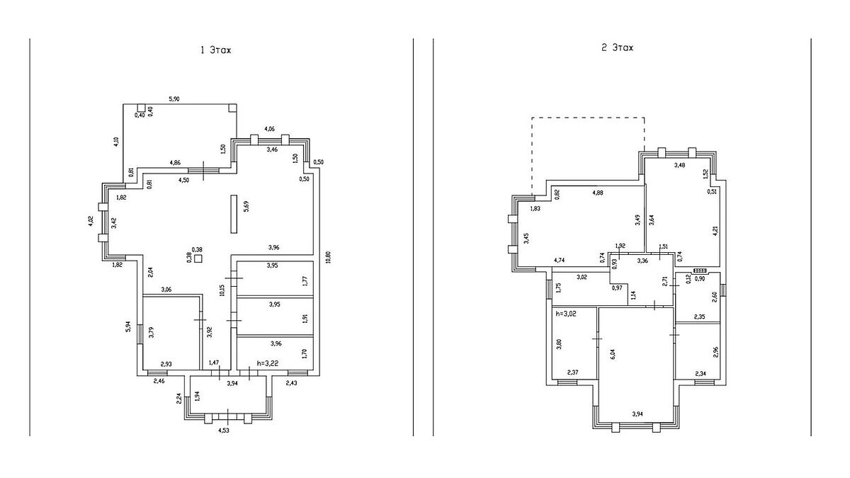
Двухэтажный новый дом 240 м2 "под ключ" на участке 6 соток возле парка в элитном посёлке "Новорижский".
Панорамное остекление наполняет интерьер естественным светом и создаёт ощущение единства с окружающей природой, а продуманное пространство обеспечивает комфортное проживание даже большой семье:
Первый этаж: кухня-гостиная с выходом на террасу, гостевая спальня/кабинет, санузел, гардеробная, котельная/постирочная, навес для двух автомобилей.
Второй этаж: мастер - спальня с санузлом и гардеробной, две спальни, санузел.
Подключены все необходимые центральные коммуникации.
Новорижский от Villagio Estate — коттеджный поселок бизнес-класса в Истринском районе Московской области, в 23 км от МКАД по Новорижскому шоссе. Поселок сочетает загородный комфорт с быстрым выездом в Москву (до 15 минут).
На территории обустроены три парка с искусственными озерами, променад и благоустроенная набережная. Один из водоёмов оборудован пляжем для купания. Для активного отдыха есть волейбольные и баскетбольные площадки, теннисные корты.
Жителям доступны ремонтно-эксплуатационная служба, служба быта, парковки и гостевая автостоянка. Для детей предусмотрены детская площадка и клуб. Образование обеспечивают две частные школы — «Новорижская школа» и Junior School, а также «Академия Знаний».
Посёлок закрыт, охраняется круглосуточно, оборудован видеонаблюдением и контрольно-пропускным пунктом. Вечернее освещение создаёт уют и безопасность.
Делегируйте подбор или продажу экспертам вашего уровня
искусство загородной жизниПолучите персональную коллекцию от эксперта Villagio




Двухэтажный новый дом 240 м2 «под ключ» на участке 6 соток возле парка в элитном посёлке «Новорижский».
Панорамное остекление наполняет интерьер естественным светом и создаёт ощущение единства с окружающей природой, а продуманное пространство обеспечивает комфортное проживание даже большой семье:
Первый этаж: кухня-гостиная с выходом на террасу, гостевая спальня/кабинет, санузел, гардеробная, котельная/постирочная, навес для двух автомобилей.
Второй этаж: мастер — спальня с санузлом и гардеробной, две спальни, санузел.
Подключены все необходимые центральные коммуникации.
Новорижский от Villagio Estate — коттеджный поселок бизнес-класса в Истринском районе Московской области, в 23 км от МКАД по Новорижскому шоссе. Поселок сочетает загородный комфорт с быстрым выездом в Москву (до 15 минут).
На территории обустроены три парка с искусственными озерами, променад и благоустроенная набережная. Один из водоёмов оборудован пляжем для купания. Для активного отдыха есть волейбольные и баскетбольные площадки, теннисные корты.
Жителям доступны ремонтно-эксплуатационная служба, служба быта, парковки и гостевая автостоянка. Для детей предусмотрены детская площадка и клуб. Образование обеспечивают две частные школы — «Новорижская школа» и Junior School, а также «Академия Знаний».
Посёлок закрыт, охраняется круглосуточно, оборудован видеонаблюдением и контрольно-пропускным пунктом. Вечернее освещение создаёт уют и безопасность.