Подпишитесь на новости Villagio
Мы ценим ваше время
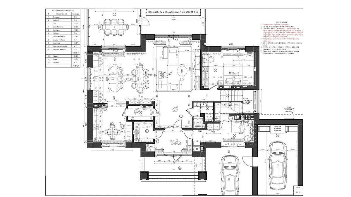
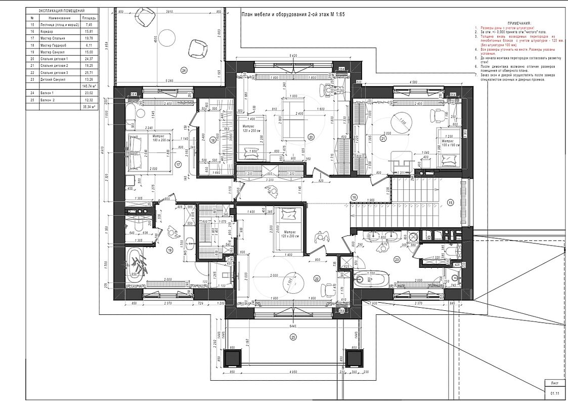
Просторный дом площадью 390 кв.м. предлагается под отделку.
Для строительства были применены исключительно высококачественные материалы и передовые технологии, гарантирующие долговечность и комфорт проживания. Кирпичная коробка надёжно защищает от непогоды и гарантирует тепло зимой и прохладу летом.
Строительство коробки дома полностью завершилось, дом готов к началу фасадных и внутренних отделочных работ. Для облицовки фасада уже закуплены панели из натурального гранита. Подключены центральные коммуникации, обеспечивающие бесперебойное комфортное проживание круглый год. Система подогрева труб гарантирует защиту от замерзания.
Панорамное остекление наполняет интерьер естественным светом и создаёт ощущение единства с окружающей природой, а продуманная планировка обеспечивает комфортное проживание даже большой семье. Помимо общих зон внутреннее пространство вмещает 5 спален, 3 санузла, террасу и гараж.
Уже залита плита под строительство собственной бани.
Дом расположен на участке 13 соток в тихом месте, вдали от городской суеты, но с удобствами современной инфраструктуры. Отличный вариант для постоянного проживания семьи любого состава или прекрасной дачи выходного дня.
Новорижский от Villagio Estate — коттеджный поселок бизнес-класса в Истринском районе Московской области, в 23 км от МКАД по Новорижскому шоссе. Поселок сочетает загородный комфорт с быстрым выездом в Москву (до 15 минут).
На территории обустроены три парка с искусственными озерами, променад и благоустроенная набережная. Один из водоёмов оборудован пляжем для купания. Для активного отдыха есть волейбольные и баскетбольные площадки, теннисные корты.
Жителям доступны ремонтно-эксплуатационная служба, служба быта, парковки и гостевая автостоянка. Для детей предусмотрены детская площадка и клуб. Образование обеспечивают две частные школы — «Новорижская школа» и Junior School, а также «Академия Знаний».
Посёлок закрыт, охраняется круглосуточно, оборудован видеонаблюдением и контрольно-пропускным пунктом. Вечернее освещение создаёт уют и безопасность.
Приглашаем на просмотр, звоните прямо сейчас и станьте владельцем вашего нового любимого места жительства! Этот дом - идеальное сочетание комфорта, качества строительства и природных красот загородной жизни.
Делегируйте подбор или продажу экспертам вашего уровня
искусство загородной жизниПолучите персональную коллекцию от эксперта Villagio




Просторный дом площадью 390 кв.м. предлагается под отделку.
Для строительства были применены исключительно высококачественные материалы и передовые технологии, гарантирующие долговечность и комфорт проживания. Кирпичная коробка надёжно защищает от непогоды и гарантирует тепло зимой и прохладу летом.
Строительство коробки дома полностью завершилось, дом готов к началу фасадных и внутренних отделочных работ. Для облицовки фасада уже закуплены панели из натурального гранита. Подключены центральные коммуникации, обеспечивающие бесперебойное комфортное проживание круглый год. Система подогрева труб гарантирует защиту от замерзания.
Панорамное остекление наполняет интерьер естественным светом и создаёт ощущение единства с окружающей природой, а продуманная планировка обеспечивает комфортное проживание даже большой семье. Помимо общих зон внутреннее пространство вмещает 5 спален, 3 санузла, террасу и гараж.
Уже залита плита под строительство собственной бани.
Дом расположен на участке 13 соток в тихом месте, вдали от городской суеты, но с удобствами современной инфраструктуры. Отличный вариант для постоянного проживания семьи любого состава или прекрасной дачи выходного дня.
Новорижский от Villagio Estate — коттеджный поселок бизнес-класса в Истринском районе Московской области, в 23 км от МКАД по Новорижскому шоссе. Поселок сочетает загородный комфорт с быстрым выездом в Москву (до 15 минут).
На территории обустроены три парка с искусственными озерами, променад и благоустроенная набережная. Один из водоёмов оборудован пляжем для купания. Для активного отдыха есть волейбольные и баскетбольные площадки, теннисные корты.
Жителям доступны ремонтно-эксплуатационная служба, служба быта, парковки и гостевая автостоянка. Для детей предусмотрены детская площадка и клуб. Образование обеспечивают две частные школы — «Новорижская школа» и Junior School, а также «Академия Знаний».
Посёлок закрыт, охраняется круглосуточно, оборудован видеонаблюдением и контрольно-пропускным пунктом. Вечернее освещение создаёт уют и безопасность.
Приглашаем на просмотр, звоните прямо сейчас и станьте владельцем вашего нового любимого места жительства! Этот дом — идеальное сочетание комфорта, качества строительства и природных красот загородной жизни.