Подпишитесь на новости Villagio
Мы ценим ваше время
Акция: при покупке дома с Villagio Realty вы получаете год сервиса - абсолютно бесплатно!
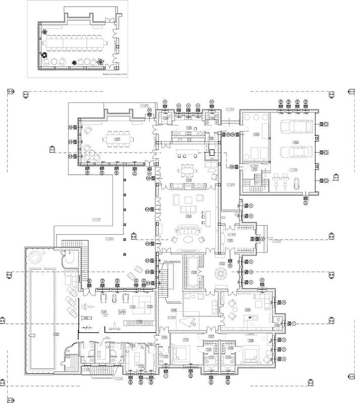
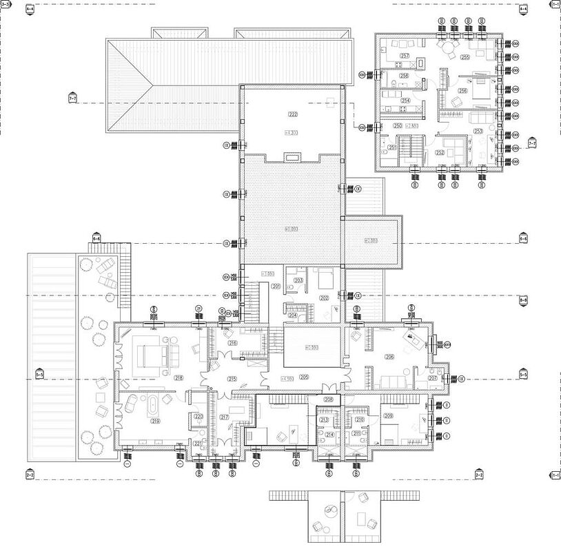
Эксклюзивное предложение Villagio Realty. Просторный особняк премиум-класса без внутренней отделки, идеально подходящий для проживания большой семьи.
Основный характеристики:
- Общая площадь резиденции: 2355 кв.м.
- Участок земли: 42 сотки, расположенный на берегу живописного водного канала.
Уникальные особенности проекта: бассейн, сауна, тренажёрный зал и просторный цокольный этаж многофункционального назначения.
Отдельно стоящий комплекс: двухэтажное строение площадью 180 кв.м., включающее вместительный трёхместный гараж и помещения второго этажа, предназначенные для размещения обслуживающего персонала.
Millennium Park — флагманский проект Villagio Estate, расположенный всего в 23 км от МКАД. Поселок создан как произведение ландшафтного искусства: в нем воплощены мотивы мировых культур — от венецианских каналов до восточных садов. На территории — 5 тематических парков, 10 каналов протяженностью 5 км, 7 озёр, на центральном озере обустроена пляжная зона.
Millennium Park предлагает все необходимое для комфортной жизни и отдыха: ресторан Millenium, детский сад «Робин Гуд», 7 современных детских площадок, теннисные корты, футбольное поле, площадки для пляжного волейбола и зоны для занятий спортом. Для активных жителей предусмотрен фитнес-клуб. В ближайшем окружении находится развитая инфраструктура Новой Риги: школы, детские сады, торговые центры, фитнес-клубы, салоны красоты, банки, туристические агентства, аптеки и многое другое.
Закрытая территория и строгая система контроля доступа гарантируют высокий уровень безопасности. Здесь царит атмосфера респектабельности и добрососедства, объединяющая успешных людей.
Делегируйте подбор или продажу экспертам вашего уровня
искусство загородной жизниПолучите персональную коллекцию от эксперта Villagio




Акция: при покупке дома с Villagio Realty вы получаете год сервиса — абсолютно бесплатно!
Эксклюзивное предложение Villagio Realty. Просторный особняк премиум-класса без внутренней отделки, идеально подходящий для проживания большой семьи.
Основный характеристики:
- Общая площадь резиденции: 2355 кв.м.
- Участок земли: 42 сотки, расположенный на берегу живописного водного канала.
Уникальные особенности проекта: бассейн, сауна, тренажёрный зал и просторный цокольный этаж многофункционального назначения.
Отдельно стоящий комплекс: двухэтажное строение площадью 180 кв.м., включающее вместительный трёхместный гараж и помещения второго этажа, предназначенные для размещения обслуживающего персонала.
Millennium Park — флагманский проект Villagio Estate, расположенный всего в 23 км от МКАД. Поселок создан как произведение ландшафтного искусства: в нем воплощены мотивы мировых культур — от венецианских каналов до восточных садов. На территории — 5 тематических парков, 10 каналов протяженностью 5 км, 7 озёр, на центральном озере обустроена пляжная зона.
Millennium Park предлагает все необходимое для комфортной жизни и отдыха: ресторан Millenium, детский сад «Робин Гуд», 7 современных детских площадок, теннисные корты, футбольное поле, площадки для пляжного волейбола и зоны для занятий спортом. Для активных жителей предусмотрен фитнес-клуб. В ближайшем окружении находится развитая инфраструктура Новой Риги: школы, детские сады, торговые центры, фитнес-клубы, салоны красоты, банки, туристические агентства, аптеки и многое другое.
Закрытая территория и строгая система контроля доступа гарантируют высокий уровень безопасности. Здесь царит атмосфера респектабельности и добрососедства, объединяющая успешных людей.