Подпишитесь на новости Villagio
Мы ценим ваше время
Строящийся двухэтажный дом в современном стиле в посёлке "Миллениум Парк".
Все коммуникации заведены, сдача без отделки декабрь 2025.
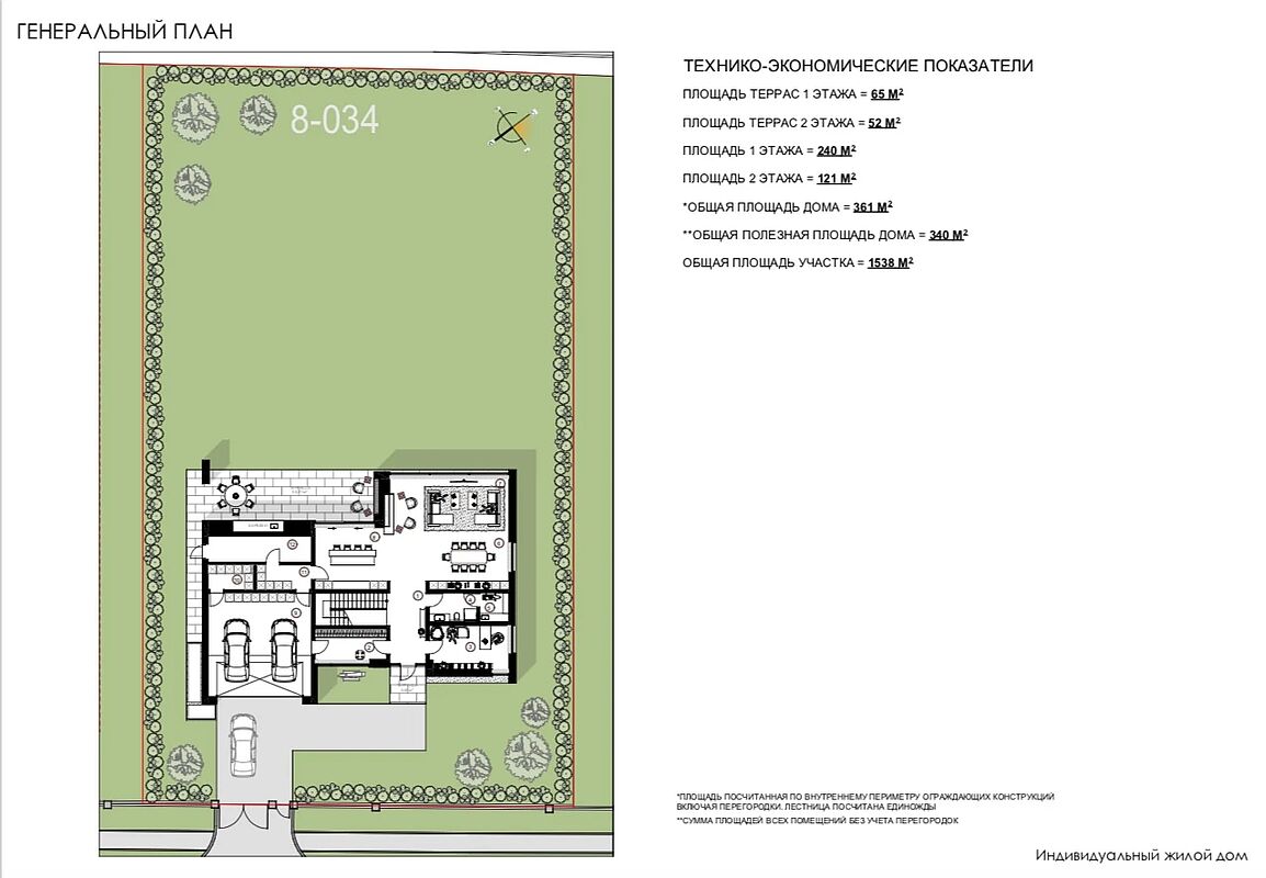
Площадь дома - 340 кв.м. Простые линии, премиальные материалы, плоская крыша все это делает внешний вид дома эффектным и запоминающимся.
Благодаря функциональной планировке каждое помещение удобное и практичное:
1 этаж: гостиная с выходом на террасу, кухня-столовая с кладовым помещением; гардеробная; кладовая; котельная; холл; гостевой санузел; спальня с санузлом; спальня персонала с санузлом и кладовой; постирочная; гараж на 2 автомобиля.
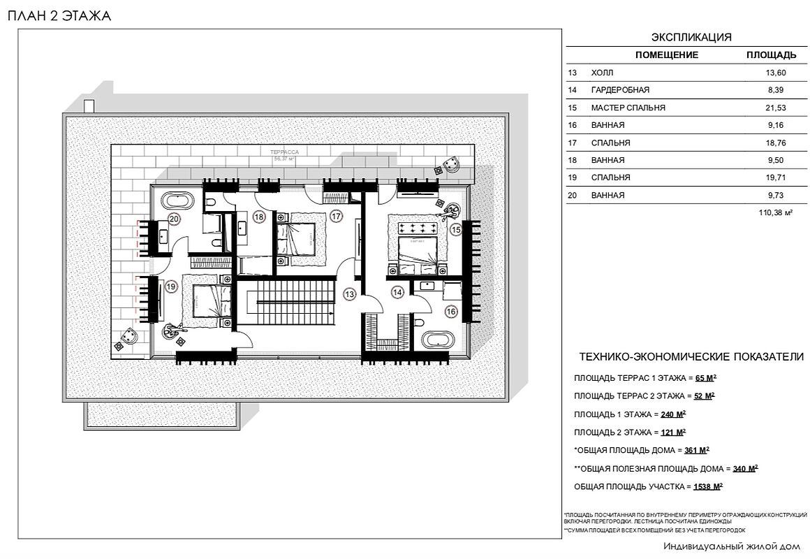
2 этаж: мастер-спальня с ванной комнатой и гардеробной; 2 спальни с индивидуальной ванной комнатой и гардеробной; холл. Все спальни имеют выход на террасы второго этажа.
Высокие потолки и панорамные окна обеспечивают максимальный доступ солнечного света и ощущение свободы пространства.
2 кладовые и хозяйственные помещения обеспечивают удобное хранение.
Гараж имеет несколько входом с улицы и дома.
Большие террасы позволяют наслаждаться свежим воздухом и видами природы.
Земельный участок 15,38 соток выровнен и облагорожен.
Дом находится в новом 8-м квартале КП Миллениум Парк в приватной части новой зоны застройки. Квартал новой очереди расположен в пяти минутах прогулки до парковых ансамблей и рукотворных каналов.
Millennium Park — флагманский проект Villagio Estate, расположенный всего в 23 км от МКАД. Поселок создан как произведение ландшафтного искусства: в нем воплощены мотивы мировых культур — от венецианских каналов до восточных садов. На территории — 5 тематических парков, 10 каналов протяженностью 5 км, 7 озёр, на центральном озере обустроена пляжная зона.
Millennium Park предлагает все необходимое для комфортной жизни и отдыха: ресторан Millenium, детский сад «Робин Гуд», 7 современных детских площадок, теннисные корты, футбольное поле, площадки для пляжного волейбола и зоны для занятий спортом. Для активных жителей предусмотрен фитнес-клуб. В ближайшем окружении находится развитая инфраструктура новой Риги.
Закрытая территория и строгая система контроля доступа гарантируют высокий уровень безопасности. Здесь царит атмосфера респектабельности и добрососедства, объединяющая успешных людей.
Этот объект представляет собой идеальный выбор для тех, кто ценит гармонию современного дизайна и роскошь комфортабельного жилья.
Делегируйте подбор или продажу экспертам вашего уровня
искусство загородной жизниПолучите персональную коллекцию от эксперта Villagio




Строящийся двухэтажный дом в современном стиле в посёлке «Миллениум Парк».
Все коммуникации заведены, сдача без отделки декабрь 2025.
Площадь дома — 340 кв.м. Простые линии, премиальные материалы, плоская крыша все это делает внешний вид дома эффектным и запоминающимся.
Благодаря функциональной планировке каждое помещение удобное и практичное:
1 этаж: гостиная с выходом на террасу, кухня-столовая с кладовым помещением; гардеробная; кладовая; котельная; холл; гостевой санузел; спальня с санузлом; спальня персонала с санузлом и кладовой; постирочная; гараж на 2 автомобиля.
2 этаж: мастер-спальня с ванной комнатой и гардеробной; 2 спальни с индивидуальной ванной комнатой и гардеробной; холл. Все спальни имеют выход на террасы второго этажа.
Высокие потолки и панорамные окна обеспечивают максимальный доступ солнечного света и ощущение свободы пространства.
2 кладовые и хозяйственные помещения обеспечивают удобное хранение.
Гараж имеет несколько входом с улицы и дома.
Большие террасы позволяют наслаждаться свежим воздухом и видами природы.
Земельный участок 15,38 соток выровнен и облагорожен.
Дом находится в новом 8-м квартале КП Миллениум Парк в приватной части новой зоны застройки. Квартал новой очереди расположен в пяти минутах прогулки до парковых ансамблей и рукотворных каналов.
Millennium Park — флагманский проект Villagio Estate, расположенный всего в 23 км от МКАД. Поселок создан как произведение ландшафтного искусства: в нем воплощены мотивы мировых культур — от венецианских каналов до восточных садов. На территории — 5 тематических парков, 10 каналов протяженностью 5 км, 7 озёр, на центральном озере обустроена пляжная зона.
Millennium Park предлагает все необходимое для комфортной жизни и отдыха: ресторан Millenium, детский сад «Робин Гуд», 7 современных детских площадок, теннисные корты, футбольное поле, площадки для пляжного волейбола и зоны для занятий спортом. Для активных жителей предусмотрен фитнес-клуб. В ближайшем окружении находится развитая инфраструктура новой Риги.
Закрытая территория и строгая система контроля доступа гарантируют высокий уровень безопасности. Здесь царит атмосфера респектабельности и добрососедства, объединяющая успешных людей.
Этот объект представляет собой идеальный выбор для тех, кто ценит гармонию современного дизайна и роскошь комфортабельного жилья.