Подпишитесь на новости Villagio
Мы ценим ваше время
Уютный, необычный, просторный, для всей семьи — этому особняку можно придумать множество эпитетов. Важно одно — каждый день здесь будет особенным. Красивые виды, свежий воздух, приятная тишина и необычная архитектура, которая, возможно, западет вам в душу.
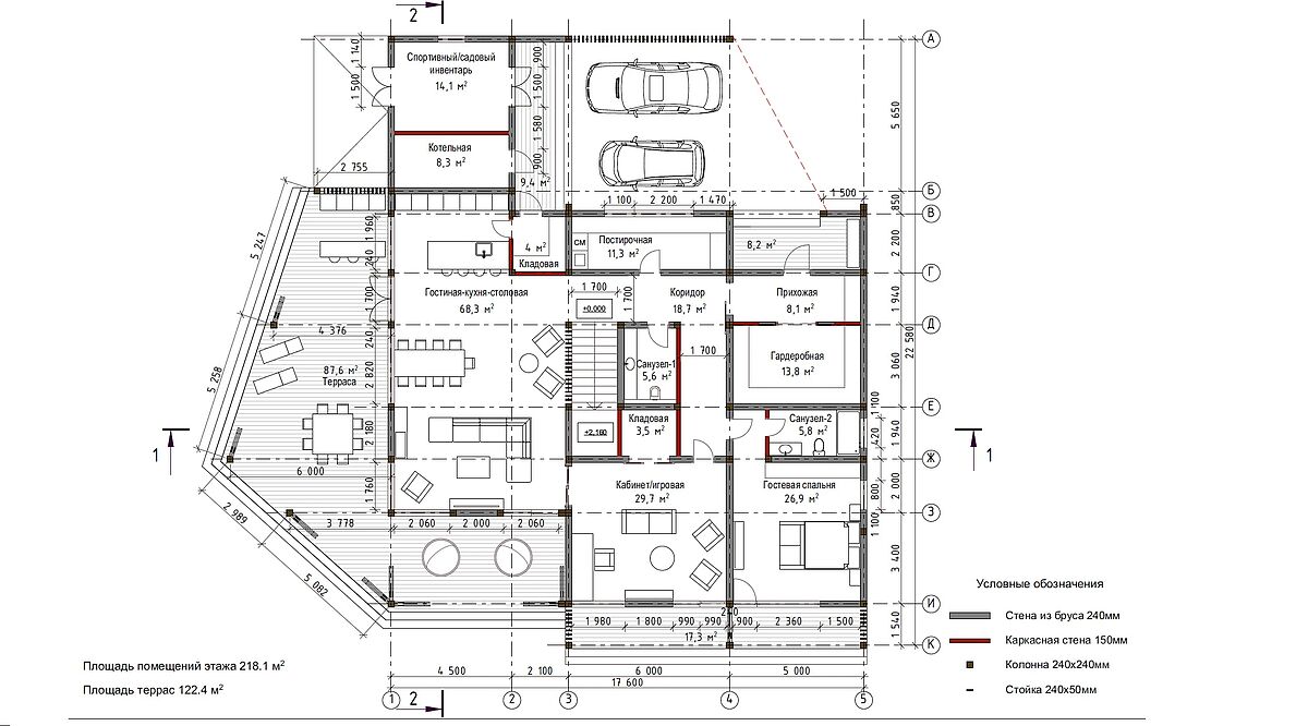
Это двухэтажный дом с 4 спальнями, 3 гардеробными и 4 ванными комнатами. На первом этаже традиционно находится гостиная, кухня и столовая — здесь они объединены в общее пространство, которое вы можете зонировать по своему вкусу. Отсюда есть выход на просторную террасу (87,6 кв.м). Ещё на первом этаже есть гостевая спальня, две ванные комнаты, гардеробная и кабинет, который можно оборудовать как игровую зону.
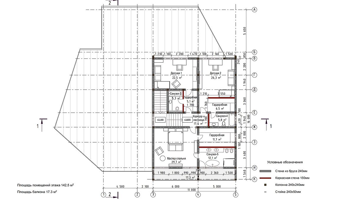
На втором этаже находится мастер-спальня и две простые спальни, а также две ванных комнаты и две гардеробных. Гараж на два машиноместа расположен на первом этаже дома.
Ваш сад — это 12 соток с подстриженной травой. При желании, вы можете создать свой ландшафтный дизайн — здесь достаточно места для воплощения своих идей.
Удачное расположение дома — рядом с парком и у живописного канала.
Дом продается без отделки — создавайте свой дизайн, продумывайте функционал комнат и получайте все преимущества жизни в коттеджном поселке.
Вы будете жить в Миллениум Парке, который называют «русской Венецией», за возведенные рукотворные водные каналы. Удивительная атмосфера поселка напоминает элитные кварталы пригорода Англии, Италии, Франции, Калифорнии. Любой особняк в Millennium Park легко представить в элитном европейском пригороде.
Это уникальный поселок Подмосковья и единственный в России обладатель награды FIABCI Prix d’Excellence — престижной международной архитектурной премии. По паркам и аллеям этого поселка можно гулять часами, наслаждаться европейской архитектурой и изысканными ландшафтными композициями. Сады поселка созданы по вдохновению красотой лучших парков мира: лондонского Hyde Park, китайского «Сада радости» Юй Юань, французского Версаля, итальянских садов виллы д’Эсте.
В этом поселке особое внимание уделено безопасности — это закрытый эксклюзивный клуб, куда не попасть без специального пропуска. Ваши дети могут спокойно играть парках и гулять по аллеям!
Миллениум Парк окружают первозданные леса, чистейший воздух и развитая инфраструктура Новой Риги. И всё это ближнее Подмосковье — до Москвы всего 19 км!
Делегируйте подбор или продажу экспертам вашего уровня
искусство загородной жизниПолучите персональную коллекцию от эксперта Villagio




Уютный, необычный, просторный, для всей семьи — этому особняку можно придумать множество эпитетов. Важно одно — каждый день здесь будет особенным. Красивые виды, свежий воздух, приятная тишина и необычная архитектура, которая, возможно, западет вам в душу.
Это двухэтажный дом с 4 спальнями, 3 гардеробными и 4 ванными комнатами. На первом этаже традиционно находится гостиная, кухня и столовая — здесь они объединены в общее пространство, которое вы можете зонировать по своему вкусу. Отсюда есть выход на просторную террасу (87,6 кв.м). Ещё на первом этаже есть гостевая спальня, две ванные комнаты, гардеробная и кабинет, который можно оборудовать как игровую зону.
На втором этаже находится мастер-спальня и две простые спальни, а также две ванных комнаты и две гардеробных. Гараж на два машиноместа расположен на первом этаже дома.
Ваш сад — это 12 соток с подстриженной травой. При желании, вы можете создать свой ландшафтный дизайн — здесь достаточно места для воплощения своих идей.
Удачное расположение дома — рядом с парком и у живописного канала.
Дом продается без отделки — создавайте свой дизайн, продумывайте функционал комнат и получайте все преимущества жизни в коттеджном поселке.
Вы будете жить в Миллениум Парке, который называют «русской Венецией», за возведенные рукотворные водные каналы. Удивительная атмосфера поселка напоминает элитные кварталы пригорода Англии, Италии, Франции, Калифорнии. Любой особняк в Millennium Park легко представить в элитном европейском пригороде.
Это уникальный поселок Подмосковья и единственный в России обладатель награды FIABCI Prix d’Excellence — престижной международной архитектурной премии. По паркам и аллеям этого поселка можно гулять часами, наслаждаться европейской архитектурой и изысканными ландшафтными композициями. Сады поселка созданы по вдохновению красотой лучших парков мира: лондонского Hyde Park, китайского «Сада радости» Юй Юань, французского Версаля, итальянских садов виллы д’Эсте.
В этом поселке особое внимание уделено безопасности — это закрытый эксклюзивный клуб, куда не попасть без специального пропуска. Ваши дети могут спокойно играть парках и гулять по аллеям!
Миллениум Парк окружают первозданные леса, чистейший воздух и развитая инфраструктура Новой Риги. И всё это ближнее Подмосковье — до Москвы всего 19 км!