Подпишитесь на новости Villagio
Мы ценим ваше время
Акция: при покупке дома с Villagio Realty вы получаете год сервиса - абсолютно бесплатно!
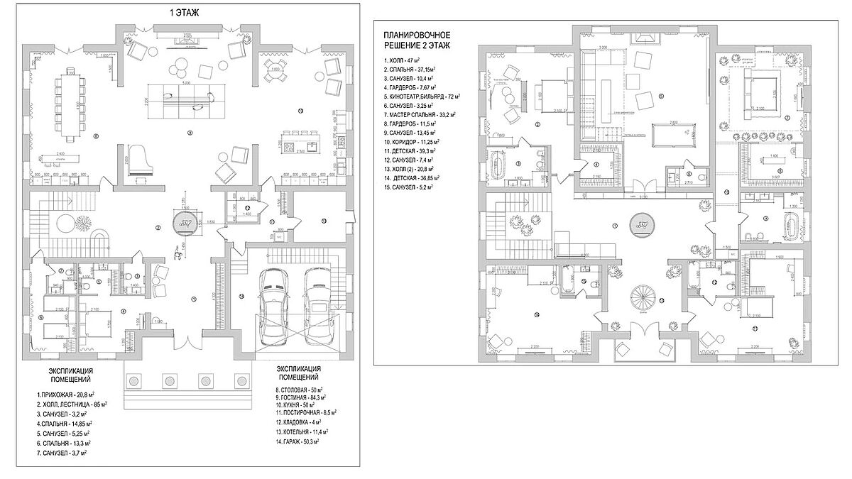
Двухэтажный особняк в классическом стиле площадью 1000 м² в элитном посёлке "Миллениум парк". Формат "под отделку" предоставляет новым собственникам возможность организовать уютное и удобное пространство на свой вкус.
Планировкой предусмотрено размещение в доме до 10 комнат, включая столовую и кухню:
1 этаж: входная группа с гардеробной для сезонных вещей; центральный зал с парадной лестницей; столовая-гостиная-кухня и зона черновой кухни; гостевая спальня с санузлом и гардеробной; гостевой санузел; потайная комната для персонала со своим санузлом с входом под лестницей; помещения для постирочной и котельной, гараж.
2 этаж: мастер-блок с гардеробной и большой ванной комнатой; вторая спальня с гардеробной и ванной комнатой; 2 детских с ванными комнатами и гардеробными; большая гостиная/домашний кинотеатр, санузел.
Кроме этого, есть возможность сделать эксплуатируемую кровлю.
На участке правильной формы 15 соток дополнительно возведена зона патио.
Millennium Park — флагманский проект Villagio Estate, расположенный всего в 23 км от МКАД.
Поселок площадью более 330 гектаров создан как произведение ландшафтного искусства: в нем воплощены мотивы мировых культур — от венецианских каналов до восточных садов. Площадь зеленых зон — 90 гектаров. На территории — 5 тематических парков, 10 каналов протяженностью 5 км, 7 озёр, на центральном озере обустроена пляжная зона.
Millennium Park предлагает все необходимое для комфортной жизни и отдыха: ресторан Millenium, детский сад «Робин Гуд», 7 современных детских площадок, теннисные корты, футбольное поле, площадки для пляжного волейбола и зоны для занятий спортом. Для активных жителей предусмотрен фитнес-клуб. В ближайшем окружении находится развитая инфраструктура новой Риги.
Поселок имеет закрытую территорию и строгую систему контроля доступа, что гарантирует высокий уровень безопасности. Здесь царит атмосфера респектабельности и добрососедства, объединяющая успешных людей.
Делегируйте подбор или продажу экспертам вашего уровня
искусство загородной жизниПолучите персональную коллекцию от эксперта Villagio




Акция: при покупке дома с Villagio Realty вы получаете год сервиса — абсолютно бесплатно!
Двухэтажный особняк в классическом стиле площадью 1000 м² в элитном посёлке «Миллениум парк». Формат «под отделку» предоставляет новым собственникам возможность организовать уютное и удобное пространство на свой вкус.
Планировкой предусмотрено размещение в доме до 10 комнат, включая столовую и кухню:
1 этаж: входная группа с гардеробной для сезонных вещей; центральный зал с парадной лестницей; столовая-гостиная-кухня и зона черновой кухни; гостевая спальня с санузлом и гардеробной; гостевой санузел; потайная комната для персонала со своим санузлом с входом под лестницей; помещения для постирочной и котельной, гараж.
2 этаж: мастер-блок с гардеробной и большой ванной комнатой; вторая спальня с гардеробной и ванной комнатой; 2 детских с ванными комнатами и гардеробными; большая гостиная/домашний кинотеатр, санузел.
Кроме этого, есть возможность сделать эксплуатируемую кровлю.
На участке правильной формы 15 соток дополнительно возведена зона патио.
Millennium Park — флагманский проект Villagio Estate, расположенный всего в 23 км от МКАД.
Поселок площадью более 330 гектаров создан как произведение ландшафтного искусства: в нем воплощены мотивы мировых культур — от венецианских каналов до восточных садов. Площадь зеленых зон — 90 гектаров. На территории — 5 тематических парков, 10 каналов протяженностью 5 км, 7 озёр, на центральном озере обустроена пляжная зона.
Millennium Park предлагает все необходимое для комфортной жизни и отдыха: ресторан Millenium, детский сад «Робин Гуд», 7 современных детских площадок, теннисные корты, футбольное поле, площадки для пляжного волейбола и зоны для занятий спортом. Для активных жителей предусмотрен фитнес-клуб. В ближайшем окружении находится развитая инфраструктура новой Риги.
Поселок имеет закрытую территорию и строгую систему контроля доступа, что гарантирует высокий уровень безопасности. Здесь царит атмосфера респектабельности и добрососедства, объединяющая успешных людей.