Подпишитесь на новости Villagio
Мы ценим ваше время
Акция: при покупке дома с Villagio Realty вы получаете год сервиса - абсолютно бесплатно!
Четырёхуровневый изысканный особняк в классическом стиле для большой семьи в элитном посёлке «Ренессанс Парк».
Кирпично-монолитный загородный дом площадью 1670 м2 спроектирован и построен с участием ведущих специалистов и строителей. При выборе строительных материалов и конструкций акцент сделан на экологичность, высокую прочность и соблюдение традиционных технологий строительства в стиле «Сталинский Стандарт». Дом отличается повышенной прочностью и долговечностью, устойчив к негативному воздействию влаги, огня, грибка, механических повреждений. Тепло- и звукоизоляция стен – на высоком уровне. Основание фундамента - монолитная железобетонная плита толщиной 300 мм. Лента фундамента и межэтажные перекрытия - сборно-монолитные железобетонные конструкции. Лестницы между этажами - монолитные железобетонные. Мансардные окна от европейского производителя "FAKRO". Окна в столовой - алюминиевые системы "ALUTECH", а в остальных помещениях - из премиальной системы ПВХ "REHAU INTELIO 80". Облицовка фасада - натуральный крупноформатный известняковый песчаник по индивидуальному архитектурному решению, а облицовка цоколя и уличного крыльца - натуральный карельский гранит «Габбро – Диабаз».
Формат "под отделку" предоставляют новым собственникам возможность организовать уютное и удобное пространство на свой вкус. Инженерные коммуникации центральные, уже подведены к дому.
Большие панорамные окна обеспечивают доступ солнечных лучей, делают пространство светлым и воздушным и создают ощущение единства с окружающей природой.
Особняк сочетает в себе благородную простоту архитектуры и продуманную функциональность планировки. Внутри предусмотрено 6 спален, 6 ванных комнат и 8 гардеробных:
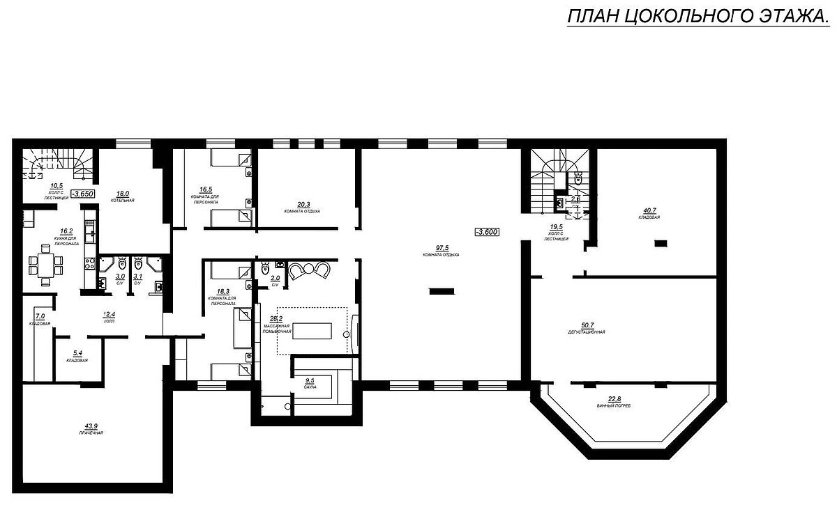
Цокольный этаж: СПА-зона с сауной и массажным кабинетом; большая комната отдыха; жилая зона для персонала с кухней, 2-мя спальнями и 2-мя санузлами; котельная, прачечная, кладовые, винный погреб с дегустационным залом. Этаж оборудован двумя лестницами, ведущими на первый этаж и расположенными в разных зонах для удобства передвижения.
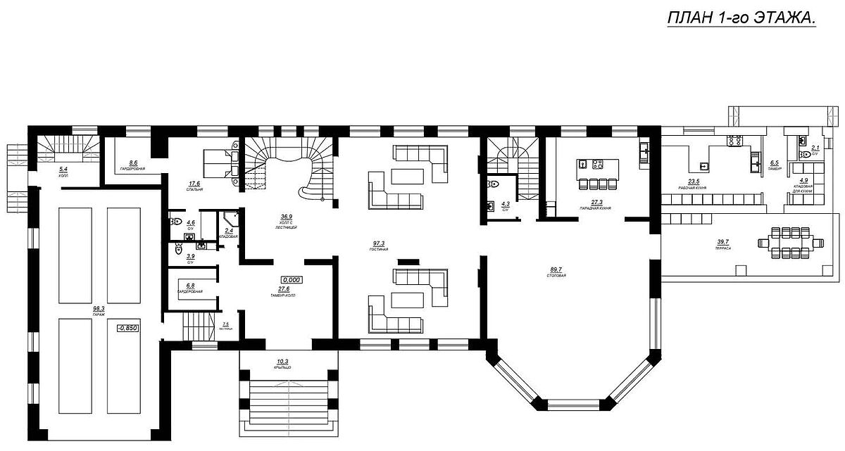
1 этаж: просторная гостиная, кухня, столовая с выходом на террасу, гостевая спальня с санузлом и гардеробной, 2 санузла, холл, гардеробная, зона рабочей кухни с отдельным входом, санузлом и кладовой, большой гараж на 4 машиноместа;
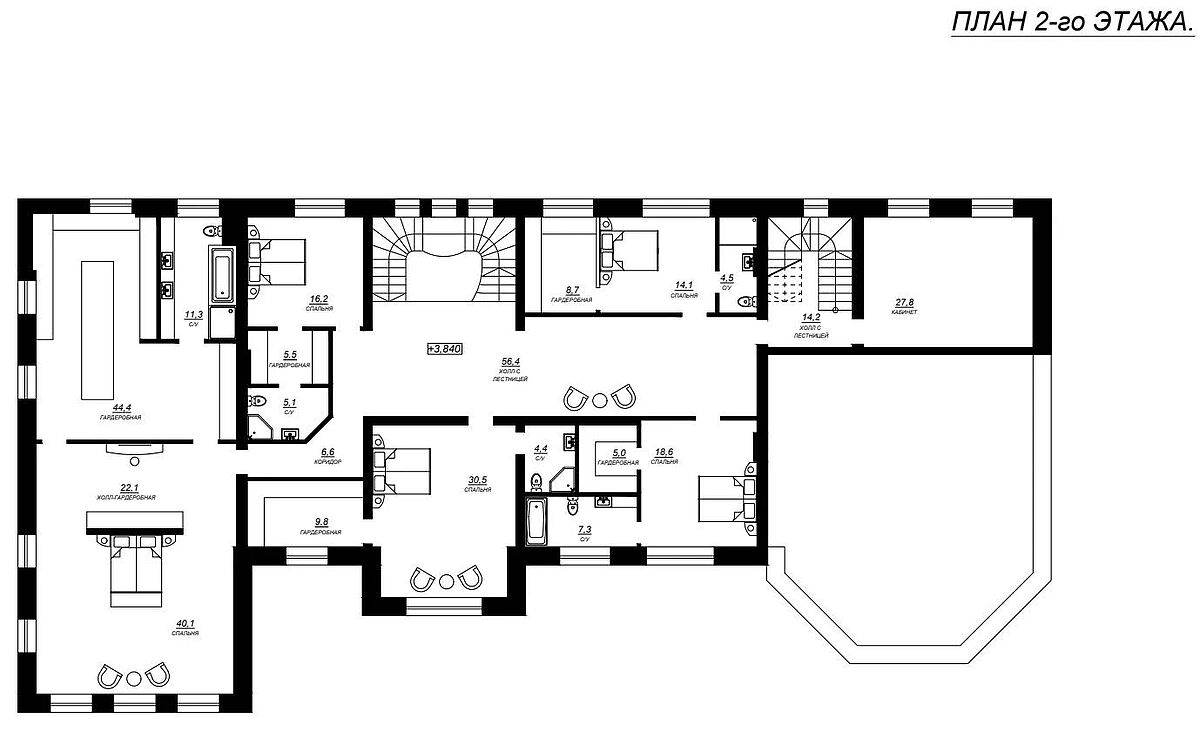
2 этаж: 4 спальни с санузлами и гардеробными, кабинет/библиотека, холл;
Мансардный этаж: светлое пространство со сводчатыми потолками и 14 мансардными окнами, здесь можно разместить 2-3 гостевые комнаты, 2 санузла, зону отдыха/игровую и систему хранения.
Дом расположен на полевом участке 21 сотка. Размер участка предоставляет возможности для воплощения интересных идей по ландшафтному дизайну.
Renaissance Park — элитный коттеджный поселок Villagio Estate, всего в 19 км от МКАД по Новой Риге. Это ближайший к Москве проект компании и один из самых престижных загородных адресов. Архитектура вдохновлена эпохой Возрождения: величественные особняки, парадная колоннада на въезде, ухоженные бульвары и парки создают атмосферу европейской аристократии.
Главное украшение — Центральный парк площадью 5,5 га с живописным озером почти 1 га. Здесь есть песчаный пляж с шезлонгами, площадка для пляжного волейбола, спортивные зоны для кроссфита, детская площадка с верёвочными комплексами, скалодромом и игровыми кораблями. Жители гуляют по тенистым аллеям и выходят прямо в вековой сосновый лес через благоустроенные калитки. В поселке есть ресторан с панорамными витражами и стеклянным куполом. Рядом — элитные школы, детские сады, фитнес-клубы, торговые галереи и рестораны — всё для комфортной жизни.
Также благодаря клубной системе Villagio Estate жители посёлка получают возможность пользоваться другими объектами, включёнными в эту систему: парками, пляжами, торговыми центрами, ресторанами. Вашей семье будут созданы все условия для комфортной жизни.
Делегируйте подбор или продажу экспертам вашего уровня
искусство загородной жизниПолучите персональную коллекцию от эксперта Villagio




Акция: при покупке дома с Villagio Realty вы получаете год сервиса — абсолютно бесплатно!
Четырёхуровневый изысканный особняк в классическом стиле для большой семьи в элитном посёлке «Ренессанс Парк».
Кирпично-монолитный загородный дом площадью 1670 м2 спроектирован и построен с участием ведущих специалистов и строителей. При выборе строительных материалов и конструкций акцент сделан на экологичность, высокую прочность и соблюдение традиционных технологий строительства в стиле «Сталинский Стандарт». Дом отличается повышенной прочностью и долговечностью, устойчив к негативному воздействию влаги, огня, грибка, механических повреждений. Тепло- и звукоизоляция стен — на высоком уровне. Основание фундамента — монолитная железобетонная плита толщиной 300 мм. Лента фундамента и межэтажные перекрытия — сборно-монолитные железобетонные конструкции. Лестницы между этажами — монолитные железобетонные. Мансардные окна от европейского производителя «FAKRO». Окна в столовой — алюминиевые системы «ALUTECH», а в остальных помещениях — из премиальной системы ПВХ «REHAU INTELIO 80». Облицовка фасада — натуральный крупноформатный известняковый песчаник по индивидуальному архитектурному решению, а облицовка цоколя и уличного крыльца — натуральный карельский гранит «Габбро — Диабаз».
Формат «под отделку» предоставляют новым собственникам возможность организовать уютное и удобное пространство на свой вкус. Инженерные коммуникации центральные, уже подведены к дому.
Большие панорамные окна обеспечивают доступ солнечных лучей, делают пространство светлым и воздушным и создают ощущение единства с окружающей природой.
Особняк сочетает в себе благородную простоту архитектуры и продуманную функциональность планировки. Внутри предусмотрено 6 спален, 6 ванных комнат и 8 гардеробных:
Цокольный этаж: СПА-зона с сауной и массажным кабинетом; большая комната отдыха; жилая зона для персонала с кухней, 2-мя спальнями и 2-мя санузлами; котельная, прачечная, кладовые, винный погреб с дегустационным залом. Этаж оборудован двумя лестницами, ведущими на первый этаж и расположенными в разных зонах для удобства передвижения.
1 этаж: просторная гостиная, кухня, столовая с выходом на террасу, гостевая спальня с санузлом и гардеробной, 2 санузла, холл, гардеробная, зона рабочей кухни с отдельным входом, санузлом и кладовой, большой гараж на 4 машиноместа;
2 этаж: 4 спальни с санузлами и гардеробными, кабинет/библиотека, холл;
Мансардный этаж: светлое пространство со сводчатыми потолками и 14 мансардными окнами, здесь можно разместить 2–3 гостевые комнаты, 2 санузла, зону отдыха/игровую и систему хранения.
Дом расположен на полевом участке 21 сотка. Размер участка предоставляет возможности для воплощения интересных идей по ландшафтному дизайну.
Renaissance Park — элитный коттеджный поселок Villagio Estate, всего в 19 км от МКАД по Новой Риге. Это ближайший к Москве проект компании и один из самых престижных загородных адресов. Архитектура вдохновлена эпохой Возрождения: величественные особняки, парадная колоннада на въезде, ухоженные бульвары и парки создают атмосферу европейской аристократии.
Главное украшение — Центральный парк площадью 5,5 га с живописным озером почти 1 га. Здесь есть песчаный пляж с шезлонгами, площадка для пляжного волейбола, спортивные зоны для кроссфита, детская площадка с верёвочными комплексами, скалодромом и игровыми кораблями. Жители гуляют по тенистым аллеям и выходят прямо в вековой сосновый лес через благоустроенные калитки. В поселке есть ресторан с панорамными витражами и стеклянным куполом. Рядом — элитные школы, детские сады, фитнес-клубы, торговые галереи и рестораны — всё для комфортной жизни.
Также благодаря клубной системе Villagio Estate жители посёлка получают возможность пользоваться другими объектами, включёнными в эту систему: парками, пляжами, торговыми центрами, ресторанами. Вашей семье будут созданы все условия для комфортной жизни.