Подпишитесь на новости Villagio
Мы ценим ваше время
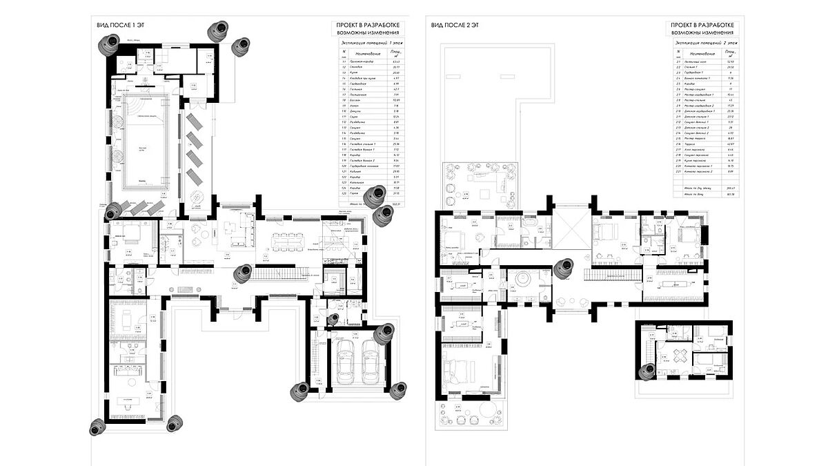
Современный дом 1000 кв.м. с бассейном, блоком для персонала и гаражом на 2 м/м.
Удачно расположен в центральной части поселка, на тупиковой улице неподалеку от парка с озером.
Идеально продуманные инженерные системы, высокотехнологичный фасад, панорамные окна, система "умный дом" и функциональная планировка помещений.
1 этаж:
Столовая с панорамными окнами и выходом на террасу. Просторная кухня с комнатой для хранения. Каминный зал и второй свет. Изолированный от внешнего шума рабочий блок - кабинет со своим санузлом и просторной сезонной гардеробной. Гостевая спальня с с/у, гардеробная, гараж на 2 машиноместа, котельная, постирочная. Блок для персонала с отдельным входом, санузлом, кухней и 2-мя спальнями. СПА с бассейном, сауной и хаммамом.
2 этаж:
Мастер блок: спальня, большая ванная, две гардеробных, терраса; вторая мастер-спальня с ванной комнатой, гардеробной и террасой. Детский блок: 2 зеркальных спальни, каждая со своим санузлом, и большая гардеробная 25 кв.м.
Renaissance Park — элитный коттеджный поселок Villagio Estate, всего в 19 км от МКАД по Новой Риге. Это ближайший к Москве проект компании и один из самых престижных загородных адресов. Архитектура вдохновлена эпохой Возрождения: величественные особняки, парадная колоннада на въезде, ухоженные бульвары и парки создают атмосферу европейской аристократии.
Главное украшение — Центральный парк площадью 5,5 га с живописным озером почти 1 га. Здесь есть песчаный пляж с шезлонгами, площадка для пляжного волейбола, спортивные зоны для кроссфита, детская площадка с верёвочными комплексами, скалодромом и игровыми кораблями. Жители гуляют по тенистым аллеям и выходят прямо в вековой сосновый лес через благоустроенные калитки.
В поселке есть ресторан с панорамными витражами и стеклянным куполом. Рядом — элитные школы, детские сады, фитнес-клубы, торговые галереи и рестораны — всё для комфортной жизни.
Делегируйте подбор или продажу экспертам вашего уровня
искусство загородной жизниПолучите персональную коллекцию от эксперта Villagio




Современный дом 1000 кв.м. с бассейном, блоком для персонала и гаражом на 2 м/м.
Удачно расположен в центральной части поселка, на тупиковой улице неподалеку от парка с озером.
Идеально продуманные инженерные системы, высокотехнологичный фасад, панорамные окна, система «умный дом» и функциональная планировка помещений.
1 этаж:
Столовая с панорамными окнами и выходом на террасу. Просторная кухня с комнатой для хранения. Каминный зал и второй свет. Изолированный от внешнего шума рабочий блок — кабинет со своим санузлом и просторной сезонной гардеробной. Гостевая спальня с с/у, гардеробная, гараж на 2 машиноместа, котельная, постирочная. Блок для персонала с отдельным входом, санузлом, кухней и 2-мя спальнями. СПА с бассейном, сауной и хаммамом.
2 этаж:
Мастер блок: спальня, большая ванная, две гардеробных, терраса; вторая мастер-спальня с ванной комнатой, гардеробной и террасой. Детский блок: 2 зеркальных спальни, каждая со своим санузлом, и большая гардеробная 25 кв.м.
Renaissance Park — элитный коттеджный поселок Villagio Estate, всего в 19 км от МКАД по Новой Риге. Это ближайший к Москве проект компании и один из самых престижных загородных адресов. Архитектура вдохновлена эпохой Возрождения: величественные особняки, парадная колоннада на въезде, ухоженные бульвары и парки создают атмосферу европейской аристократии.
Главное украшение — Центральный парк площадью 5,5 га с живописным озером почти 1 га. Здесь есть песчаный пляж с шезлонгами, площадка для пляжного волейбола, спортивные зоны для кроссфита, детская площадка с верёвочными комплексами, скалодромом и игровыми кораблями. Жители гуляют по тенистым аллеям и выходят прямо в вековой сосновый лес через благоустроенные калитки.
В поселке есть ресторан с панорамными витражами и стеклянным куполом. Рядом — элитные школы, детские сады, фитнес-клубы, торговые галереи и рестораны — всё для комфортной жизни.