Подпишитесь на новости Villagio
Мы ценим ваше время
Современный дом 800 м2 на участке 12,12 соток в элитном посёлке "Миллениум Парк" предлагается "под ключ" без мебели.
Дом новый, никто не жил. Год постройки-2026, в июле будет закончена дизайнерская отделка с применением высококачественных материалов.
Продуманная планировка обеспечивает комфортное проживание:
1 этаж: кухня-гостиная с панорамным остеклением, вторым светом и выходом на просторную террасу, кабинет, санузел, постирочная, прихожая, гардеробная, котельная, 2 кладовых, гараж на 2 авто.
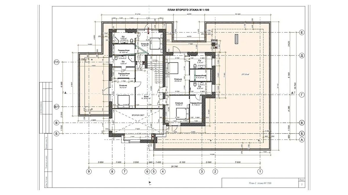
2 этаж: 4 спальни с индивидуальными санузлами, гардеробными и выходами на большую террасу 277 м2.
Конструктив дома:
1.Фундамент. На основании геологических изысканий был выбран тип фундамента - плита. После снятия плодородного слоя грунта были выполнены работы по прокладке дренажа, ливнëвки, канализации и электричества. Следующим этапом осуществлялось формирование песчано-гравийной подушки с послойным трамбованием. Уложен утеплитель ЭППС с повышенной плотностью, выполнена гидроизоляция. Бетон применялся марки М350.Толщина плиты 350мм, арматура д16мм А500С.
2. Стены. Выполнены из поризованного керамического блока, армированного базальтовой сеткой, на тëплом растворе, с последующим утеплением минватой и отделкой вентилируемым фасадом.
3. Перекрытия монолитные 200мм, бетон М350, арматура д14 А500С.
4. Кровля. Пароизоляция, утеплитель ЭППС 150мм, стяжка с разуклонкой, армированная сеткой. Смонтирована ПВХ мембрана и сливные воронки с подогревом.
Millennium Park — флагманский проект Villagio Estate, расположенный всего в 23 км от МКАД. Поселок создан как произведение ландшафтного искусства: в нем воплощены мотивы мировых культур — от венецианских каналов до восточных садов. На территории — 5 тематических парков, 10 каналов протяженностью 5 км, 7 озёр, на центральном озере обустроена пляжная зона.
Посёлок предлагает все необходимое для комфортной жизни и отдыха: ресторан Millenium, детский сад «Робин Гуд», 7 современных детских площадок, теннисные корты, футбольное поле, площадки для пляжного волейбола и зоны для занятий спортом. Для активных жителей предусмотрен фитнес-клуб. В ближайшем окружении находится развитая инфраструктура Новой Риги.
Закрытая территория и строгая система контроля доступа гарантируют высокий уровень безопасности. Здесь царит атмосфера респектабельности и добрососедства, объединяющая успешных людей.
Делегируйте подбор или продажу экспертам вашего уровня
искусство загородной жизниПолучите персональную коллекцию от эксперта Villagio




Современный дом 800 м2 на участке 12,12 соток в элитном посёлке «Миллениум Парк» предлагается «под ключ» без мебели.
Дом новый, никто не жил. Год постройки-2026, в июле будет закончена дизайнерская отделка с применением высококачественных материалов.
Продуманная планировка обеспечивает комфортное проживание:
1 этаж: кухня-гостиная с панорамным остеклением, вторым светом и выходом на просторную террасу, кабинет, санузел, постирочная, прихожая, гардеробная, котельная, 2 кладовых, гараж на 2 авто.
2 этаж: 4 спальни с индивидуальными санузлами, гардеробными и выходами на большую террасу 277 м2.
Конструктив дома:
1.Фундамент. На основании геологических изысканий был выбран тип фундамента — плита. После снятия плодородного слоя грунта были выполнены работы по прокладке дренажа, ливнëвки, канализации и электричества. Следующим этапом осуществлялось формирование песчано-гравийной подушки с послойным трамбованием. Уложен утеплитель ЭППС с повышенной плотностью, выполнена гидроизоляция. Бетон применялся марки М350.Толщина плиты 350 мм, арматура д16мм А500С.
2. Стены. Выполнены из поризованного керамического блока, армированного базальтовой сеткой, на тëплом растворе, с последующим утеплением минватой и отделкой вентилируемым фасадом.
3. Перекрытия монолитные 200 мм, бетон М350, арматура д14 А500С.
4. Кровля. Пароизоляция, утеплитель ЭППС 150 мм, стяжка с разуклонкой, армированная сеткой. Смонтирована ПВХ мембрана и сливные воронки с подогревом.
Millennium Park — флагманский проект Villagio Estate, расположенный всего в 23 км от МКАД. Поселок создан как произведение ландшафтного искусства: в нем воплощены мотивы мировых культур — от венецианских каналов до восточных садов. На территории — 5 тематических парков, 10 каналов протяженностью 5 км, 7 озёр, на центральном озере обустроена пляжная зона.
Посёлок предлагает все необходимое для комфортной жизни и отдыха: ресторан Millenium, детский сад «Робин Гуд», 7 современных детских площадок, теннисные корты, футбольное поле, площадки для пляжного волейбола и зоны для занятий спортом. Для активных жителей предусмотрен фитнес-клуб. В ближайшем окружении находится развитая инфраструктура Новой Риги.
Закрытая территория и строгая система контроля доступа гарантируют высокий уровень безопасности. Здесь царит атмосфера респектабельности и добрососедства, объединяющая успешных людей.