Подпишитесь на новости Villagio
Мы ценим ваше время
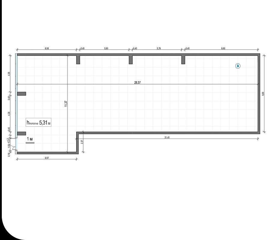
Продается торговое помещение на первой линии Москвы реки площадью 544,6 кв.м. в квартале RiverSky корпус Sky 5. Подойдет под ресторан - предусмотрена технологическая вытяжка.
Помещение расположено на 1 этаже корпуса Sky 5 на территории с открытым доступом. Свободный вход в помещение, прямой вид на набережную Москвы реки. Преимущество помещения - полноценная зона разгрузки-погрузки через паркинг. Высота потолка 4,65 м. Технология под ресторан. Помещение состоит из 2 уровней, предусмотрен собственный лифт.
Foriver — самый близкий к Кремлю квартал со своей пешеходной набережной Москвы-реки. Квартал из 11 корпусов полностью сдан и заселен. Внутренний трафик более 10 000 жителей.
Активно формируется внешний трафик:
- завершается реконструкция набережной протяженностью 1 км., которая станет основным пешеходным маршрутом до Кремля;
- возле ретейла открыта станция водного транспорта;
- сдается стадион "Торпедо" вместимость 15 000 зрителей, спортивный кластер им.Эдуарда Стрельцова;
- открыты 4 детских сада, муниципальная школа на 1000 мест;
- возле квартала строится дорога, которая соединит ТТК и Садовое кольцо;
- строится премиальный клубный дом Foriver Residence.
Foriver становится новой точки притяжения района.
Беспроцентная рассрочка на 9 месяцев.
Делегируйте подбор или продажу экспертам вашего уровня
искусство загородной жизниПолучите персональную коллекцию от эксперта Villagio




Продается торговое помещение на первой линии Москвы реки площадью 544,6 кв.м. в квартале RiverSky корпус Sky 5. Подойдет под ресторан — предусмотрена технологическая вытяжка.
Помещение расположено на 1 этаже корпуса Sky 5 на территории с открытым доступом. Свободный вход в помещение, прямой вид на набережную Москвы реки. Преимущество помещения — полноценная зона разгрузки-погрузки через паркинг. Высота потолка 4,65 м. Технология под ресторан. Помещение состоит из 2 уровней, предусмотрен собственный лифт.
Foriver — самый близкий к Кремлю квартал со своей пешеходной набережной Москвы-реки. Квартал из 11 корпусов полностью сдан и заселен. Внутренний трафик более 10 000 жителей.
Активно формируется внешний трафик:
- завершается реконструкция набережной протяженностью 1 км., которая станет основным пешеходным маршрутом до Кремля;
- возле ретейла открыта станция водного транспорта;
- сдается стадион «Торпедо» вместимость 15 000 зрителей, спортивный кластер им.Эдуарда Стрельцова;
- открыты 4 детских сада, муниципальная школа на 1000 мест;
- возле квартала строится дорога, которая соединит ТТК и Садовое кольцо;
- строится премиальный клубный дом Foriver Residence.
Foriver становится новой точки притяжения района.
Беспроцентная рассрочка на 9 месяцев.