Подпишитесь на новости Villagio
Мы ценим ваше время
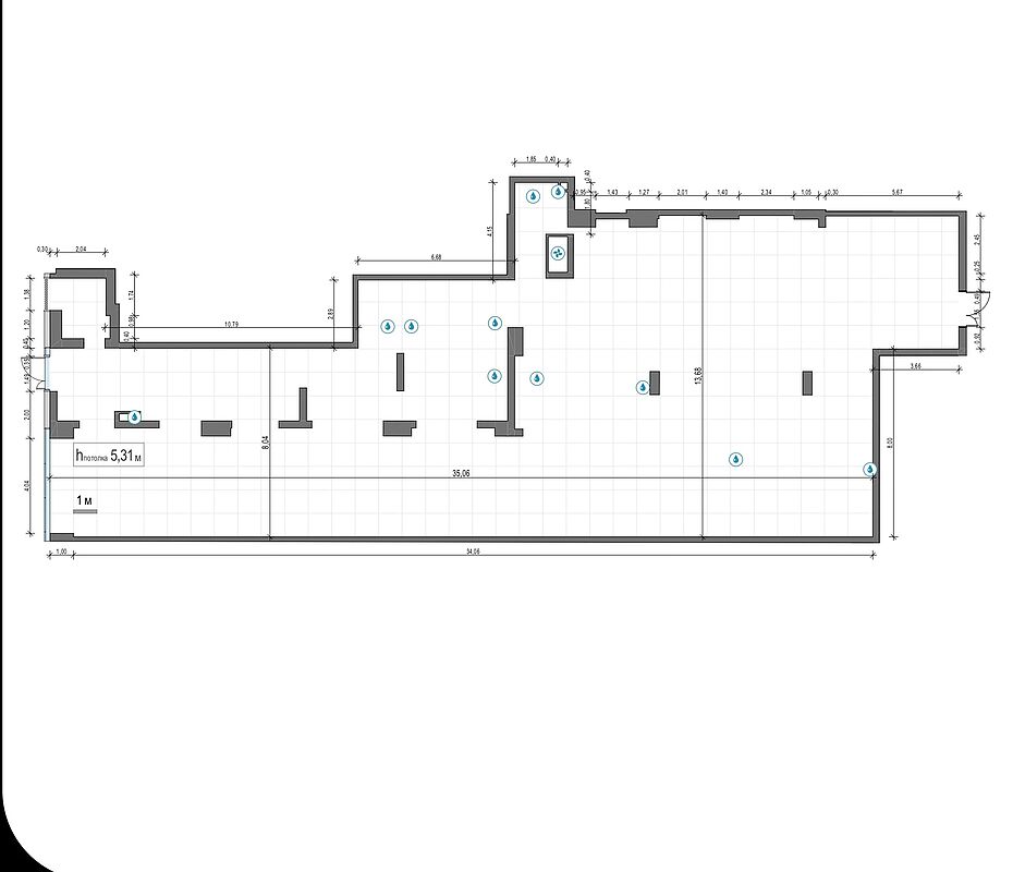
Помещение под ресторан с выходом на набережную.
Помещение на первой линии Москвы реки площадью 404,7 кв.м. в премиальном жилом квартале Foriver.
Расположено на 1 этаже 4го корпуса на территории с открытым доступом. Свободный вход в помещение со стороны набережной Москвы реки. Преимущество помещения: зона разгрузки-погрузки через паркинг. Высота потолка 5,3 м. Технология: под ресторан.
Foriver — самый близкий к Кремлю квартал со своей пешеходной набережной Москвы-реки. Квартал из 11 корпусов полностью сдан и заселен. Внутренний трафик более 10 000 жителей.
Активно формируется внешний трафик:
- завершается реконструкция набережной протяженностью 1 км., которая станет основным пешеходным маршрутом до Кремля;
- возле ретейла открыта станция водного транспорта;
- сдается стадион "Торпедо" вместимость 15 000 зрителей, спортивный кластер им.Эдуарда Стрельцова;
- открыты 4 детских сада, муниципальная школа на 1000 мест;
- возле квартала строится дорога, которая соединит ТТК и Садовое кольцо;
- строится премиальный клубный дом Foriver Residence .
Foriver становится новой точки притяжения района. Ретейл здесь - надежная прибыльная инвестиция со стабильным потенциалом роста.
Действует беспроцентная рассрочка на 9 месяцев. Передача по ПДКП до 30.09.26 г.
Делегируйте подбор или продажу экспертам вашего уровня
искусство загородной жизниПолучите персональную коллекцию от эксперта Villagio




Помещение под ресторан с выходом на набережную.
Помещение на первой линии Москвы реки площадью 404,7 кв.м. в премиальном жилом квартале Foriver.
Расположено на 1 этаже 4го корпуса на территории с открытым доступом. Свободный вход в помещение со стороны набережной Москвы реки. Преимущество помещения: зона разгрузки-погрузки через паркинг. Высота потолка 5,3 м. Технология: под ресторан.
Foriver — самый близкий к Кремлю квартал со своей пешеходной набережной Москвы-реки. Квартал из 11 корпусов полностью сдан и заселен. Внутренний трафик более 10 000 жителей.
Активно формируется внешний трафик:
- завершается реконструкция набережной протяженностью 1 км., которая станет основным пешеходным маршрутом до Кремля;
- возле ретейла открыта станция водного транспорта;
- сдается стадион «Торпедо» вместимость 15 000 зрителей, спортивный кластер им.Эдуарда Стрельцова;
- открыты 4 детских сада, муниципальная школа на 1000 мест;
- возле квартала строится дорога, которая соединит ТТК и Садовое кольцо;
- строится премиальный клубный дом Foriver Residence.
Foriver становится новой точки притяжения района. Ретейл здесь — надежная прибыльная инвестиция со стабильным потенциалом роста.
Действует беспроцентная рассрочка на 9 месяцев. Передача по ПДКП до 30.09.26 г.