Сетунька
5 км, Минское шоссеЖить в собственном доме рядом с Мещерским парком, недалеко от реки, всего в пяти километрах от МКАД – чем не мечта? Для владельцев коттеджей в «Сетуньке» она уже осуществилась: комфортабельный посёлок выстроен у парковой границы, среди чудесных лесных и луговых пейзажей.
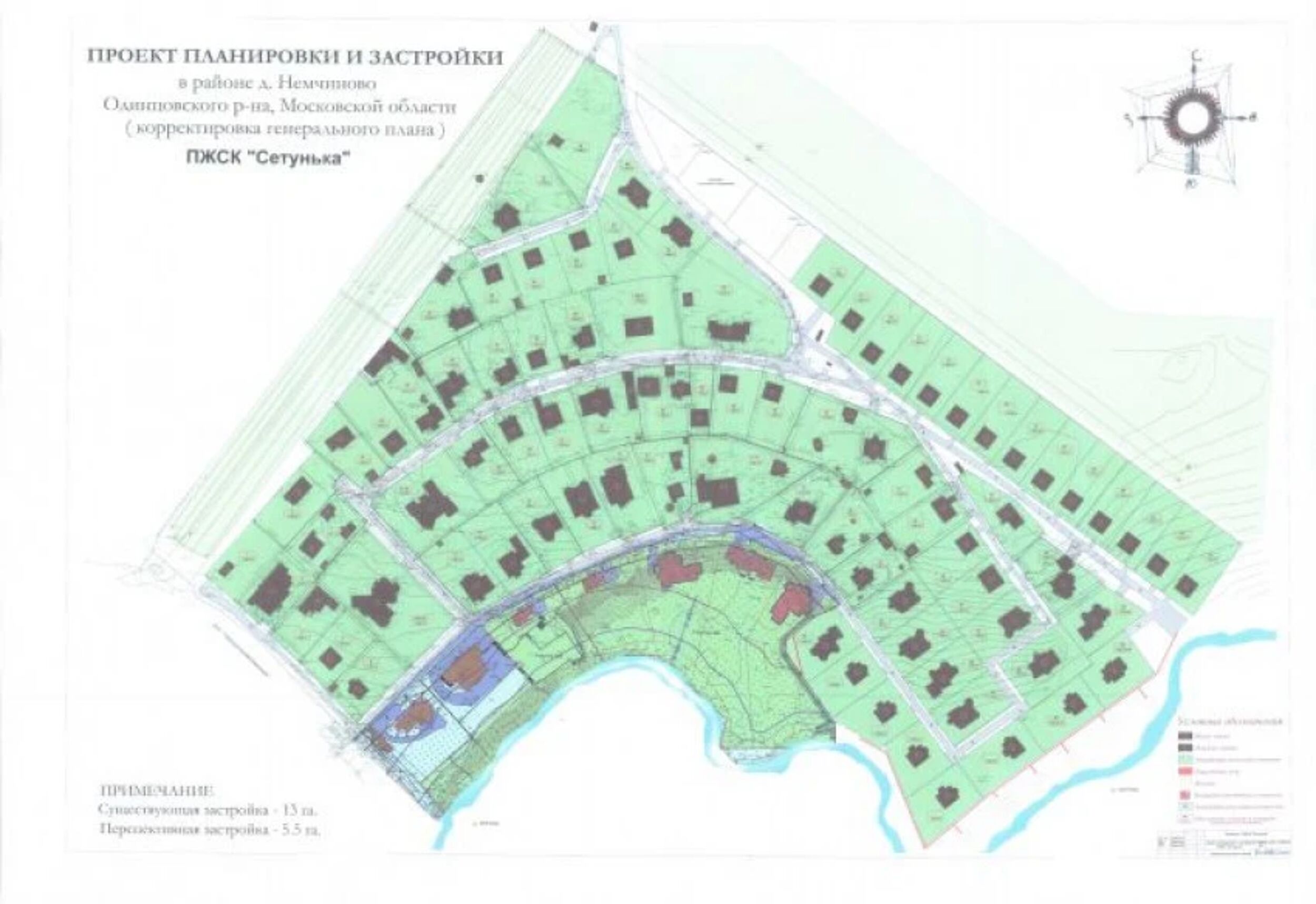
В КП «Сетунька», как в сказке, ведут три дороги: от кольцевой автотрассы можно ехать по Сколковскому, Боровскому либо Минскому шоссе, на выбор. А чтобы понять особую атмосферу красивой загородной деревни, надо представить её ближайшее окружение: в одну сторону – зелёное парковое море, за которым лежит Переделкино, приют великих российских классиков; в другую – футуристический технопарк «Сколково». И ещё: окрестной природой вдохновлялся знаменитый художник-авангардист Казимир Малевич, по Немчиновке проходит маршрут «Тропа Малевича». История, творчество, красота сплетаются в этих местах воедино.
В Мещерском парке приятно гулять всей семьёй: в тёплое время по лесным тропинкам, зимой по искристой лыжне, согреваясь в очаровательной «Лесной чайной». Ждут ценителей активного отдыха гольф-клуб «Сколково» рядом с одноименным посёлком и спортивный центр The Rink, а гурманов – рестораны Skolkovo Golf Club и Wine Skills. В километре от посёлка работает центр израильской медицины Hadassah Medical Moscow, до оздоровительного центра Devi Recovery или фитнес-клуба X-Fit всего 3-5 минут езды. Интересуют возможности образования? Пожалуйста: школа «Росинка», гимназия и Московская школа управления Сколково. И, конечно же, в прямой доступности все объекты Сколковского шоссе и ближайших районов Москвы.
Коттеджный посёлок «Сетунька» относится к классу премиум: архитектурой и планировкой домов, ландшафтным дизайном занимались профессиональные специалисты. Для удобства и безопасности жителей уже сделано практически всё:
- есть магистральный газ, электричество, водопровод, канализация;
- налажено видеонаблюдение, КПП, «живая» охрана территории;
- периметр защищён оградой, вечерами включается освещение улиц;
- открыты спортивные и детские площадки, магазины, фитнес-центр;
- жарким летом жителей радует собственная пляжная зона на Сетуни;
- в ближайших планах открытие посёлковой школы и детского сада.
Как изменить свое будущее? Купить коттедж с участком в «Сетуньке» и наслаждаться каждым днем!
Консьерж сервис по подбору загородной недвижимости класса LUX

Получите персональную коллекцию от эксперта Villagio




















