Подпишитесь на новости Villagio
Мы ценим ваше время
Эксклюзивное предложение. Видовой таунхаус в рассрочку от собственника! Без процентов и переплат.
Угловой таунхаус с просторной эксплуатируемой кровлей идеально подходит для комфортного семейного проживания. Террасы первого и второго этажей дарят дополнительные зоны отдыха на свежем воздухе. Со второго этажа открывается живописный вид на Озеро.
Пространство выполнено в современном дизайне с высокими потолками и большими окнами в пол, обеспечивающими максимальное количество естественного света. Имеется уникальная возможность обустроить собственный уголок тепла и уюта благодаря наличию места для установки настоящего дровяного камина.
Таунхаус предлагается в состоянии «под отделку». Здесь всё предусмотрено заранее для максимальной функциональности и комфорта, позволяя Вам сосредоточиться на главном — создании неповторимого пространства гармонии и красоты, созданного специально для вас.
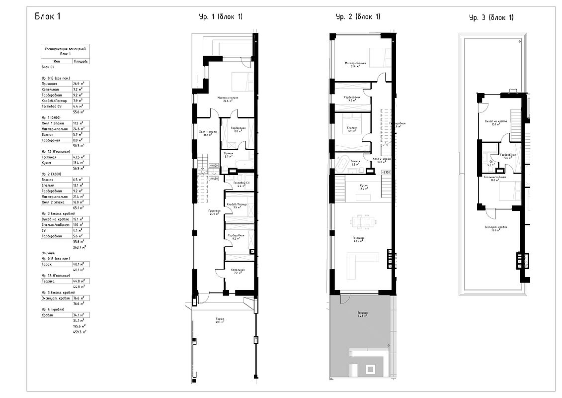
Общая площадь составляет 425 м2, из них:
жилая площадь - 263,7 м2;
эксплуатируемая кровля - 76,6 м2;
навес для 2 авто - 40 м2.
Земельный участок 3,86 сотки облагорожен, высажены декоративные растения и газон.
Поэтажная планировка:
1 этаж: мастер-блок с собственной ванной комнатой и гардеробной; гостевой санузел; гардеробная; постирочная; котельная; навес для 2х автомобилей; выход на участок.
2 этаж: гостиная с возможностью установки дровяного камина, высокими потолками внушительные 4,7 м и панорамным остеклением, выходящим на южную сторону; выход на просторную террасу с видом на Озеро; просторная кухня; 2 спальни с гардеробными и ванными комнатами.
3 этаж: комната с панорамным остеклением, которую можно оборудовать под кабинет, спортзал или зону отдыха; спальня с санузлом; выход на эксплуатируемую кровлю.
"Новорижский" находится на 24 км от МКАД по скоростному Новорижскому шоссе.
В поселке предусмотрено все самое необходимое для комфортного проживания: школы, детские сады, прогулочные территории, 2 озера, волейбольная площадка, спортивные и детские площадки. В пятиминутной доступности новая современная Покровская школа, конно-спортивный клуб Дивный, мини-зоопарк, а также удобная транспортная доступность до современного лицея им. Долгих. Для шоппинга и развлечений - аутлет Новая Рига с Гастровиллой, где более 15 ресторанов и кафе. Для спортивного развития детей открыт целый комплекс с детскими секциями. Просторные тротуары для безопасного движения пешеходов, широкие дороги, ландшафтное озеленение всего поселка.
Создайте дом своей мечты, воплощая любые дизайнерские решения и создавая эксклюзивный интерьер именно под ваши предпочтения.
Делегируйте подбор или продажу экспертам вашего уровня
искусство загородной жизниПолучите персональную коллекцию от эксперта Villagio




Эксклюзивное предложение. Видовой таунхаус в рассрочку от собственника! Без процентов и переплат.
Угловой таунхаус с просторной эксплуатируемой кровлей идеально подходит для комфортного семейного проживания. Террасы первого и второго этажей дарят дополнительные зоны отдыха на свежем воздухе. Со второго этажа открывается живописный вид на Озеро.
Пространство выполнено в современном дизайне с высокими потолками и большими окнами в пол, обеспечивающими максимальное количество естественного света. Имеется уникальная возможность обустроить собственный уголок тепла и уюта благодаря наличию места для установки настоящего дровяного камина.
Таунхаус предлагается в состоянии «под отделку». Здесь всё предусмотрено заранее для максимальной функциональности и комфорта, позволяя Вам сосредоточиться на главном — создании неповторимого пространства гармонии и красоты, созданного специально для вас.
Общая площадь составляет 425 м2, из них:
жилая площадь — 263,7 м2;
эксплуатируемая кровля — 76,6 м2;
навес для 2 авто — 40 м2.
Земельный участок 3,86 сотки облагорожен, высажены декоративные растения и газон.
Поэтажная планировка:
1 этаж: мастер-блок с собственной ванной комнатой и гардеробной; гостевой санузел; гардеробная; постирочная; котельная; навес для 2х автомобилей; выход на участок.
2 этаж: гостиная с возможностью установки дровяного камина, высокими потолками внушительные 4,7 м и панорамным остеклением, выходящим на южную сторону; выход на просторную террасу с видом на Озеро; просторная кухня; 2 спальни с гардеробными и ванными комнатами.
3 этаж: комната с панорамным остеклением, которую можно оборудовать под кабинет, спортзал или зону отдыха; спальня с санузлом; выход на эксплуатируемую кровлю.
«Новорижский» находится на 24 км от МКАД по скоростному Новорижскому шоссе.
В поселке предусмотрено все самое необходимое для комфортного проживания: школы, детские сады, прогулочные территории, 2 озера, волейбольная площадка, спортивные и детские площадки. В пятиминутной доступности новая современная Покровская школа, конно-спортивный клуб Дивный, мини-зоопарк, а также удобная транспортная доступность до современного лицея им. Долгих. Для шоппинга и развлечений — аутлет Новая Рига с Гастровиллой, где более 15 ресторанов и кафе. Для спортивного развития детей открыт целый комплекс с детскими секциями. Просторные тротуары для безопасного движения пешеходов, широкие дороги, ландшафтное озеленение всего поселка.
Создайте дом своей мечты, воплощая любые дизайнерские решения и создавая эксклюзивный интерьер именно под ваши предпочтения.