Подпишитесь на новости Villagio
Мы ценим ваше время
Современный таунхаус с дизайнерским ремонтом под ключ в клубном поселке «Парк Фонте» с отличной инфраструктурой.
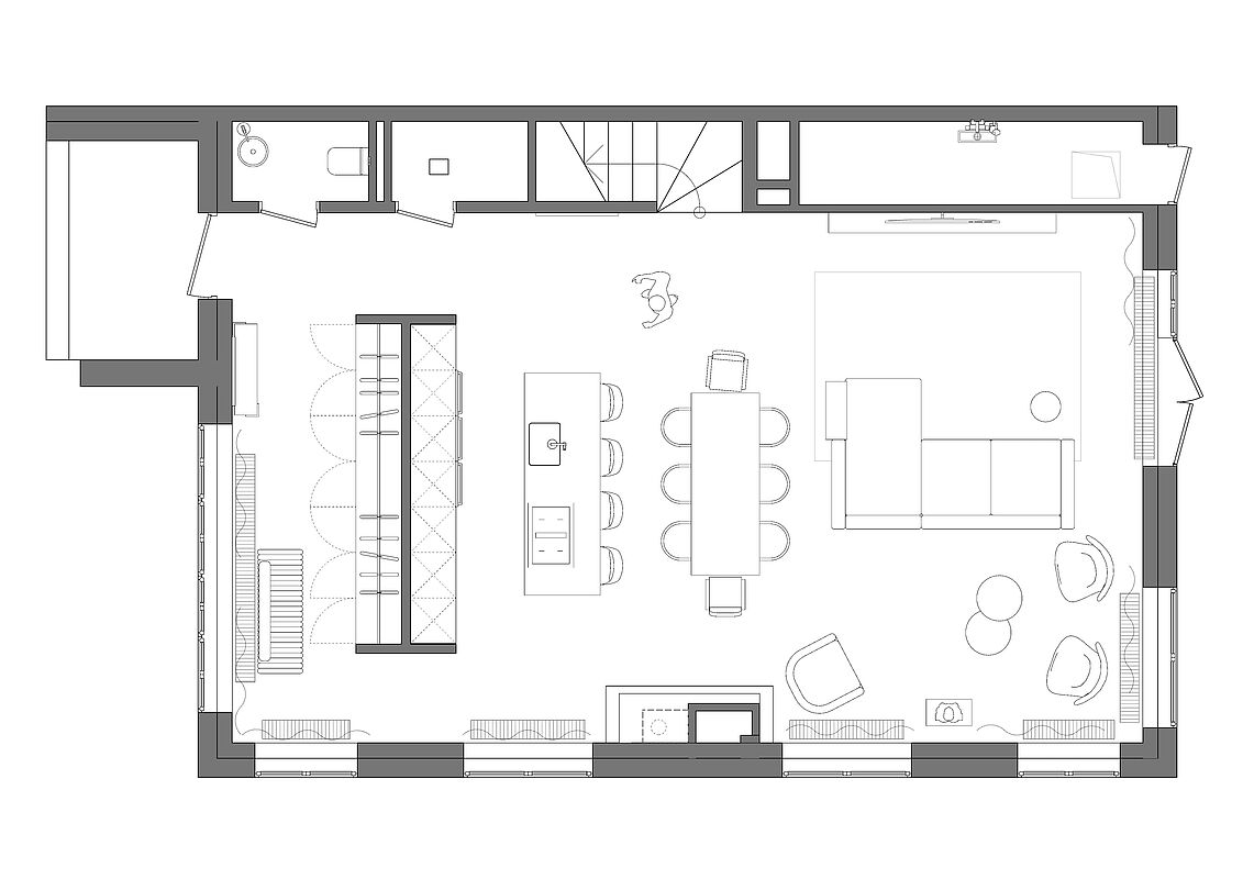
Продуманная планировка обеспечивает комфортное проживание даже большой семье.
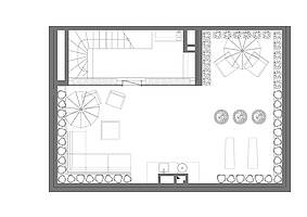
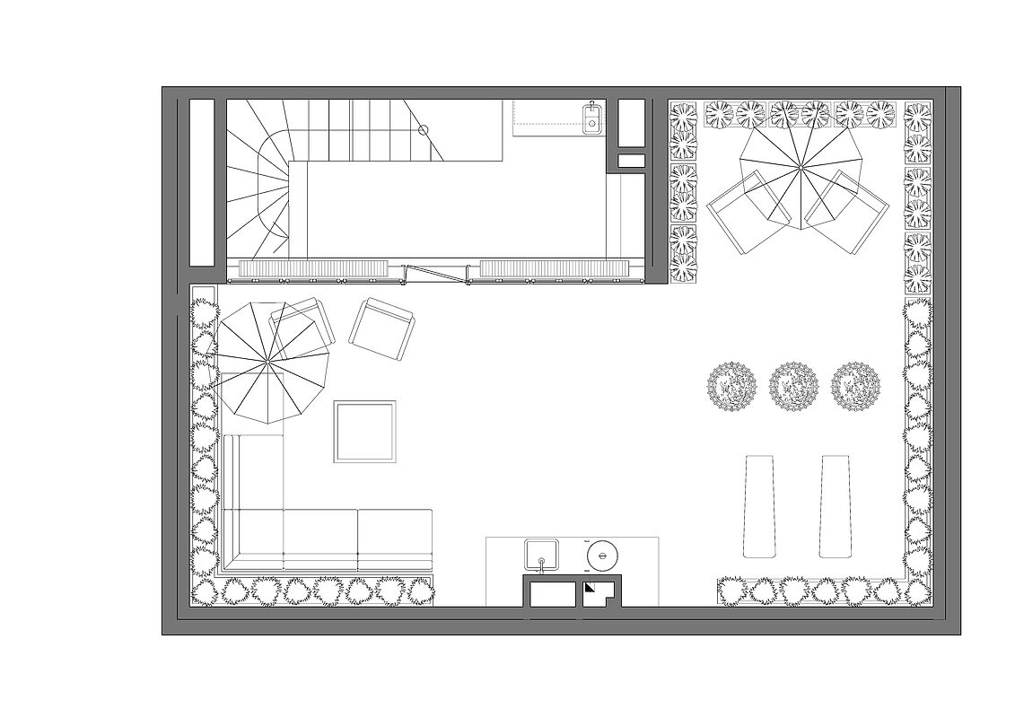
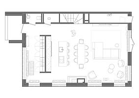
Первый этаж: кухня-столовая, гостиная, гостевой санузел, гардеробная, холл, подсобное помещение, котельная.
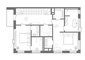
Второй этаж: основная мастер-спальня с двумя гардеробными и ванной комнатой, мастер-спальня №2 со своей гардеробной и ванной комнатой, постирочная, коридор.
Третий этаж: мастер-спальня №3 с ванной комнатой и гардеробной, мастер-спальня №4 с ванной комнатой и гардеробной, кабинет, коридор.
Четвёртый этаж: мини-кухня, выход на террасу.
Преимущества таунхауса:
- 4 мастер-спальни, 5 санузлов, 6 гардеробных, кабинет, постирочная.
- высочайший уровень отделки.
- гостиная с камином и кухня-столовая с выходом на просторную террасу.
- эксплуатируемая кровля, на которой предусмотрена канализация и подсветка.
- шикарный участок правильной формы с большим потенциалом и ландшафтным дизайном.
- парковка на 4 автомобиля.
- соседи живут.
- до парка с озером 5 минут пешком.
В комплектацию таунхауса входит:
кухня с островом, полностью оборудованная премиальный техникой. Столешница выполнена из натурального кварца, фасады кухни эмаль, внутренняя подсветка всех шкафов, продуманные системы хранения. Смеситель фирмы Dornbracht. Индукционная плита с встроенной вытяжкой Elica NIKOLA TESLA LIBRABL/F/83. Встраиваемая посудомоечная машина GAGGENAU DF271100F. Духовой шкаф-пароварка NEFF B47FS22N0. Компактный духовой шкаф с СВЧ NEFF C17MS22N0. Шкаф для вакуумирования NEFF N17XH10N0. Шкаф для подогрева посуды AEG. Встраиваемый холодильник-морозильник LIEBHERR ICNd 5153.
Постирочная: Стиральная машина MIELE WWV 980 WPS WhiteEdition. Сушильная машина MIELE TWV 680 WP WhiteEdition. Фасады эмаль, столешница кварц, сантехника Kohler.
Панели в гостиной и зоне гардеробной выполнены из натурального шпона дуба.
Мебельные фасады всех гардеробных Cleaf, Италия, все гардеробные, постирочная и мини-кухня имеют подсветку с возможностью диммирования, кожаные корзинки, аксессуары и тд.
Дизайнерская мебель и свет (Visual Comfort, Ralph Lauren, Artemest и тд., все люстры и светильники выполнены из натуральной латуни).
Текстильные обои (гостиная шелк-хлопок, спальни шелк, шелк-хлопок, обои из сизаля и тд).
Инженерная доска бренда Havwoods, дуб селект, 19*190 см.
Зеркала и тумбы во всех санузлах с подсветкой.
В отделке ванных использовался крупноформатный спеченый камень, мозаика ручной работы.
Премиальная сантехника Dornbracht, Kohler и тд, умный унитаз.
Душевые системы термостатические.
Инфракрасная сауна.
Подогрев пола (прихожая, все санузлы, постирочная, 4 этаж).
Управление отоплением предусмотрено в каждом помещении.
Электрические карнизы во всех спальнях.
Матрасы MemoryFoam, 4 одеяла из натурального шелка 220*240.
Домофон с возможностью подключения Умного дома, камер и тд, все в одной системе.
В дом заведён высокоскоростной интернет.
Котел Viessmann.
Клубный посёлок «Парк Фонте» находится в экологически чистой зоне Подмосковья рядом с лесом. Дорога до МКАД занимает всего 20 минут. На территории посёлка есть озеро с пляжем и парк, уличные тренажеры, детские и спортивные площадки, развивающий центр. Территория посёлка огорожена и охраняется 24/7.
Делегируйте подбор или продажу экспертам вашего уровня
искусство загородной жизниПолучите персональную коллекцию от эксперта Villagio




Современный таунхаус с дизайнерским ремонтом под ключ в клубном поселке «Парк Фонте» с отличной инфраструктурой.
Продуманная планировка обеспечивает комфортное проживание даже большой семье.
Первый этаж: кухня-столовая, гостиная, гостевой санузел, гардеробная, холл, подсобное помещение, котельная.
Второй этаж: основная мастер-спальня с двумя гардеробными и ванной комнатой, мастер-спальня №2 со своей гардеробной и ванной комнатой, постирочная, коридор.
Третий этаж: мастер-спальня №3 с ванной комнатой и гардеробной, мастер-спальня №4 с ванной комнатой и гардеробной, кабинет, коридор.
Четвёртый этаж: мини-кухня, выход на террасу.
Преимущества таунхауса:
- 4 мастер-спальни, 5 санузлов, 6 гардеробных, кабинет, постирочная.
- высочайший уровень отделки.
- гостиная с камином и кухня-столовая с выходом на просторную террасу.
- эксплуатируемая кровля, на которой предусмотрена канализация и подсветка.
- шикарный участок правильной формы с большим потенциалом и ландшафтным дизайном.
- парковка на 4 автомобиля.
- соседи живут.
- до парка с озером 5 минут пешком.
В комплектацию таунхауса входит:
кухня с островом, полностью оборудованная премиальный техникой. Столешница выполнена из натурального кварца, фасады кухни эмаль, внутренняя подсветка всех шкафов, продуманные системы хранения. Смеситель фирмы Dornbracht. Индукционная плита с встроенной вытяжкой Elica NIKOLA TESLA LIBRABL/F/83. Встраиваемая посудомоечная машина GAGGENAU DF271100F. Духовой шкаф-пароварка NEFF B47FS22N0. Компактный духовой шкаф с СВЧ NEFF C17MS22N0. Шкаф для вакуумирования NEFF N17XH10N0. Шкаф для подогрева посуды AEG. Встраиваемый холодильник-морозильник LIEBHERR ICNd 5153.
Постирочная: Стиральная машина MIELE WWV 980 WPS WhiteEdition. Сушильная машина MIELE TWV 680 WP WhiteEdition. Фасады эмаль, столешница кварц, сантехника Kohler.
Панели в гостиной и зоне гардеробной выполнены из натурального шпона дуба.
Мебельные фасады всех гардеробных Cleaf, Италия, все гардеробные, постирочная и мини-кухня имеют подсветку с возможностью диммирования, кожаные корзинки, аксессуары и тд.
Дизайнерская мебель и свет (Visual Comfort, Ralph Lauren, Artemest и тд., все люстры и светильники выполнены из натуральной латуни).
Текстильные обои (гостиная шелк-хлопок, спальни шелк, шелк-хлопок, обои из сизаля и тд).
Инженерная доска бренда Havwoods, дуб селект, 19×190 см.
Зеркала и тумбы во всех санузлах с подсветкой.
В отделке ванных использовался крупноформатный спеченый камень, мозаика ручной работы.
Премиальная сантехника Dornbracht, Kohler и тд, умный унитаз.
Душевые системы термостатические.
Инфракрасная сауна.
Подогрев пола (прихожая, все санузлы, постирочная, 4 этаж).
Управление отоплением предусмотрено в каждом помещении.
Электрические карнизы во всех спальнях.
Матрасы MemoryFoam, 4 одеяла из натурального шелка 220×240.
Домофон с возможностью подключения Умного дома, камер и тд, все в одной системе.
В дом заведён высокоскоростной интернет.
Котел Viessmann.
Клубный посёлок «Парк Фонте» находится в экологически чистой зоне Подмосковья рядом с лесом. Дорога до МКАД занимает всего 20 минут. На территории посёлка есть озеро с пляжем и парк, уличные тренажеры, детские и спортивные площадки, развивающий центр. Территория посёлка огорожена и охраняется 24/7.