Подпишитесь на новости Villagio
Мы ценим ваше время
Дом с бассейном - Ваш личный курорт!
Эксклюзив! Дом 575 кв.м. с качественным ремонтом, открытым подогреваемым бассейном и СПА-зоной.
Внутренняя отделка выполнена с использованием премиальных натуральных материалов в спокойных нейтральных тонах. Дом укомплектован дизайнерской мебелью и техников премиальных брендов. Вся кухонная техника - KitchenAid, прачечная - Miele.
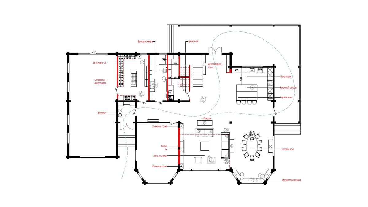
Планировка основного дома:
1 этаж: гостиная с камином и выходом на большую уютную террасу, кухня-столовая, гостевая спальня, санузел, 2 гардеробные, отдельная бойлерная, прачечная, гараж на 2 автомобиля.
2 этаж: мастер-спальня с санузлом и гардеробной, три спальни, санузел.
Особое внимание уделено организации пространств для полноценного отдыха и восстановления сил. Владельцев ожидает открытый подогреваемый бассейн с зоной релаксации; банный комплекс, включающий финскую сауну, турецкий хаммам, санузел и просторную многофункциональную зону барбекю с мини-кухней, позволяющую насладиться пикниками и вечерними посиделками на открытом воздухе.
Земельный участок 12 соток облагорожен, высажен газон и декоративные растения.
КП «Новорижский» расположен у леса, в 23 км от МКАД по Новорижскому шоссе, и идеально подойдёт для тех, кто ценит жизнь на природе и городской комфорт. На территории посёлка созданы водные каналы, 3 парка с озёрами, детскими площадками и широкими бульварами. У одного из озёр создан пляж для купания. Есть волейбольная и баскетбольная площадки, теннисные корты.
Делегируйте подбор или продажу экспертам вашего уровня
искусство загородной жизниПолучите персональную коллекцию от эксперта Villagio




Дом с бассейном — Ваш личный курорт!
Эксклюзив! Дом 575 кв.м. с качественным ремонтом, открытым подогреваемым бассейном и СПА-зоной.
Внутренняя отделка выполнена с использованием премиальных натуральных материалов в спокойных нейтральных тонах. Дом укомплектован дизайнерской мебелью и техников премиальных брендов. Вся кухонная техника — KitchenAid, прачечная — Miele.
Планировка основного дома:
1 этаж: гостиная с камином и выходом на большую уютную террасу, кухня-столовая, гостевая спальня, санузел, 2 гардеробные, отдельная бойлерная, прачечная, гараж на 2 автомобиля.
2 этаж: мастер-спальня с санузлом и гардеробной, три спальни, санузел.
Особое внимание уделено организации пространств для полноценного отдыха и восстановления сил. Владельцев ожидает открытый подогреваемый бассейн с зоной релаксации; банный комплекс, включающий финскую сауну, турецкий хаммам, санузел и просторную многофункциональную зону барбекю с мини-кухней, позволяющую насладиться пикниками и вечерними посиделками на открытом воздухе.
Земельный участок 12 соток облагорожен, высажен газон и декоративные растения.
КП «Новорижский» расположен у леса, в 23 км от МКАД по Новорижскому шоссе, и идеально подойдёт для тех, кто ценит жизнь на природе и городской комфорт. На территории посёлка созданы водные каналы, 3 парка с озёрами, детскими площадками и широкими бульварами. У одного из озёр создан пляж для купания. Есть волейбольная и баскетбольная площадки, теннисные корты.