Подпишитесь на новости Villagio
Мы ценим ваше время
Акция: при покупке дома с Villagio Realty вы получаете год сервиса - абсолютно бесплатно! Мы позаботимся обо всём, чтобы вы просто наслаждались жизнью в своём доме.
В полностью жилой части коттеджного поселка "Ренессанс Парк" предлагается к продаже современный загородный дом с гостевым домом на земельном участке 11 соток.
Участок облагорожен, выполнен ландшафтный дизайн, высажено множество декоративных растений.
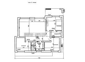
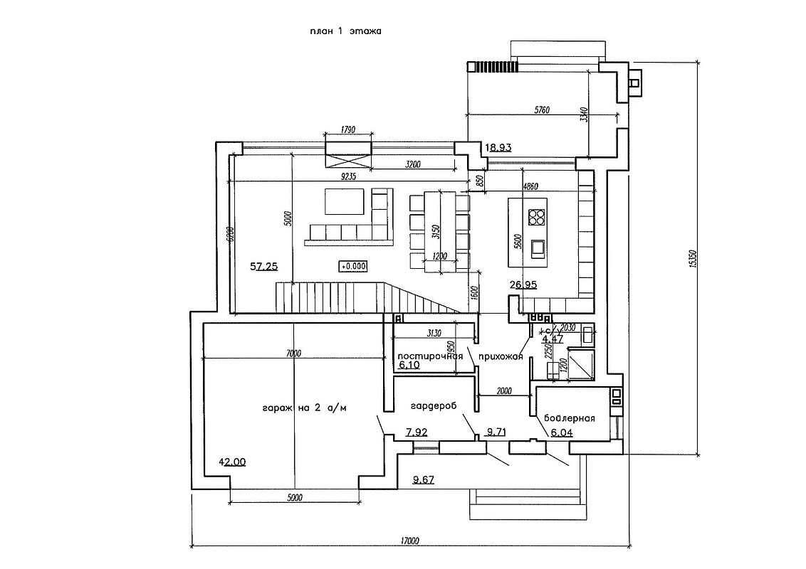
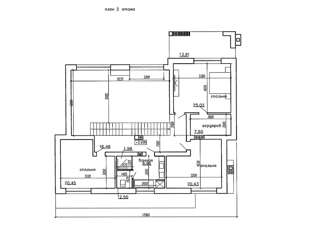
Основной дом площадью 395,9 м2 имеет 2 этажа и удобную продуманную планировку:
1 этаж: кухня-столовая-гостиная с панорамным остеклением в два этажа и красивыми видами на ухоженный участок, вторая гостиная с камином, гардеробная, санузел, холл, постирочная, гараж на 2 автомобиля;
2 этаж: мастер-спальня с гардеробной (можно переделать в санузел), 2 детские спальни, санузел.
В гостевом двухэтажном доме площадью 175,4 м2 располагается спа-зона с бассейном и сауной, кабинет, 2 спальни, 2 санузла и закрытая терраса - зона отдыха.
Оба здания отличаются значительной площадью остекления, благодаря чему открываются великолепные виды на окружающее пространство, помещение наполняется естественным светом, создавая чувство свободы и простора.
Интерьеры домов выполнены под ключ с применением высококачественных дорогостоящих отделочных материалов и оснащены всем необходимым для комфортного постоянного проживания.
Это идеальное решение для тех, кто ищет готовый к заселению комфортный современный загородный дом в престижном районе ближнего Подмосковья.
Делегируйте подбор или продажу экспертам вашего уровня
искусство загородной жизниПолучите персональную коллекцию от эксперта Villagio




Акция: при покупке дома с Villagio Realty вы получаете год сервиса — абсолютно бесплатно! Мы позаботимся обо всём, чтобы вы просто наслаждались жизнью в своём доме.
В полностью жилой части коттеджного поселка «Ренессанс Парк» предлагается к продаже современный загородный дом с гостевым домом на земельном участке 11 соток.
Участок облагорожен, выполнен ландшафтный дизайн, высажено множество декоративных растений.
Основной дом площадью 395,9 м2 имеет 2 этажа и удобную продуманную планировку:
1 этаж: кухня-столовая-гостиная с панорамным остеклением в два этажа и красивыми видами на ухоженный участок, вторая гостиная с камином, гардеробная, санузел, холл, постирочная, гараж на 2 автомобиля;
2 этаж: мастер-спальня с гардеробной (можно переделать в санузел), 2 детские спальни, санузел.
В гостевом двухэтажном доме площадью 175,4 м2 располагается спа-зона с бассейном и сауной, кабинет, 2 спальни, 2 санузла и закрытая терраса — зона отдыха.
Оба здания отличаются значительной площадью остекления, благодаря чему открываются великолепные виды на окружающее пространство, помещение наполняется естественным светом, создавая чувство свободы и простора.
Интерьеры домов выполнены под ключ с применением высококачественных дорогостоящих отделочных материалов и оснащены всем необходимым для комфортного постоянного проживания.
Это идеальное решение для тех, кто ищет готовый к заселению комфортный современный загородный дом в престижном районе ближнего Подмосковья.