Подпишитесь на новости Villagio
Мы ценим ваше время
Проект дома в стиле Барн Хаус для современных, ценящего комфорт, уют и безопасность. Современный архитектурный дизайн, каждая деталь в доме продумана до мелочей.
Дом 500 м2 спроектирован и построен с учётом новейших технологий, с использованием натуральных материалов, с премиальными инженерными коммуникациями, с широким функциональным и гармоничным зонированием помещений.
Дом готов под чистовую отделку, имеется готовый дизайн проект. Все коммуникации подключены, частично закуплена сантехника, межкомнатные двери. Создать интерьер полностью под себя, не отвлекаясь на другие строительные работы, позволяет отделка white box.
Выполнен в современном стиле, с просторными террасами на первом и втором этажах, павильон с бассейном, зона патио с кострищем, навес для 2 м/м.
Перед домом проведены ландшафтные работы, высажены туи. Участок 10 сот. правильной прямоугольной формы, подготовлен к ландшафтным работам. Сделан дренаж. Периметр участка огорожен забором в едином стиле посёлка.
Планировка тщательно разрабатывалась командой архитекторов и дизайнеров:
1 этаж: холл, гардеробная, кухня-столовая, гостиная с выходом на террасу к патио с кострищем, с/у, гардеробная, холл, котельная, техническое помещение, малая гостиная /кальянная, 2 спальни, 2 с/у;
Пристройка: гараж и мастерская, котельная, техническое помещение для оборудования бассейна и хранения садовых инструментов, хамам/сауна/раздевалка, павильон бассейна с композитной чашей;
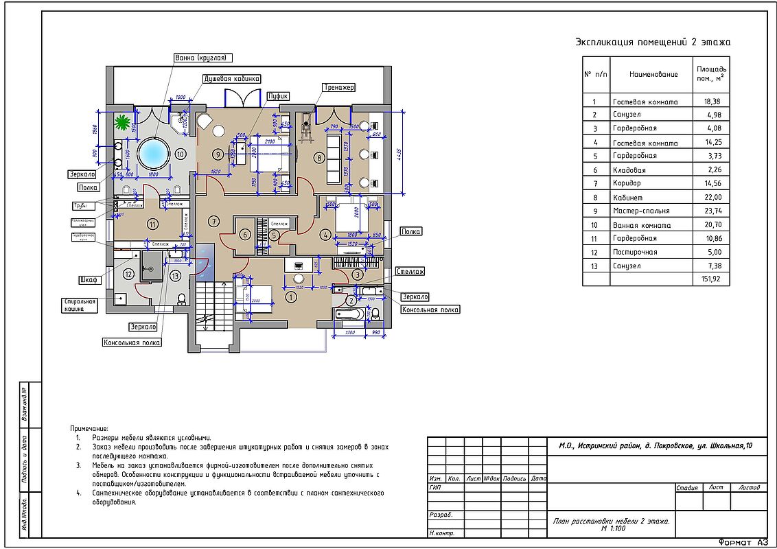
2 этаж: 3 спальни с гардеробными, помещение для студии звукозаписи, мастер-спальня, 3 с/у, постирочная, терраса;
3 этаж - лаунж зона с мансардными окнами, свободное помещение под спортивный зал/бильярдную/пинг-понг и т.д., с/у, помещения под хоз.нужды.
Коттеджный поселок "Новорижский" - это элитный поселок в 23 км по Новорижскому шоссе. Поселок расположился в окружении смешанного леса, образующего естественную рекреационную зону. Тротуары и прогулочные зоны выложены брусчаткой.
Внутренняя инфраструктура: детский сад, спортивная площадка, три зоны отдыха с искусственным водоемом, магазин, гостевая парковка, ремонтно-эксплуатационная служба, круглосуточная охрана, видеонаблюдение, КПП на въезде.
Внешняя инфраструктура: Аутлет Новая Рига, ТЦ Княжий Двор, школа Вандер Парк, школа Экономики и права.Рядом поселки: Агаларов Эстейт, Княжье Озеро, Кембридж, Покровский Монтевиль, Риверсайд.
Продажа напрямую от собственника.
Делегируйте подбор или продажу экспертам вашего уровня
искусство загородной жизниПолучите персональную коллекцию от эксперта Villagio




Проект дома в стиле Барн Хаус для современных, ценящего комфорт, уют и безопасность. Современный архитектурный дизайн, каждая деталь в доме продумана до мелочей.
Дом 500 м2 спроектирован и построен с учётом новейших технологий, с использованием натуральных материалов, с премиальными инженерными коммуникациями, с широким функциональным и гармоничным зонированием помещений.
Дом готов под чистовую отделку, имеется готовый дизайн проект. Все коммуникации подключены, частично закуплена сантехника, межкомнатные двери. Создать интерьер полностью под себя, не отвлекаясь на другие строительные работы, позволяет отделка white box.
Выполнен в современном стиле, с просторными террасами на первом и втором этажах, павильон с бассейном, зона патио с кострищем, навес для 2 м/м.
Перед домом проведены ландшафтные работы, высажены туи. Участок 10 сот. правильной прямоугольной формы, подготовлен к ландшафтным работам. Сделан дренаж. Периметр участка огорожен забором в едином стиле посёлка.
Планировка тщательно разрабатывалась командой архитекторов и дизайнеров:
1 этаж: холл, гардеробная, кухня-столовая, гостиная с выходом на террасу к патио с кострищем, с/у, гардеробная, холл, котельная, техническое помещение, малая гостиная /кальянная, 2 спальни, 2 с/у;
Пристройка: гараж и мастерская, котельная, техническое помещение для оборудования бассейна и хранения садовых инструментов, хамам/сауна/раздевалка, павильон бассейна с композитной чашей;
2 этаж: 3 спальни с гардеробными, помещение для студии звукозаписи, мастер-спальня, 3 с/у, постирочная, терраса;
3 этаж — лаунж зона с мансардными окнами, свободное помещение под спортивный зал/бильярдную/пинг-понг и т. д., с/у, помещения под хоз.нужды.
Коттеджный поселок «Новорижский» — это элитный поселок в 23 км по Новорижскому шоссе. Поселок расположился в окружении смешанного леса, образующего естественную рекреационную зону. Тротуары и прогулочные зоны выложены брусчаткой.
Внутренняя инфраструктура: детский сад, спортивная площадка, три зоны отдыха с искусственным водоемом, магазин, гостевая парковка, ремонтно-эксплуатационная служба, круглосуточная охрана, видеонаблюдение, КПП на въезде.
Внешняя инфраструктура: Аутлет Новая Рига, ТЦ Княжий Двор, школа Вандер Парк, школа Экономики и права.Рядом поселки: Агаларов Эстейт, Княжье Озеро, Кембридж, Покровский Монтевиль, Риверсайд.
Продажа напрямую от собственника.