Подпишитесь на новости Villagio
Мы ценим ваше время
Современная вилла, спроектированная архитектурным бюро SL Project, является уникальным образцом архитектурного искусства, в котором удачно сочетаются передовые дизайнерские решения, новейшие технологии и приватность. Каждая деталь этого проекта продумана до мелочей, что делает его поистине исключительным.
Основные характеристики виллы:
Идеальное расположение: Оптимальное размещение по сторонам света обеспечивает максимальное количество солнечного света в каждом помещении.
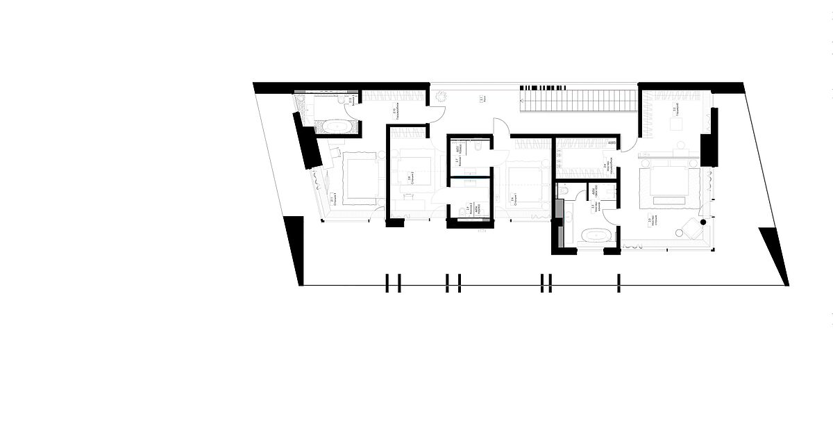
Спальни: Каждая спальня имеет выход на балкон, что создает ощущение легкости и открытости.
Входной холл: Респектабельный входной холл создает впечатляющее первое впечатление.
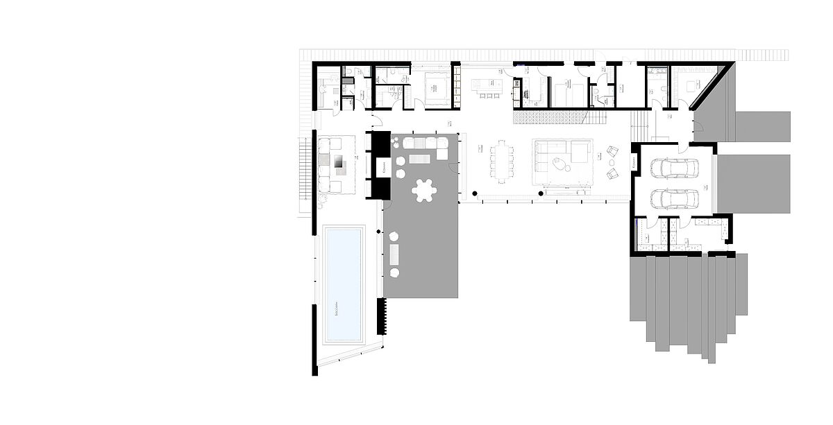
Гостиная: Просторная гостиная площадью 130 м² с высотой потолка 3,8 метра, оснащенная диванами, камином и столом на 10 персон. Современная кухня с островом прекрасно вписывается в общую концепцию.
SPA-зона: Отдельная зона для отдыха включает в себя сауну и бассейн, создавая идеальные условия для восстановления и расслабления.
Гостевая спальня: Удобное место для ваших гостей.
Гараж: Вилла оборудована гаражом на две машины для максимального удобства.
Техническая зона: Функциональная зона с полноценной кухней, постирочной и квартирой для персонала добавляет практичности.
Мастер-спальня: Просторная мастер-спальня с великолепной ванной комнатой, большими гардеробами и выходом на балкон создает атмосферу уюта и комфорта.
Приватный внутренний двор: Изолированный от улицы живой изгородью, двор предлагает уединение и спокойствие.
Терраса: Уличный камин и зона для барбекю на террасе позволяют наслаждаться времяпровождением на свежем воздухе.
Гармония с природой: В каждом элементе проекта ощущается бережное отношение к природе и стремление к её идеальному взаимодействию с архитектурой.
Эта вилла — настоящий оазис современного жизненного стиля, где каждая деталь продумана для создания комфорта и гармонии с окружающей средой.
Делегируйте подбор или продажу экспертам вашего уровня
искусство загородной жизниПолучите персональную коллекцию от эксперта Villagio




Современная вилла, спроектированная архитектурным бюро SL Project, является уникальным образцом архитектурного искусства, в котором удачно сочетаются передовые дизайнерские решения, новейшие технологии и приватность. Каждая деталь этого проекта продумана до мелочей, что делает его поистине исключительным.
Основные характеристики виллы:
Идеальное расположение: Оптимальное размещение по сторонам света обеспечивает максимальное количество солнечного света в каждом помещении.
Спальни: Каждая спальня имеет выход на балкон, что создает ощущение легкости и открытости.
Входной холл: Респектабельный входной холл создает впечатляющее первое впечатление.
Гостиная: Просторная гостиная площадью 130 м² с высотой потолка 3,8 метра, оснащенная диванами, камином и столом на 10 персон. Современная кухня с островом прекрасно вписывается в общую концепцию.
SPA-зона: Отдельная зона для отдыха включает в себя сауну и бассейн, создавая идеальные условия для восстановления и расслабления.
Гостевая спальня: Удобное место для ваших гостей.
Гараж: Вилла оборудована гаражом на две машины для максимального удобства.
Техническая зона: Функциональная зона с полноценной кухней, постирочной и квартирой для персонала добавляет практичности.
Мастер-спальня: Просторная мастер-спальня с великолепной ванной комнатой, большими гардеробами и выходом на балкон создает атмосферу уюта и комфорта.
Приватный внутренний двор: Изолированный от улицы живой изгородью, двор предлагает уединение и спокойствие.
Терраса: Уличный камин и зона для барбекю на террасе позволяют наслаждаться времяпровождением на свежем воздухе.
Гармония с природой: В каждом элементе проекта ощущается бережное отношение к природе и стремление к её идеальному взаимодействию с архитектурой.
Эта вилла — настоящий оазис современного жизненного стиля, где каждая деталь продумана для создания комфорта и гармонии с окружающей средой.