Подпишитесь на новости Villagio
Мы ценим ваше время
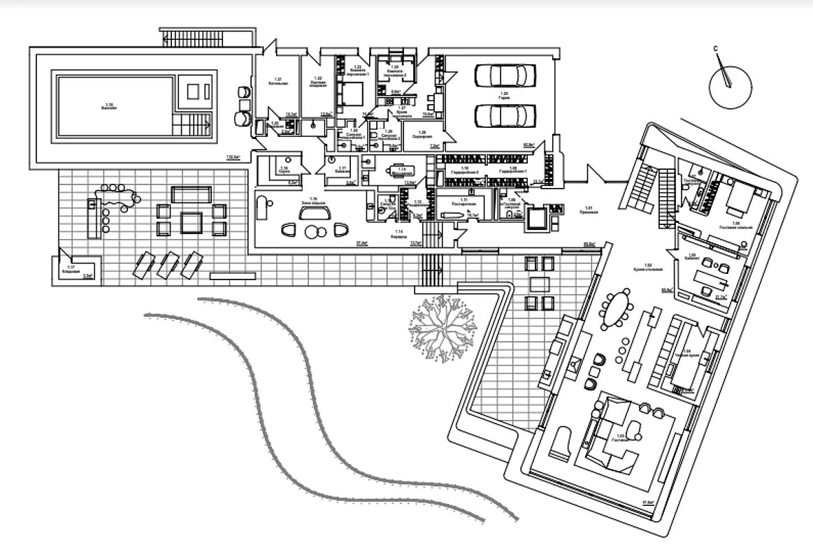
Эксклюзивный современный дом 1917 кв.м. на участке 63 сотки.
Внутреннее пространство включает 2 этажа, 8 спален, 9 ванных комнат, террасы, домашний кинотеатр, спортзал, винный погреб, эксплуатируемую кровлю, СПА-зону с бассейном, сауной и хаммамом.
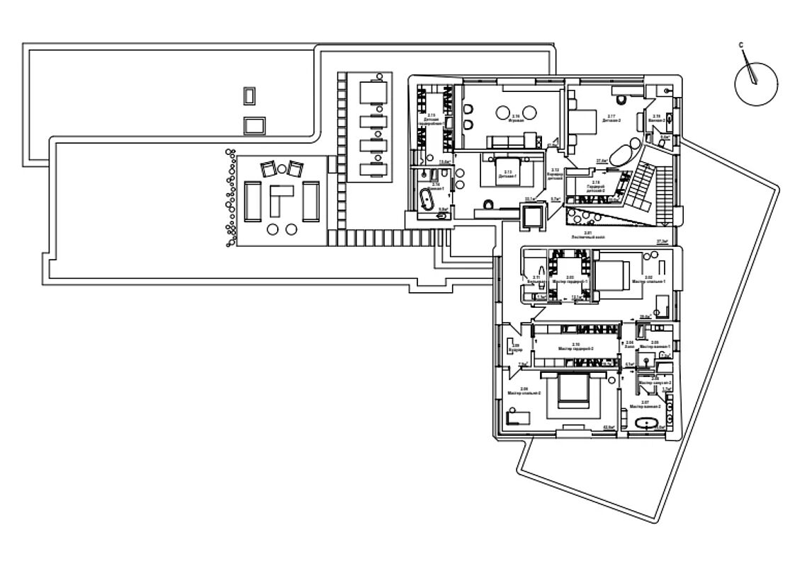
Планировка дома продумана до мелочей: первый этаж с просторными общественными зонами дарит возможность для комфортного проживания и отдыха, тогда как второй этаж обеспечивает уединение благодаря приватным комнатам.
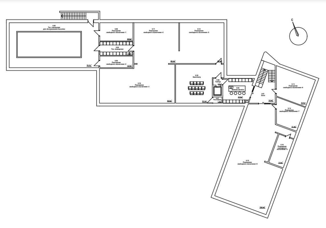
Подземный уровень с залом свободного назначения открывает дополнительные возможности для использования пространства, будь то спортзал, кинотеатр или развлекательная зона.
Посёлок премиум-класса "Дарьино-Успенское" расположен всего в 20 километров от столицы. Удобное транспортное сообщение, включая близость к МКАД и аэропорту Внуково, обеспечивает легкий доступ к столице и основным транспортным артериям.
На территории обустроена большая зона отдыха с детскими и спортивными площадками. Великолепный ландшафтный дизайн сочетается с практически нетронутыми уголками дикой природы. Имеющиеся прогулочные зоны и спортивные площадки в окружающем лесу создают идеальные условия для активного отдыха и наслаждения природой.
Обширная инфраструктура в непосредственной близости от поселка включает в себя все необходимое для комфортного проживания: супермаркеты, фитнес-центры, салоны красоты, лучшие школы и детские сады, клинический госпиталь Лапино, многочисленные кружки и спортивные секции для детей, кафе, рестораны, аптеки, химчистки и многое другое.
Делегируйте подбор или продажу экспертам вашего уровня
искусство загородной жизниПолучите персональную коллекцию от эксперта Villagio




Эксклюзивный современный дом 1917 кв.м. на участке 63 сотки.
Внутреннее пространство включает 2 этажа, 8 спален, 9 ванных комнат, террасы, домашний кинотеатр, спортзал, винный погреб, эксплуатируемую кровлю, СПА-зону с бассейном, сауной и хаммамом.
Планировка дома продумана до мелочей: первый этаж с просторными общественными зонами дарит возможность для комфортного проживания и отдыха, тогда как второй этаж обеспечивает уединение благодаря приватным комнатам.
Подземный уровень с залом свободного назначения открывает дополнительные возможности для использования пространства, будь то спортзал, кинотеатр или развлекательная зона.
Посёлок премиум-класса «Дарьино-Успенское» расположен всего в 20 километров от столицы. Удобное транспортное сообщение, включая близость к МКАД и аэропорту Внуково, обеспечивает легкий доступ к столице и основным транспортным артериям.
На территории обустроена большая зона отдыха с детскими и спортивными площадками. Великолепный ландшафтный дизайн сочетается с практически нетронутыми уголками дикой природы. Имеющиеся прогулочные зоны и спортивные площадки в окружающем лесу создают идеальные условия для активного отдыха и наслаждения природой.
Обширная инфраструктура в непосредственной близости от поселка включает в себя все необходимое для комфортного проживания: супермаркеты, фитнес-центры, салоны красоты, лучшие школы и детские сады, клинический госпиталь Лапино, многочисленные кружки и спортивные секции для детей, кафе, рестораны, аптеки, химчистки и многое другое.