Подпишитесь на новости Villagio
Мы ценим ваше время
Надежный и теплый кирпичный дом в английском стиле под отделку.
Площадь 300 кв.м., 2 этажа + мансарда, гараж на 2 автомобиля и два парковочных места перед гаражом. Земельный участок 6 соток.
Все коммуникации центральные. Формат "под отделку" предоставляет новым собственникам возможность организовать уютное и удобное пространство на свой вкус.
Продуманная планировка обеспечивает комфорт каждому члену семьи:
1 этаж: гардеробная, спальня, уборная, кухня-гостиная с выходом на террасу.
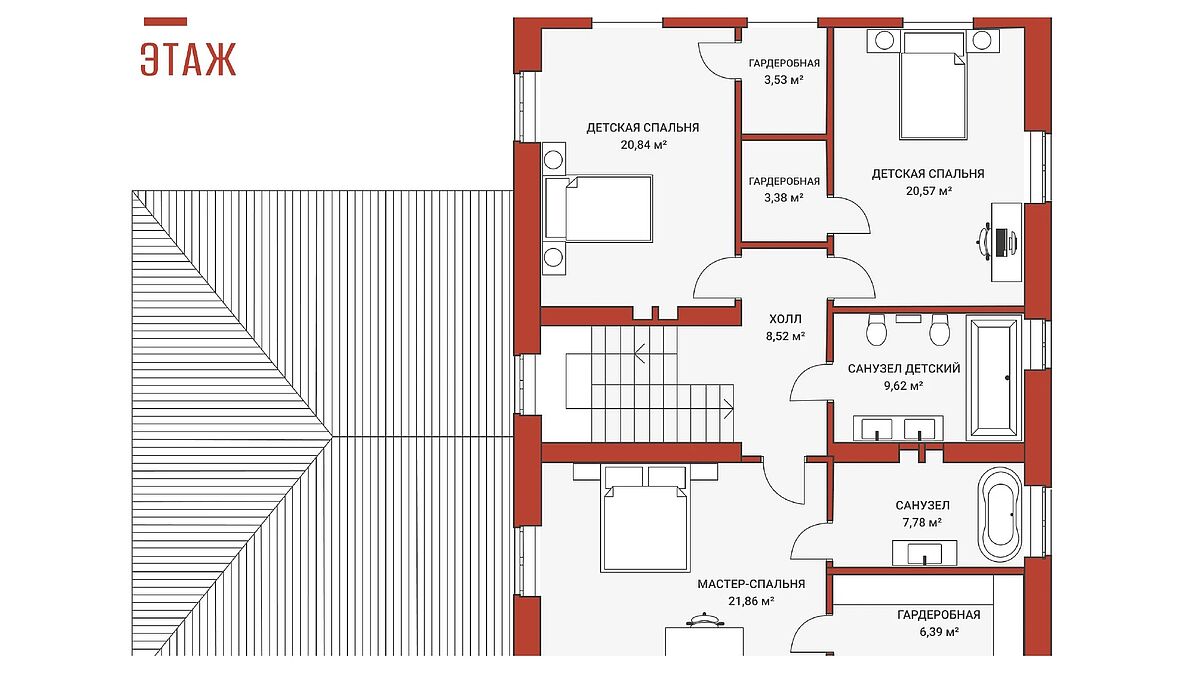
2 этаж: мастер-спальня с гардеробной и санузлом, две детские спальни, ванные комнаты и гардеробная.
3 мансардный этаж: свободное назначение, возможность размещения дополнительных спален.
"Аносино Village" - небольшой уютный поселок клубного типа в едином стиле, расположенный в 25 км. от МКАД по Новорижскому шоссе.
Вся инфраструктура для комфортного проживания в 5 минутной доступности, в шаговой доступности супермаркет Мираторг, Вкус Вилл, химчистка, цветы, пункты выдачи.
Делегируйте подбор или продажу экспертам вашего уровня
искусство загородной жизниПолучите персональную коллекцию от эксперта Villagio




Надежный и теплый кирпичный дом в английском стиле под отделку.
Площадь 300 кв.м., 2 этажа + мансарда, гараж на 2 автомобиля и два парковочных места перед гаражом. Земельный участок 6 соток.
Все коммуникации центральные. Формат «под отделку» предоставляет новым собственникам возможность организовать уютное и удобное пространство на свой вкус.
Продуманная планировка обеспечивает комфорт каждому члену семьи:
1 этаж: гардеробная, спальня, уборная, кухня-гостиная с выходом на террасу.
2 этаж: мастер-спальня с гардеробной и санузлом, две детские спальни, ванные комнаты и гардеробная.
3 мансардный этаж: свободное назначение, возможность размещения дополнительных спален.
«Аносино Village» — небольшой уютный поселок клубного типа в едином стиле, расположенный в 25 км. от МКАД по Новорижскому шоссе.
Вся инфраструктура для комфортного проживания в 5 минутной доступности, в шаговой доступности супермаркет Мираторг, Вкус Вилл, химчистка, цветы, пункты выдачи.