Подпишитесь на новости Villagio
Мы ценим ваше время
Просторный двухэтажный дом площадью 540 кв.м. с 5 спальнями.
Дом завершён на этапе Финишная отделка без мебели. Можете просто купить мебель и сразу заехать. А если хочется — легко поменяйте цвет стен или плитки на свой вкус.
Дом построен из экологически чистых и качественных материалов с соблюдением всех технологий строительства.
Стены
в доме являются дышащими и паропроницаемыми с показателем равным 0,20 мг/(мчПа). Это важный параметр, так как он влияет на комфортный микроклимат в помещении и долговечность конструкции. Стены выполнены из блоков Bonolit D500.
Стены являются очень теплыми.
Коэффициент сопротивления теплопередаче стены из блоков D500 толщиной 400 мм составляет 2,8 Вт/мC, что соответствует современным требованиям по теплозащите зданий в Московской Области, но мы утеплили стены еще на 100 мм каменной ватой это дает идеальную защиту от потери тепла.
Декорированы стены качественной немецкой клинкерной плиткой.
Крыша.
Усиленная теплоизоляция и качественная мягкая черепица. Самый практичный и долговечный материал после меди.
Панорамные окна от выполнены из профиля REHAU.
Инженерия:
Газовое отопление, водяной тёплый пол с регулировкой температуры в каждой комнате.
Водоснабжение — собственная артезианская скважина и система водоочистки: вода кристально чистая, никакой пластиковой бутилированной воды не нужно.
Первый этаж — кухня с выходом на террасу, кабинет, спальня с санузлом, постирочная, гостевой туалет, котельная и гараж на два автомобиля.
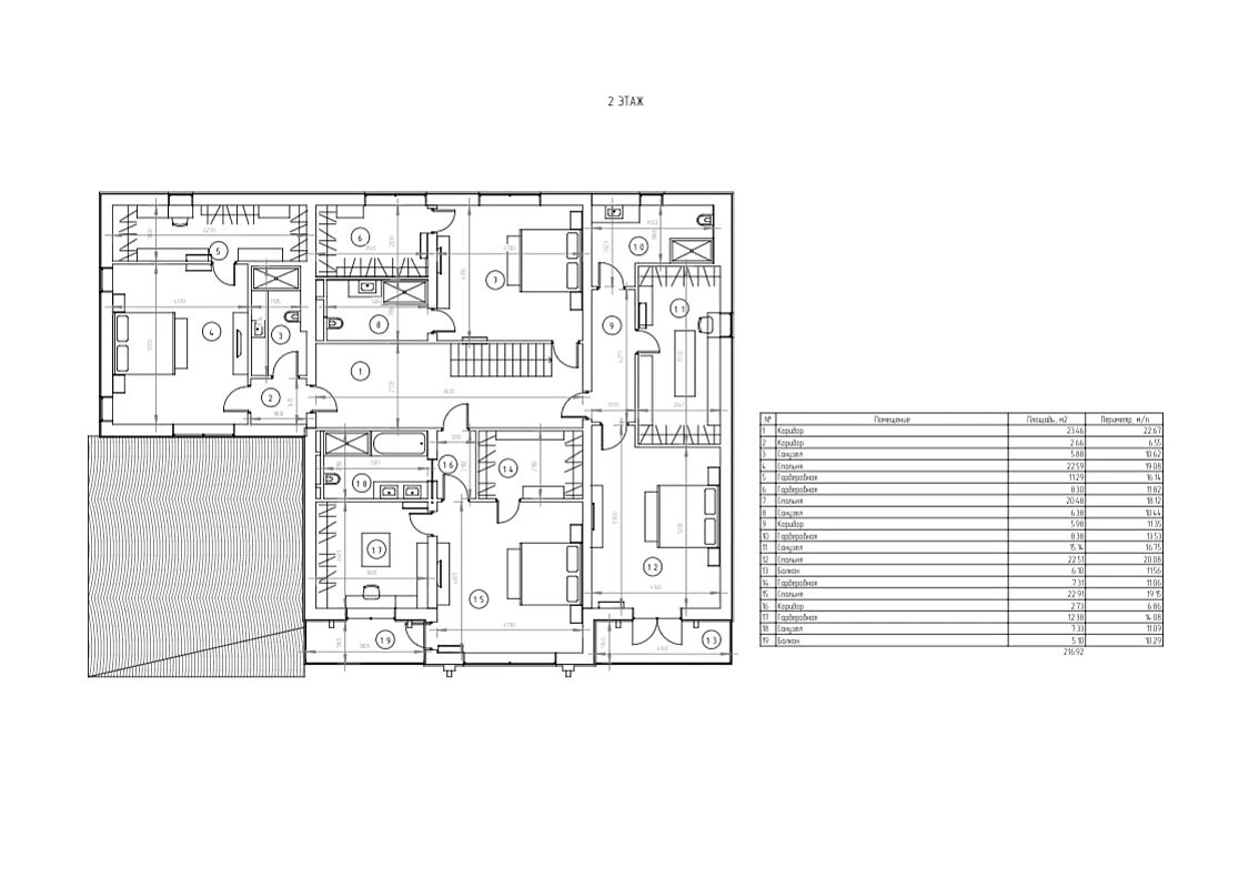
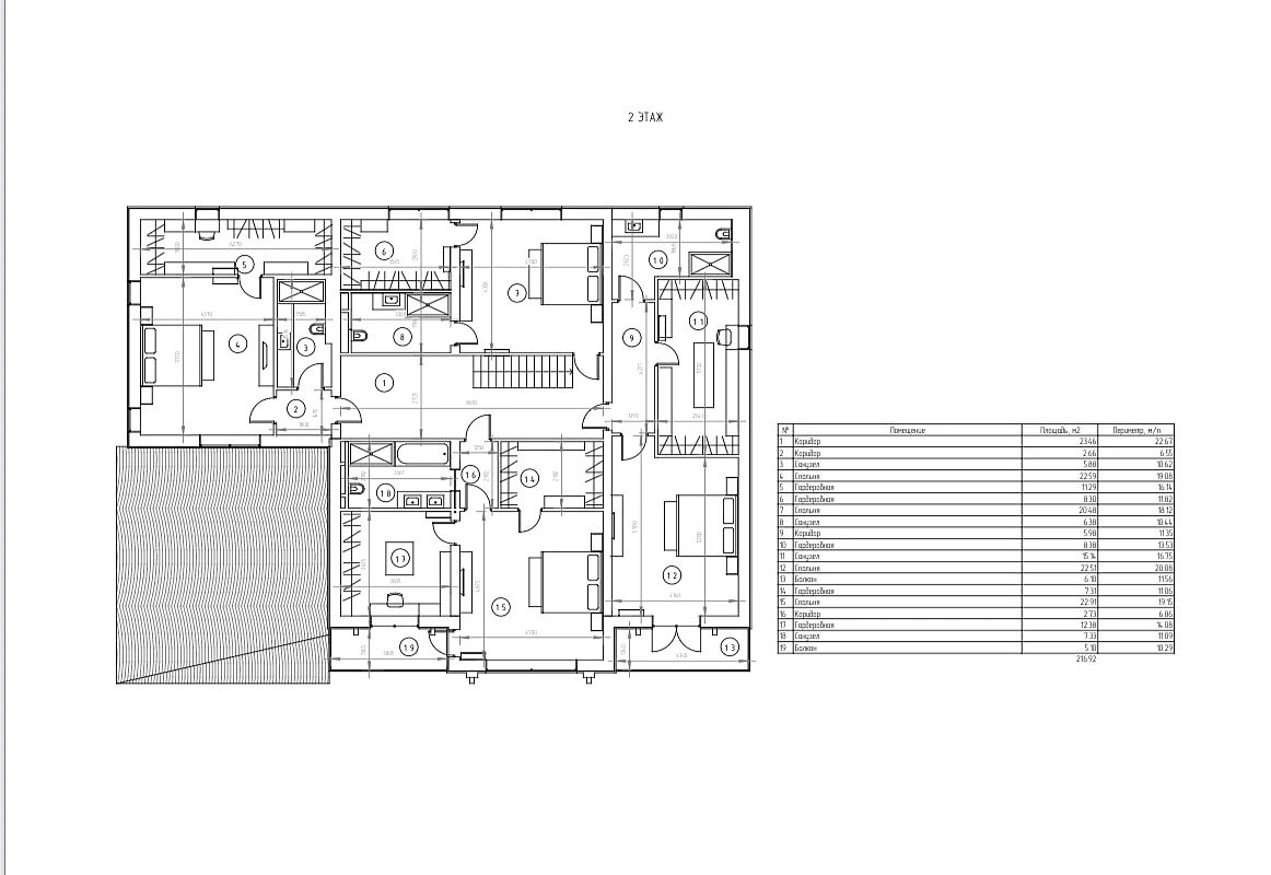
Второй этаж — четыре спальни, каждая со своей гардеробной и ванной комнатой. Хозяйская — с балконом.
Инфраструктура.
5 минут на машине — и вы у ВкусВилла. Школа Ломоносовская — всего в 3,5 км. В 10 минутах пешком — новый парк площадью 80 гектаров.
до Рублёвского ТЦ — 10 км.
Дом идеально подойдет для семьи, ценящей комфорт и простор.
Делегируйте подбор или продажу экспертам вашего уровня
искусство загородной жизниПолучите персональную коллекцию от эксперта Villagio




Просторный двухэтажный дом площадью 540 кв.м. с 5 спальнями.
Дом завершён на этапе Финишная отделка без мебели. Можете просто купить мебель и сразу заехать. А если хочется — легко поменяйте цвет стен или плитки на свой вкус.
Дом построен из экологически чистых и качественных материалов с соблюдением всех технологий строительства.
Стены
в доме являются дышащими и паропроницаемыми с показателем равным 0,20 мг/(мчПа). Это важный параметр, так как он влияет на комфортный микроклимат в помещении и долговечность конструкции. Стены выполнены из блоков Bonolit D500.
Стены являются очень теплыми.
Коэффициент сопротивления теплопередаче стены из блоков D500 толщиной 400 мм составляет 2,8 Вт/мC, что соответствует современным требованиям по теплозащите зданий в Московской Области, но мы утеплили стены еще на 100 мм каменной ватой это дает идеальную защиту от потери тепла.
Декорированы стены качественной немецкой клинкерной плиткой.
Крыша.
Усиленная теплоизоляция и качественная мягкая черепица. Самый практичный и долговечный материал после меди.
Панорамные окна от выполнены из профиля REHAU.
Инженерия:
Газовое отопление, водяной тёплый пол с регулировкой температуры в каждой комнате.
Водоснабжение — собственная артезианская скважина и система водоочистки: вода кристально чистая, никакой пластиковой бутилированной воды не нужно.
Первый этаж — кухня с выходом на террасу, кабинет, спальня с санузлом, постирочная, гостевой туалет, котельная и гараж на два автомобиля.
Второй этаж — четыре спальни, каждая со своей гардеробной и ванной комнатой. Хозяйская — с балконом.
Инфраструктура.
5 минут на машине — и вы у ВкусВилла. Школа Ломоносовская — всего в 3,5 км. В 10 минутах пешком — новый парк площадью 80 гектаров.
до Рублёвского ТЦ — 10 км.
Дом идеально подойдет для семьи, ценящей комфорт и простор.