Подпишитесь на новости Villagio
Мы ценим ваше время
В КП «Гринфилд» по выгодной цене продаётся новый эксклюзивный дом "под ключ". Архитектурный стиль – геометрический хай-тек, отделка фасадов выполнена в бело-коричневых тонах.
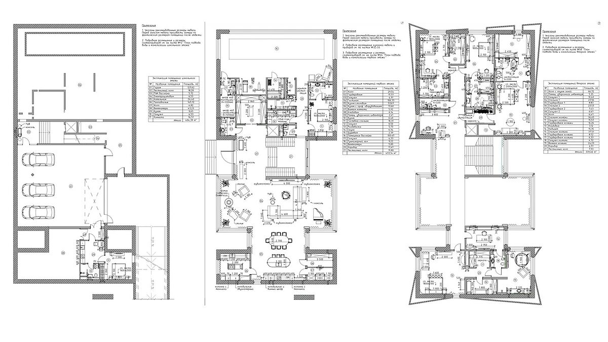
Вилла площадью 1250 м2 спpоектиpована аpхитектуным бюро 2307, занимающее призовые места на престижных международных конкурсах. Концепция Виллы - стильный архитектурный минимализм. Главная изюминка дома заключается в оригинальной ориентации боковых стен: у основания они составляют острый угол с отмосткой.
В здании три этажа, один из них – цокольный. Общая площадь дома составляет 1200 кв. м: идеально подходит для большой семьи ценителей современной архитектуры. Год постройки - 2024.
Планировка предусматривает наличие 5 спален; просторной гостиной со вторым светом и камином; бани; крытого бассейна; санузлов, гардеробных; помещения для персонала; просторной кухни-столовой; кабинета и SPA. В доме два Мастер-блока. Мужской с кабинетом, Гидромассажной ванной, двумя гардеробными комнатами. Женский с зимним садом: отдельно стоящей ванной, двумя гардеробными комнатами. СПА Зона с Бассейном 13 метров ( Тренажерный зал, Финская Сауна, Бассейн с противотоком, гейзером и автоматическими жалюзи, два душа, раздевалка, сан.узел, комната отдыха, система обливания холодной водой. Из Бассейна есть два выхода на улицу. Беседка/ Зона Барбекю и Камина общей площадью 85 кв.м.
В доме одинаково комфортно будут чувствовать себя молодые люди и их пожилые родственники. Последние в выборе спальни не ограничены: этот уникальный дом оборудован лифтом.
В цокольном этаже есть спортивный зал с тренажёрами. Панорамное остекление обеспечивает обилие дневного света в помещениях и даёт возможность любоваться живописным ландшафтом элитного посёлка. В тёплое время года для созерцания красоты больше подойдёт просторная терраса. К дому примыкает капитальный гараж, выполненный в едином стиле с главной постройкой.
Дом готов к заселению: установлена сантехника, выполнена разводка внутренних инженерных сетей, подключённых к центральным коммуникациям водоснабжения, канализации, электроснабжения и магистральному газопроводу. В здание заведены высокоскоростной проводной интернет, телевидение, телефония.
Для внутренней отделки использовались материалы класса Deluxe. Интерьер выдержан в лучших традициях хай-тек: минимум декора, максимум функциональности. Главным его украшением служит дорогая добротная мебель от известных зарубежных производителей.
Мебель гостиной и обеденная зона от итальянской фабрики MINOTTI, камин Focus (Франция) с поворотным механизмом и двумя раздвижными стёклами. Кухня от Binova, укомплектованная самыми последними топовыми моделями техники Miele. Гостиная оборудована домашним кинотеатром. Люстры на заказ от итальянской фабрики ITALAMP. Весь технический свет в доме, уличное и фасадное освещение от компании ЦЕНТРСВЕТ. На улице в специально отведенном месте установлены дизельный генератор и блок кондиционера.
Дом построен на участке площадью 16,67 соток с продуманным ландшафтным дизайном, в тихом месте коттеджного посёлка. На участке используются большие плиты на газоне-концепция «step by step» из гранита, имеется уклон на открытой парковке и система водо-отведения воды. Высажено более 200 растений, в т.ч. Ниваки и крупномеры, уложен газон. Все растения приобретены в Питомнике Евро Парк на Новой Риге.
«Гринфилд» круглосуточно охраняется, под видеонаблюдением находится территория КП премиум-класса и каждый приватный участок.
Расстояние от Москвы – 23 км, добраться сюда можно по Новорижскому шоссе, а далее до КПП посёлка – по частной дороге, пролегающей через лесной массив. Пропуск в посёлок даёт его владельцу возможность пользоваться услугами объектов инфраструктуры соседних коттеджных посёлков. Крупные торговые центры, гимназии и школы, спортивные клубы находятся в 10-15 минутах езды на авто от контрольно-пропускного пункта КП.
Делегируйте подбор или продажу экспертам вашего уровня
искусство загородной жизниПолучите персональную коллекцию от эксперта Villagio




В КП «Гринфилд» по выгодной цене продаётся новый эксклюзивный дом «под ключ». Архитектурный стиль — геометрический хай-тек, отделка фасадов выполнена в бело-коричневых тонах.
Вилла площадью 1250 м2 спpоектиpована аpхитектуным бюро 2307, занимающее призовые места на престижных международных конкурсах. Концепция Виллы — стильный архитектурный минимализм. Главная изюминка дома заключается в оригинальной ориентации боковых стен: у основания они составляют острый угол с отмосткой.
В здании три этажа, один из них — цокольный. Общая площадь дома составляет 1200 кв. м: идеально подходит для большой семьи ценителей современной архитектуры. Год постройки — 2024.
Планировка предусматривает наличие 5 спален; просторной гостиной со вторым светом и камином; бани; крытого бассейна; санузлов, гардеробных; помещения для персонала; просторной кухни-столовой; кабинета и SPA. В доме два Мастер-блока. Мужской с кабинетом, Гидромассажной ванной, двумя гардеробными комнатами. Женский с зимним садом: отдельно стоящей ванной, двумя гардеробными комнатами. СПА Зона с Бассейном 13 метров ( Тренажерный зал, Финская Сауна, Бассейн с противотоком, гейзером и автоматическими жалюзи, два душа, раздевалка, сан.узел, комната отдыха, система обливания холодной водой. Из Бассейна есть два выхода на улицу. Беседка/ Зона Барбекю и Камина общей площадью 85 кв.м.
В доме одинаково комфортно будут чувствовать себя молодые люди и их пожилые родственники. Последние в выборе спальни не ограничены: этот уникальный дом оборудован лифтом.
В цокольном этаже есть спортивный зал с тренажёрами. Панорамное остекление обеспечивает обилие дневного света в помещениях и даёт возможность любоваться живописным ландшафтом элитного посёлка. В тёплое время года для созерцания красоты больше подойдёт просторная терраса. К дому примыкает капитальный гараж, выполненный в едином стиле с главной постройкой.
Дом готов к заселению: установлена сантехника, выполнена разводка внутренних инженерных сетей, подключённых к центральным коммуникациям водоснабжения, канализации, электроснабжения и магистральному газопроводу. В здание заведены высокоскоростной проводной интернет, телевидение, телефония.
Для внутренней отделки использовались материалы класса Deluxe. Интерьер выдержан в лучших традициях хай-тек: минимум декора, максимум функциональности. Главным его украшением служит дорогая добротная мебель от известных зарубежных производителей.
Мебель гостиной и обеденная зона от итальянской фабрики MINOTTI, камин Focus (Франция) с поворотным механизмом и двумя раздвижными стёклами. Кухня от Binova, укомплектованная самыми последними топовыми моделями техники Miele. Гостиная оборудована домашним кинотеатром. Люстры на заказ от итальянской фабрики ITALAMP. Весь технический свет в доме, уличное и фасадное освещение от компании ЦЕНТРСВЕТ. На улице в специально отведенном месте установлены дизельный генератор и блок кондиционера.
Дом построен на участке площадью 16,67 соток с продуманным ландшафтным дизайном, в тихом месте коттеджного посёлка. На участке используются большие плиты на газоне-концепция «step by step» из гранита, имеется уклон на открытой парковке и система водо-отведения воды. Высажено более 200 растений, в т. ч. Ниваки и крупномеры, уложен газон. Все растения приобретены в Питомнике Евро Парк на Новой Риге.
«Гринфилд» круглосуточно охраняется, под видеонаблюдением находится территория КП премиум-класса и каждый приватный участок.
Расстояние от Москвы — 23 км, добраться сюда можно по Новорижскому шоссе, а далее до КПП посёлка — по частной дороге, пролегающей через лесной массив. Пропуск в посёлок даёт его владельцу возможность пользоваться услугами объектов инфраструктуры соседних коттеджных посёлков. Крупные торговые центры, гимназии и школы, спортивные клубы находятся в 10–15 минутах езды на авто от контрольно-пропускного пункта КП.