Подпишитесь на новости Villagio
Мы ценим ваше время
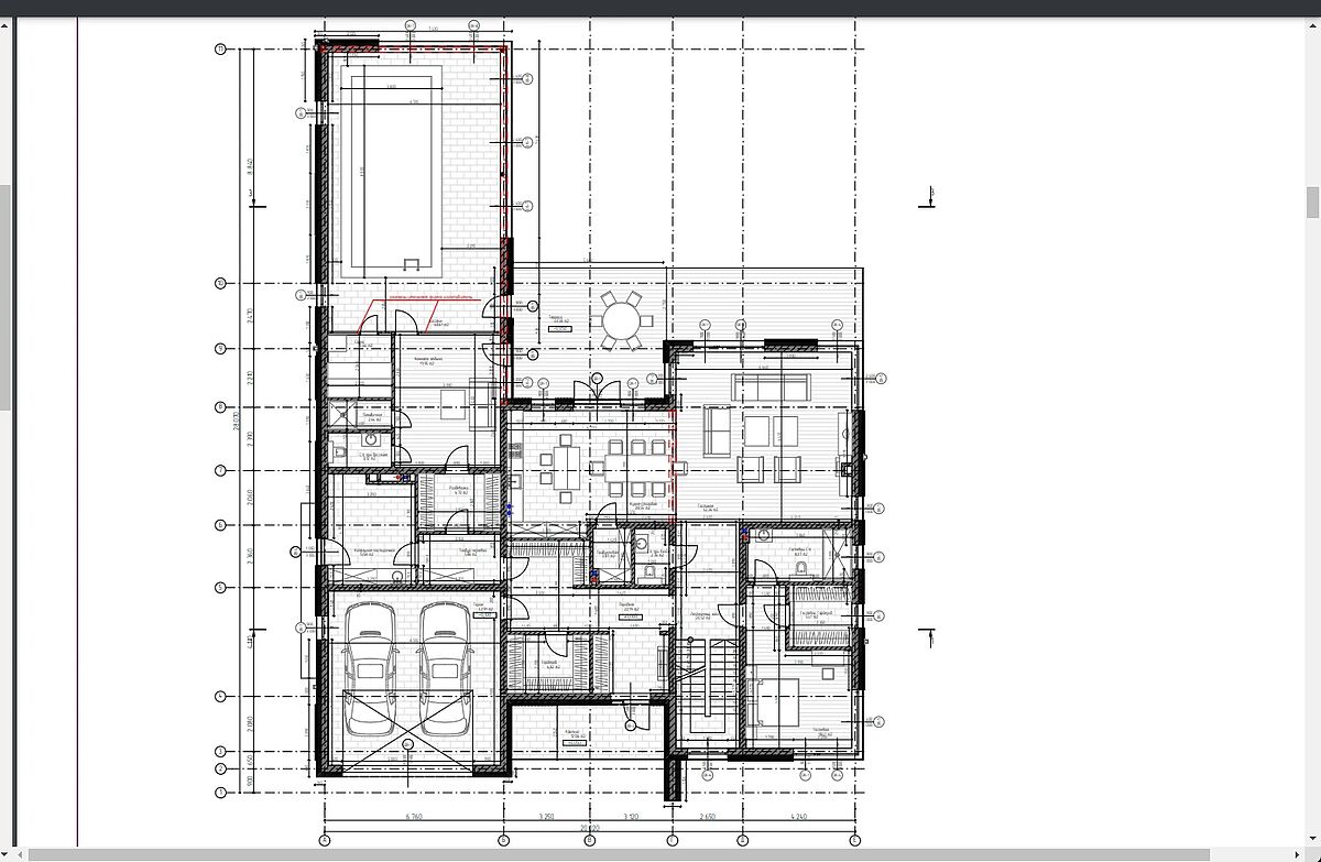
Особняк в стиле хайтек площадью 576 кв.м. из монолита-кирпича на участке 22 сотки.
На первом этаже расположены: гостевая спальня с собственным санузлом, кабинет, гостиная с камином, кухня-столовая, SPA зона с бассейном и технические помещения.
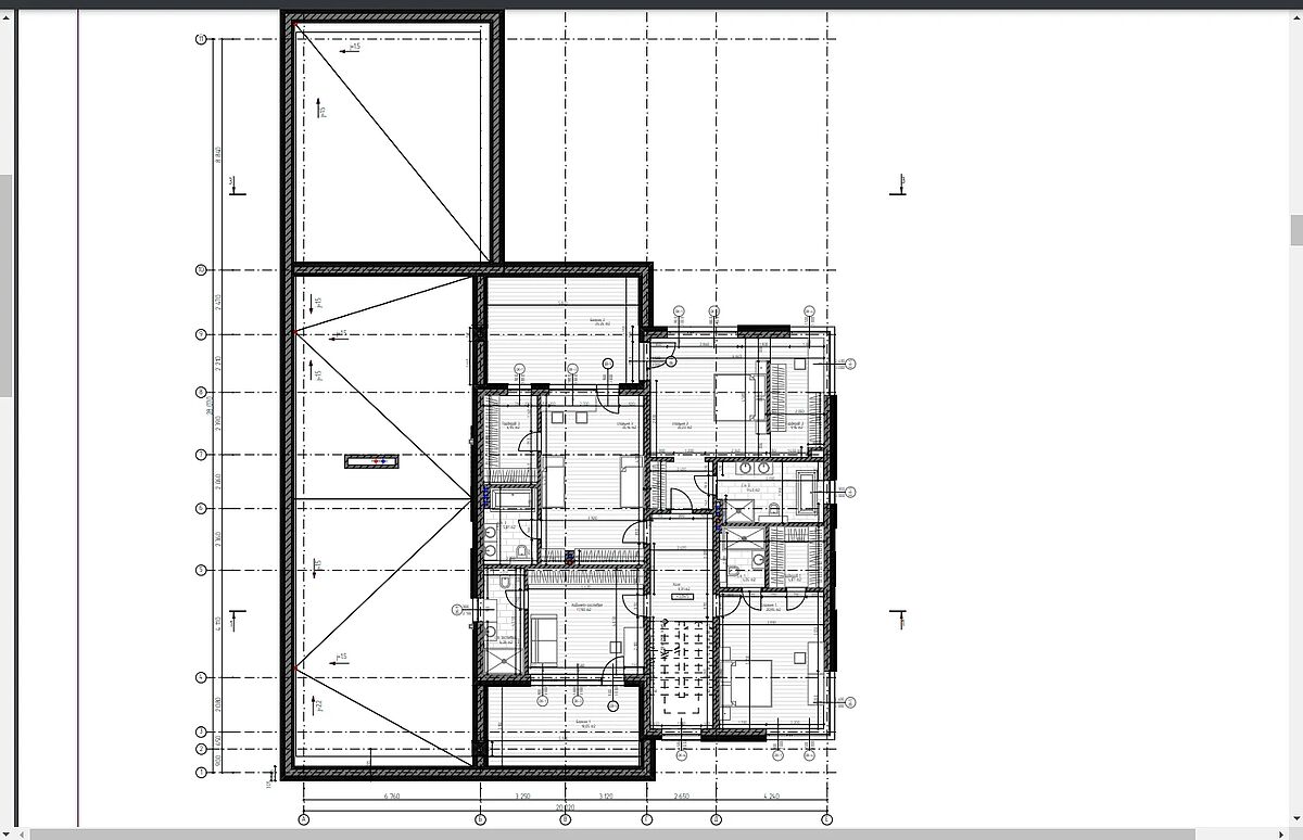
На втором этаже: четыре спальни с санузлами и гардеробными и открытая лаунж-зона.
Поселок Райт Хиллс (Wright Hills) расположился на 18 км Новой Риги в живописнейшем месте с панорамным видом на лес и реку Истра. Камерный поселок всего на пятьдесят домовладений. Уникальность поселка в его современной архитектуре, т.к. другие архитектурные стили запрещены.
Удобное расположение поселка позволяет быстро добраться до инфраструктуры Новой Риги, Ильинского и Рублевского шоссе.
Дом продается в формате "под отделку".
Делегируйте подбор или продажу экспертам вашего уровня
искусство загородной жизниПолучите персональную коллекцию от эксперта Villagio




Особняк в стиле хайтек площадью 576 кв.м. из монолита-кирпича на участке 22 сотки.
На первом этаже расположены: гостевая спальня с собственным санузлом, кабинет, гостиная с камином, кухня-столовая, SPA зона с бассейном и технические помещения.
На втором этаже: четыре спальни с санузлами и гардеробными и открытая лаунж-зона.
Поселок Райт Хиллс (Wright Hills) расположился на 18 км Новой Риги в живописнейшем месте с панорамным видом на лес и реку Истра. Камерный поселок всего на пятьдесят домовладений. Уникальность поселка в его современной архитектуре, т. к. другие архитектурные стили запрещены.
Удобное расположение поселка позволяет быстро добраться до инфраструктуры Новой Риги, Ильинского и Рублевского шоссе.
Дом продается в формате «под отделку».