Подпишитесь на новости Villagio
Мы ценим ваше время
Акция: при покупке дома с Villagio Realty вы получаете год сервиса - абсолютно бесплатно!
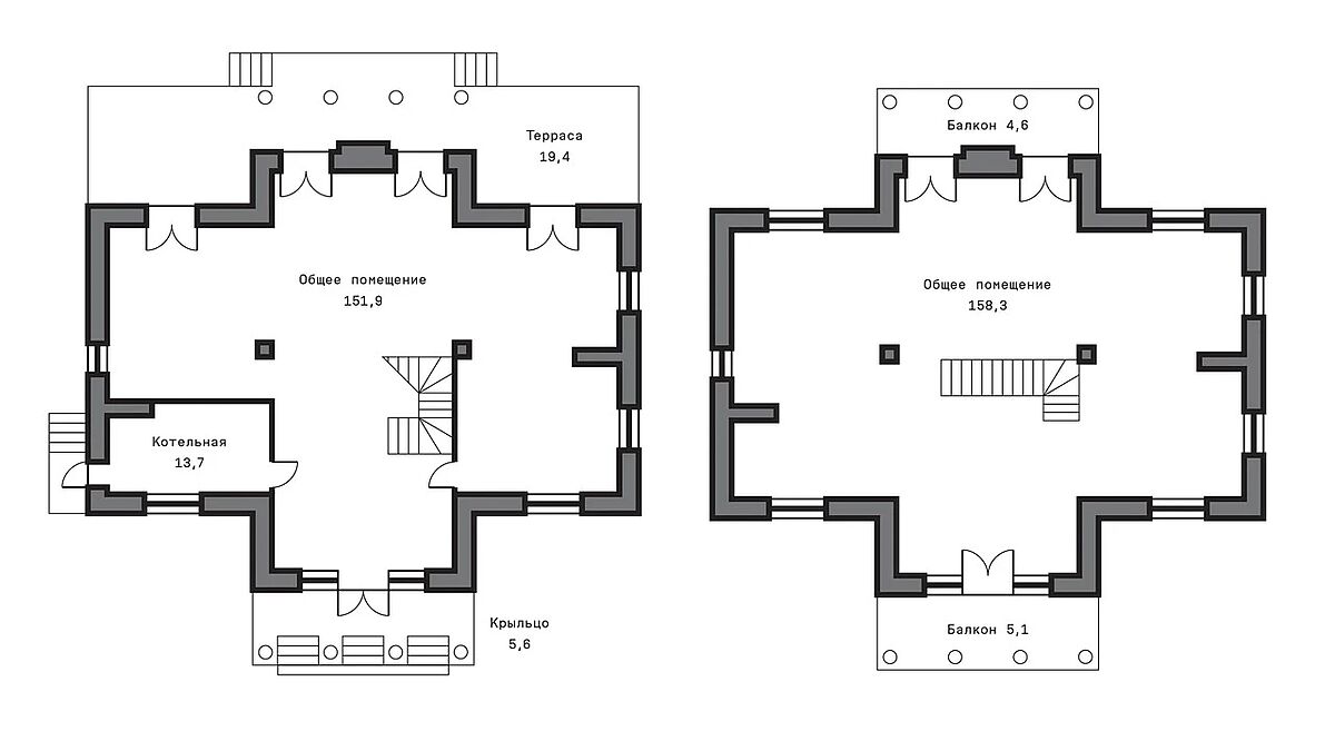
Двухэтажный дом из кирпича площадью 359,6 кв. метров построен по проекту «Классика» и сочетает строгие линии классической усадьбы с современной функциональной планировкой. Фасад с портиком и колоннадой добавляют особняку торжественности.
Согласно проекту, в доме расположены: холл, гостиная с выходом на просторную террасу, столовая, кухня, котельная, 4 спальни, каждая – с отдельным санузлом, 2 балкона. Продается под отделку.
По периметру участка в 14 соток высажены сосны, установлено ограждение, с фасадной стороны – кованые ворота с калиткой. Магистральный газ проходит по границе участка, с правом врезки; электричество – 10 кВт на участок; вода поступает на участок из артезианской скважины; также есть ливневая канализация и канализационный колодец. Особняк расположен на тихой тупиковой улице, недалеко от парковой зоны. Так же на участке есть беседка 50 кв.м, гараж 220 кв.м на 2 машины с цокольным этажом, с квартирой для персонала.
Renaissance Park — элитный коттеджный поселок Villagio Estate, всего в 19 км от МКАД по Новой Риге. Это ближайший к Москве проект компании и один из самых престижных загородных адресов. Архитектура вдохновлена эпохой Возрождения: величественные особняки, парадная колоннада на въезде, ухоженные бульвары и парки создают атмосферу европейской аристократии.
Главное украшение — Центральный парк площадью 5,5 га с живописным озером почти 1 га. Здесь есть песчаный пляж с шезлонгами, площадка для пляжного волейбола, спортивные зоны для кроссфита, детская площадка с верёвочными комплексами, скалодромом и игровыми кораблями. Жители гуляют по тенистым аллеям и выходят прямо в вековой сосновый лес через благоустроенные калитки. В поселке есть ресторан с панорамными витражами и стеклянным куполом. Рядом — элитные школы, детские сады, фитнес-клубы, торговые галереи и рестораны — всё для комфортной жизни.
Делегируйте подбор или продажу экспертам вашего уровня
искусство загородной жизниПолучите персональную коллекцию от эксперта Villagio




Акция: при покупке дома с Villagio Realty вы получаете год сервиса — абсолютно бесплатно!
Двухэтажный дом из кирпича площадью 359,6 кв. метров построен по проекту «Классика» и сочетает строгие линии классической усадьбы с современной функциональной планировкой. Фасад с портиком и колоннадой добавляют особняку торжественности.
Согласно проекту, в доме расположены: холл, гостиная с выходом на просторную террасу, столовая, кухня, котельная, 4 спальни, каждая — с отдельным санузлом, 2 балкона. Продается под отделку.
По периметру участка в 14 соток высажены сосны, установлено ограждение, с фасадной стороны — кованые ворота с калиткой. Магистральный газ проходит по границе участка, с правом врезки; электричество — 10 кВт на участок; вода поступает на участок из артезианской скважины; также есть ливневая канализация и канализационный колодец. Особняк расположен на тихой тупиковой улице, недалеко от парковой зоны. Так же на участке есть беседка 50 кв.м, гараж 220 кв.м на 2 машины с цокольным этажом, с квартирой для персонала.
Renaissance Park — элитный коттеджный поселок Villagio Estate, всего в 19 км от МКАД по Новой Риге. Это ближайший к Москве проект компании и один из самых престижных загородных адресов. Архитектура вдохновлена эпохой Возрождения: величественные особняки, парадная колоннада на въезде, ухоженные бульвары и парки создают атмосферу европейской аристократии.
Главное украшение — Центральный парк площадью 5,5 га с живописным озером почти 1 га. Здесь есть песчаный пляж с шезлонгами, площадка для пляжного волейбола, спортивные зоны для кроссфита, детская площадка с верёвочными комплексами, скалодромом и игровыми кораблями. Жители гуляют по тенистым аллеям и выходят прямо в вековой сосновый лес через благоустроенные калитки. В поселке есть ресторан с панорамными витражами и стеклянным куполом. Рядом — элитные школы, детские сады, фитнес-клубы, торговые галереи и рестораны — всё для комфортной жизни.