Подпишитесь на новости Villagio
Мы ценим ваше время
Просторный дом 487 м2 в классическом стиле, расположенный в тихой части коттеджного посёлка «Ренессанс Парк». Дом предлагается "под ключ", газифицирован и оснащен всеми необходимыми инженерными коммуникациями.
Дом новый, никто не жил. Вместе с домом на участке площадью 20,64 соток расположена шикарная дровяная баня с парилкой, кухней - гостиной и большой верандой для барберю зоны.
Второй свет и высокие потолки в доме дарят ощущение свободы и простора, а панорамные окна наполняют пространство естественным светом и создают ощущение единства с окружающей природой.
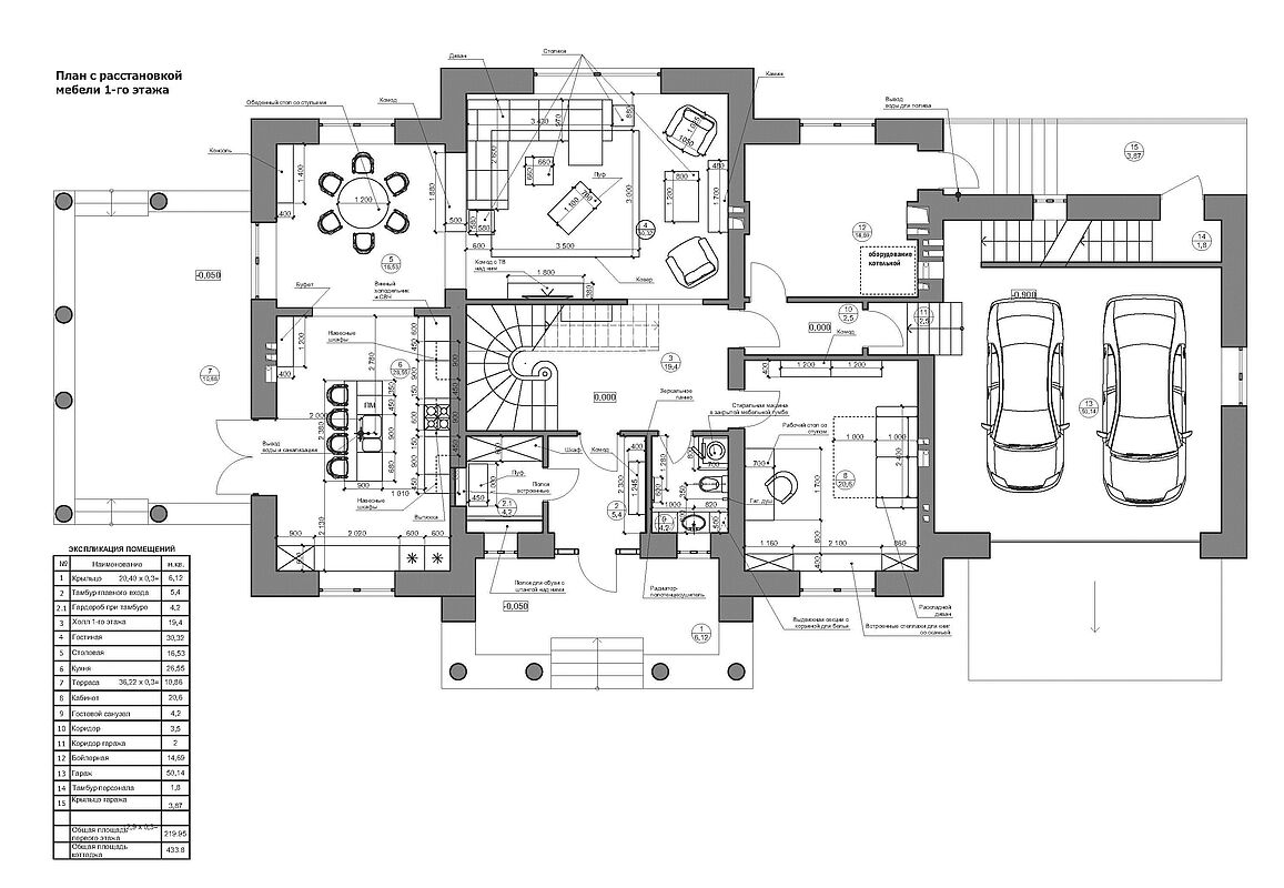
На первом этаже расположены: холл, гостиная со вторым светом и камином, столовая и кухня с выходом на терассу, гостевая спальня, санузел, бойлерная, гараж.
На втором этаже: мастер-спальня с видами на лес, вторая спальня, два санузла, три гардеробные, кабинет.
Цокольный этаж состоит из электрощитовой и двух свободных помещений, которые можно использовать по своему усмотрению. Дом также оснащен квартирой для персонала с цокольным этажом и отдельным входом.
Renaissance Park — элитный коттеджный поселок Villagio Estate, всего в 19 км от МКАД по Новой Риге. Это ближайший к Москве проект компании и один из самых престижных загородных адресов. Архитектура вдохновлена эпохой Возрождения: величественные особняки, парадная колоннада на въезде, ухоженные бульвары и парки создают атмосферу европейской аристократии.
Главное украшение — Центральный парк площадью 5,5 га с живописным озером почти 1 га. Здесь есть песчаный пляж с шезлонгами, площадка для пляжного волейбола, спортивные зоны для кроссфита, детская площадка с верёвочными комплексами, скалодромом и игровыми кораблями. Жители гуляют по тенистым аллеям и выходят прямо в вековой сосновый лес через благоустроенные калитки.
В поселке есть ресторан с панорамными витражами и стеклянным куполом. Рядом — элитные школы, детские сады, фитнес-клубы, торговые галереи и рестораны — всё для комфортной жизни.
Делегируйте подбор или продажу экспертам вашего уровня
искусство загородной жизниПолучите персональную коллекцию от эксперта Villagio




Просторный дом 487 м2 в классическом стиле, расположенный в тихой части коттеджного посёлка «Ренессанс Парк». Дом предлагается «под ключ», газифицирован и оснащен всеми необходимыми инженерными коммуникациями.
Дом новый, никто не жил. Вместе с домом на участке площадью 20,64 соток расположена шикарная дровяная баня с парилкой, кухней — гостиной и большой верандой для барберю зоны.
Второй свет и высокие потолки в доме дарят ощущение свободы и простора, а панорамные окна наполняют пространство естественным светом и создают ощущение единства с окружающей природой.
На первом этаже расположены: холл, гостиная со вторым светом и камином, столовая и кухня с выходом на терассу, гостевая спальня, санузел, бойлерная, гараж.
На втором этаже: мастер-спальня с видами на лес, вторая спальня, два санузла, три гардеробные, кабинет.
Цокольный этаж состоит из электрощитовой и двух свободных помещений, которые можно использовать по своему усмотрению. Дом также оснащен квартирой для персонала с цокольным этажом и отдельным входом.
Renaissance Park — элитный коттеджный поселок Villagio Estate, всего в 19 км от МКАД по Новой Риге. Это ближайший к Москве проект компании и один из самых престижных загородных адресов. Архитектура вдохновлена эпохой Возрождения: величественные особняки, парадная колоннада на въезде, ухоженные бульвары и парки создают атмосферу европейской аристократии.
Главное украшение — Центральный парк площадью 5,5 га с живописным озером почти 1 га. Здесь есть песчаный пляж с шезлонгами, площадка для пляжного волейбола, спортивные зоны для кроссфита, детская площадка с верёвочными комплексами, скалодромом и игровыми кораблями. Жители гуляют по тенистым аллеям и выходят прямо в вековой сосновый лес через благоустроенные калитки.
В поселке есть ресторан с панорамными витражами и стеклянным куполом. Рядом — элитные школы, детские сады, фитнес-клубы, торговые галереи и рестораны — всё для комфортной жизни.