Подпишитесь на новости Villagio
Мы ценим ваше время
Двухэтажный дом на большом участке 30 соток. Новорижское шоссе, Резиденция Бенилюкс.
Площадь дома 630,5 кв.м. Год постройки - 2006, кап.ремонт - 2013 г., в 2021 году была актуализирована и изменена концепция интерьеров дома , произведены фасадные работы. При отделке дома использовались качественные дорогостоящие материалы. Полы и стены в с/у - натуральный мрамор, пол 1-го этажа - половая доска, орех, пол 2-го этажа - половая доска из дуба. Встроенная мебель в гардеробных, кухне, кабинете, двери - исключительно натуральное дерево. Мебель ручной работы. Дом полностью оборудован для комфортного проживания.
Планировка основного дома:
1-й этаж: прихожая с большой гардеробной, санузел, прачечная, бойлерная, кухня-столовая, гостиная, кабинет, просторная игровая комната.
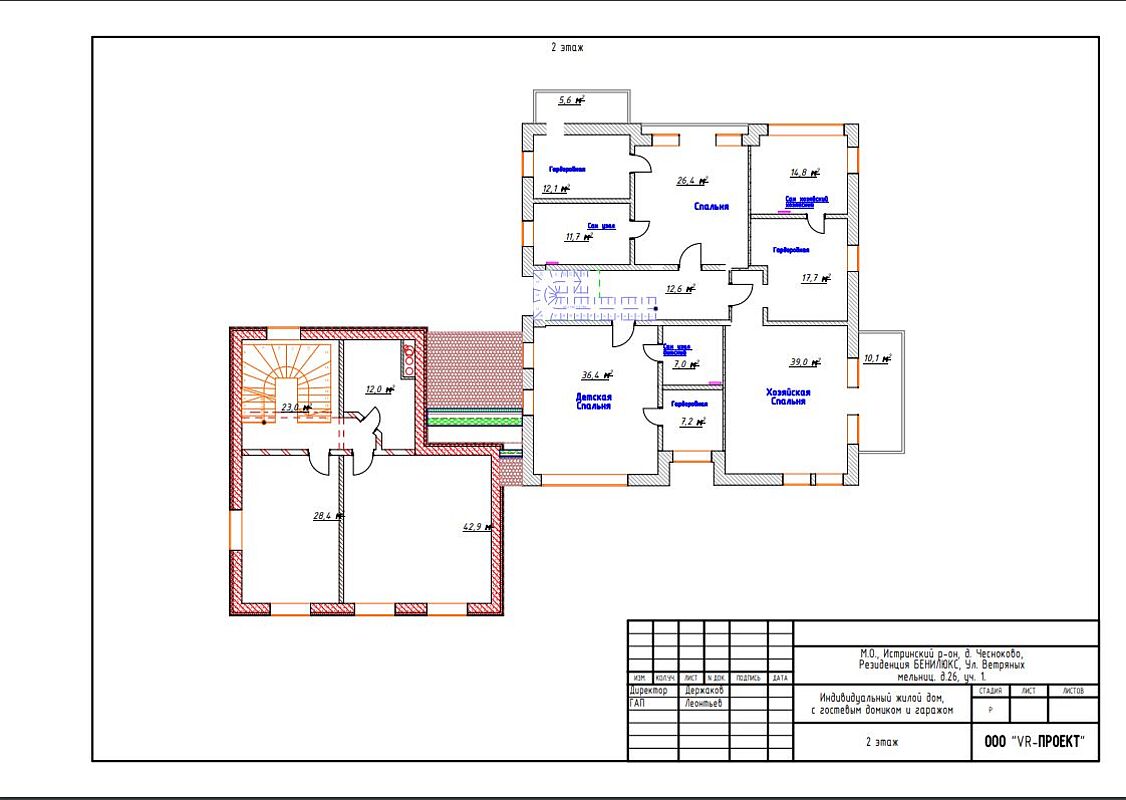
2-й этаж: 3 большие спальни с ванными комнатами и гардеробными. Из каждой комнаты выход на балкон. Имеются еще две спальни с одной ванной комнатой и гардеробной. В доме гараж на три машины.
Также имеется парковка на 3-4 машины под навесом.
На просторном участке выполнен ландшафтный дизайн с прудом, водопадом. Обустроена зона барбекю.
Помимо основного дома имеется дом для персонала площадью 180 м.кв. на 2 квартиры. Хаммам, финская баня.
Делегируйте подбор или продажу экспертам вашего уровня
искусство загородной жизниПолучите персональную коллекцию от эксперта Villagio




Двухэтажный дом на большом участке 30 соток. Новорижское шоссе, Резиденция Бенилюкс.
Площадь дома 630,5 кв.м. Год постройки — 2006, кап.ремонт — 2013 г., в 2021 году была актуализирована и изменена концепция интерьеров дома, произведены фасадные работы. При отделке дома использовались качественные дорогостоящие материалы. Полы и стены в с/у — натуральный мрамор, пол 1-го этажа — половая доска, орех, пол 2-го этажа — половая доска из дуба. Встроенная мебель в гардеробных, кухне, кабинете, двери — исключительно натуральное дерево. Мебель ручной работы. Дом полностью оборудован для комфортного проживания.
Планировка основного дома:
1-й этаж: прихожая с большой гардеробной, санузел, прачечная, бойлерная, кухня-столовая, гостиная, кабинет, просторная игровая комната.
2-й этаж: 3 большие спальни с ванными комнатами и гардеробными. Из каждой комнаты выход на балкон. Имеются еще две спальни с одной ванной комнатой и гардеробной. В доме гараж на три машины.
Также имеется парковка на 3–4 машины под навесом.
На просторном участке выполнен ландшафтный дизайн с прудом, водопадом. Обустроена зона барбекю.
Помимо основного дома имеется дом для персонала площадью 180 м. кв. на 2 квартиры. Хаммам, финская баня.