Подпишитесь на новости Villagio
Мы ценим ваше время
Акция: при покупке дома с Villagio Realty вы получаете год сервиса - абсолютно бесплатно! Мы позаботимся обо всём, чтобы вы просто наслаждались жизнью в своём доме.
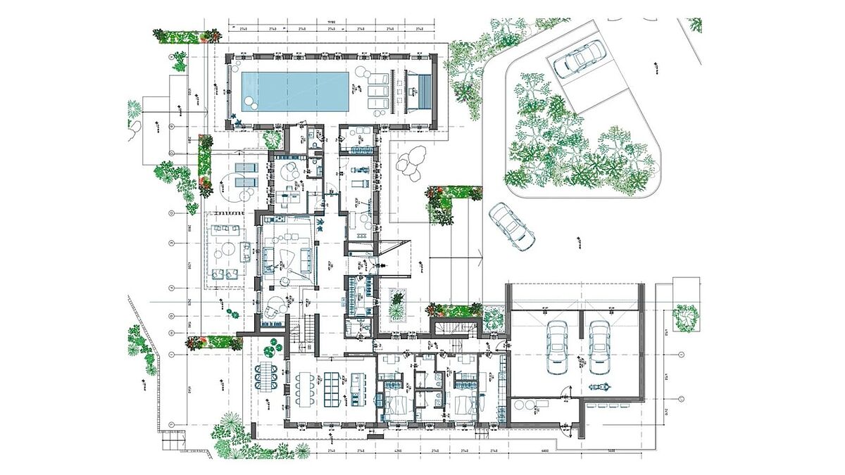
Двухэтажная резиденция в современном стиле площадью 1250 м2 расположена на просторном участке 90 соток на границе с лесом в посёлке "Ренессанс Парк".
Капитальный дом возведен по архитектурному проекту бюро La Project и состоит из нескольких простых объемов. За счет панорамного остекления и лаконичного фасада в натуральных цветах, дом вписывается в природное окружение.
Дизайнерская отделка выполнена в благородных спокойных тонах, подчёркивая гармонию и комфорт. Для реализации проекта использованы эксклюзивные материалы премиум-класса, создающие неповторимую атмосферу роскоши и вкуса. Интерьер дополнен мебелью и техникой от ведущих производителей. Каждое решение продуманно до мелочей, обеспечивая максимальный уровень удобства и эстетического удовольствия жильцов.
Поэтажное описание.
1-й этаж: просторная гостиная с камином, кухня-столовая, вторая гостиная, гардеробная, санузел, кабинет с санузлом и выходом на террасу, СПА-зона с бассейном, сауной, купелью и выходом на террасу, тренажерный зал, санузел, 2 квартиры для персонала, постирочная, котельная, гараж для 4 автомобилей.
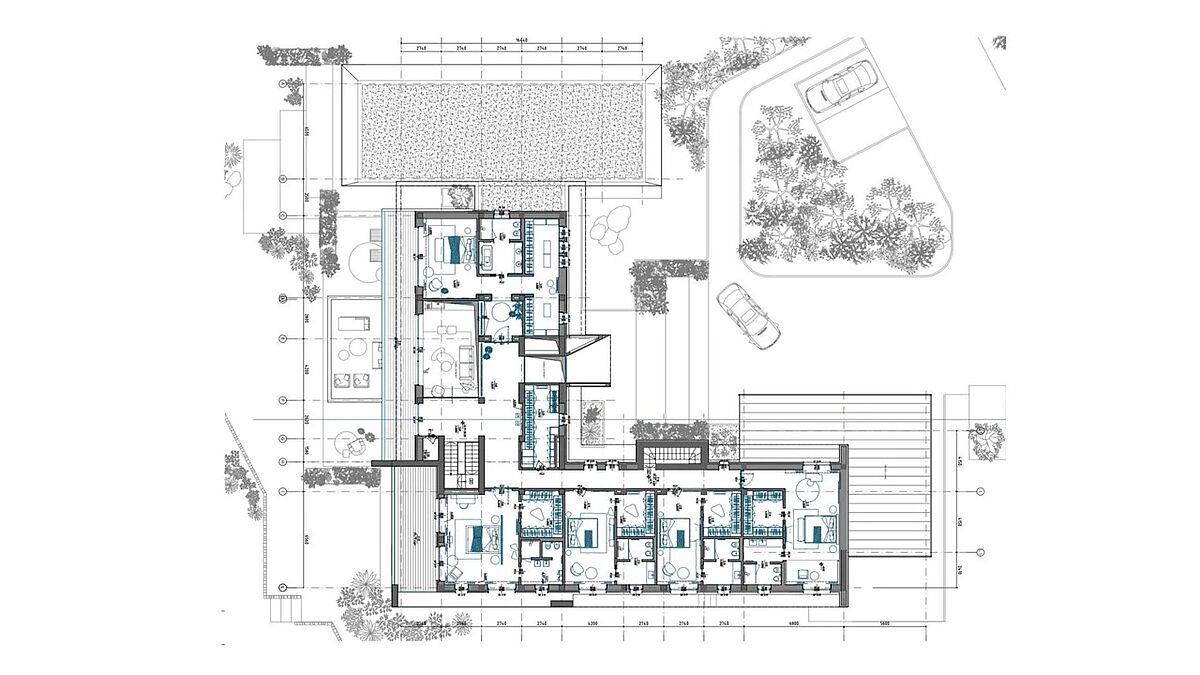
2-й этаж: 5 уютных спален с санузлами и гардеробными, 2 гардеробные, гостиная, выход на 2 террасы.
На участке 90 соток выполнены ландшафтные работы. Жители дома и их гости могут отдыхать в патио с видом на сад.
Renaissance Park — элитный коттеджный поселок Villagio Estate, всего в 19 км от МКАД по Новой Риге. Это ближайший к Москве проект компании и один из самых престижных загородных адресов. Архитектура вдохновлена эпохой Возрождения: величественные особняки, парадная колоннада на въезде, ухоженные бульвары и парки создают атмосферу европейской аристократии.
Главное украшение — Центральный парк площадью 5,5 га с живописным озером почти 1 га. Здесь есть песчаный пляж с шезлонгами, площадка для пляжного волейбола, спортивные зоны для кроссфита, детская площадка с верёвочными комплексами, скалодромом и игровыми кораблями. Жители гуляют по тенистым аллеям и выходят прямо в вековой сосновый лес через благоустроенные калитки.
В поселке есть ресторан с панорамными витражами и стеклянным куполом. Рядом — элитные школы, детские сады, фитнес-клубы, торговые галереи и рестораны — всё для комфортной жизни.
В рамках клубной системы Villagio Estate для владельцев домов «Ренессанс Парка» доступны: 8 парков; детские сады и клубы, рестораны, кафе, продуктовые магазины, бытовые сервисы, медицинский центр, химчистка; 27 детских площадок; 22 спортивные площадки.
Делегируйте подбор или продажу экспертам вашего уровня
искусство загородной жизниПолучите персональную коллекцию от эксперта Villagio




Акция: при покупке дома с Villagio Realty вы получаете год сервиса — абсолютно бесплатно! Мы позаботимся обо всём, чтобы вы просто наслаждались жизнью в своём доме.
Двухэтажная резиденция в современном стиле площадью 1250 м2 расположена на просторном участке 90 соток на границе с лесом в посёлке «Ренессанс Парк».
Капитальный дом возведен по архитектурному проекту бюро La Project и состоит из нескольких простых объемов. За счет панорамного остекления и лаконичного фасада в натуральных цветах, дом вписывается в природное окружение.
Дизайнерская отделка выполнена в благородных спокойных тонах, подчёркивая гармонию и комфорт. Для реализации проекта использованы эксклюзивные материалы премиум-класса, создающие неповторимую атмосферу роскоши и вкуса. Интерьер дополнен мебелью и техникой от ведущих производителей. Каждое решение продуманно до мелочей, обеспечивая максимальный уровень удобства и эстетического удовольствия жильцов.
Поэтажное описание.
1-й этаж: просторная гостиная с камином, кухня-столовая, вторая гостиная, гардеробная, санузел, кабинет с санузлом и выходом на террасу, СПА-зона с бассейном, сауной, купелью и выходом на террасу, тренажерный зал, санузел, 2 квартиры для персонала, постирочная, котельная, гараж для 4 автомобилей.
2-й этаж: 5 уютных спален с санузлами и гардеробными, 2 гардеробные, гостиная, выход на 2 террасы.
На участке 90 соток выполнены ландшафтные работы. Жители дома и их гости могут отдыхать в патио с видом на сад.
Renaissance Park — элитный коттеджный поселок Villagio Estate, всего в 19 км от МКАД по Новой Риге. Это ближайший к Москве проект компании и один из самых престижных загородных адресов. Архитектура вдохновлена эпохой Возрождения: величественные особняки, парадная колоннада на въезде, ухоженные бульвары и парки создают атмосферу европейской аристократии.
Главное украшение — Центральный парк площадью 5,5 га с живописным озером почти 1 га. Здесь есть песчаный пляж с шезлонгами, площадка для пляжного волейбола, спортивные зоны для кроссфита, детская площадка с верёвочными комплексами, скалодромом и игровыми кораблями. Жители гуляют по тенистым аллеям и выходят прямо в вековой сосновый лес через благоустроенные калитки.
В поселке есть ресторан с панорамными витражами и стеклянным куполом. Рядом — элитные школы, детские сады, фитнес-клубы, торговые галереи и рестораны — всё для комфортной жизни.
В рамках клубной системы Villagio Estate для владельцев домов «Ренессанс Парка» доступны: 8 парков; детские сады и клубы, рестораны, кафе, продуктовые магазины, бытовые сервисы, медицинский центр, химчистка; 27 детских площадок; 22 спортивные площадки.