Подпишитесь на новости Villagio
Мы ценим ваше время
Современный дом 518 м² в КП «Ильинский ландшафт», 12 км от МКАД.
Премиальный современный дом в одном из самых редких и востребованных направлений — Ильинское шоссе.
Идеальное сочетание архитектуры, пространства и локации.
Формат White Box — дом полностью готов к реализации индивидуального дизайн-проекта. Завершается монтаж фасадных систем.
Ключевые преимущества:
- Индивидуальный архитектурный проект;
- Монолитный каркас — возможность сложной многоуровневой архитектуры;
- Разноуровневые крыши и нестандартная высота потолков;
- Панорамные джамбо-окна до 3 м, тёплый алюминий;
- Портальные раздвижные системы;
- Фасады из итальянского керамогранита;
- Стеклянные ограждения;
- Премиальные инженерные решения.
О доме:
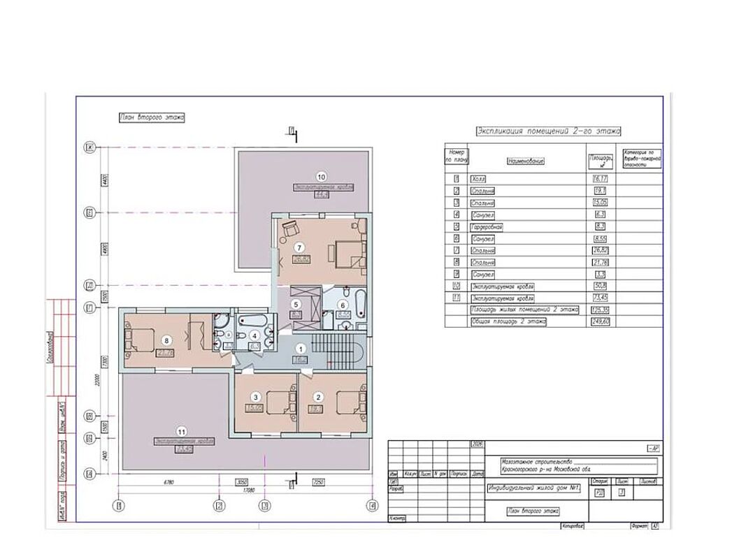
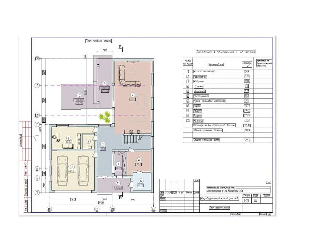
- Общая площадь: 518 м²
- Этажность: 2 этажа
- Гараж: на 2 автомобиля
Планировка:
1 этаж: кухня-гостиная, кабинет/спальня, гардеробная, котельная, прачечная, санузел, гараж, терраса, лаундж-зона с костровой зоной.
2 этаж: 2 мастер-спальни с санузлами, гардеробными и выходами на террасу, 2 спальни, общий санузел.
Высота потолков: 1 этаж — 3,7 м, 2 этаж — 3,5 м.
Участок:
- Площадь: 13,5 соток;
- Профессиональный ландшафтный дизайн;
- Более 140 высаженных деревьев;
- Дренаж по периметру дома;
- Брусчатка и благоустройство территории.
Строительные характеристики:
- Фундамент — монолитная ж/б плита;
- Внешние стены — монолит + Porotherm 38;
- Внутренние стены — полнотелый кирпич;
- Перекрытия и лестница — монолит;
- Кровля — плоская, ПВХ-мембрана;
- Фасад — итальянский керамогранит;
- Окна — тёплый алюминий, портальные системы.
Дополнительно:
- Подогрев крыльца и входной группы (автоматика по осадкам);
- Архитектурная подсветка кровли;
- Подсветка ступеней.
Коммуникации:
- Вода — артезианская скважина 104 м.;
- Канализация — центральная
- Электричество — 30 кВт (возможность зарядки электромобиля);
- Газ — заведен, котёл установлен и запущен;
- Интернет — высокоскоростной (Акадо).
О посёлке:
КП «Ильинский ландшафт» — камерный посёлок на 30 домов, закрытая территория, круглосуточная охрана и видеонаблюдение. Аллеи, зелёные зоны, места отдыха. Экологически чистый район.
Инфраструктура:
- Школы, детские сады, магазины, фитнес-клубы — рядом;
- Инфраструктура Рублёвки — 10 минут;
- Остановка общественного транспорта — в шаговой доступности;
- В перспективе — метро «Ильинская»;
- Удобный выезд на Рублёво-Успенское, Ильинское и Новорижское шоссе.
Юридическая информация: дом поставлен на кадастровый учёт. Без обременений. Полный пакет документов, быстрый выход на сделку.
Делегируйте подбор или продажу экспертам вашего уровня
искусство загородной жизниПолучите персональную коллекцию от эксперта Villagio




Современный дом 518 м² в КП «Ильинский ландшафт», 12 км от МКАД.
Премиальный современный дом в одном из самых редких и востребованных направлений — Ильинское шоссе.
Идеальное сочетание архитектуры, пространства и локации.
Формат White Box — дом полностью готов к реализации индивидуального дизайн-проекта. Завершается монтаж фасадных систем.
Ключевые преимущества:
- Индивидуальный архитектурный проект;
- Монолитный каркас — возможность сложной многоуровневой архитектуры;
- Разноуровневые крыши и нестандартная высота потолков;
- Панорамные джамбо-окна до 3 м, тёплый алюминий;
- Портальные раздвижные системы;
- Фасады из итальянского керамогранита;
- Стеклянные ограждения;
- Премиальные инженерные решения.
О доме:
- Общая площадь: 518 м²
- Этажность: 2 этажа
- Гараж: на 2 автомобиля
Планировка:
1 этаж: кухня-гостиная, кабинет/спальня, гардеробная, котельная, прачечная, санузел, гараж, терраса, лаундж-зона с костровой зоной.
2 этаж: 2 мастер-спальни с санузлами, гардеробными и выходами на террасу, 2 спальни, общий санузел.
Высота потолков: 1 этаж — 3,7 м, 2 этаж — 3,5 м.
Участок:
- Площадь: 13,5 соток;
- Профессиональный ландшафтный дизайн;
- Более 140 высаженных деревьев;
- Дренаж по периметру дома;
- Брусчатка и благоустройство территории.
Строительные характеристики:
- Фундамент — монолитная ж/б плита;
- Внешние стены — монолит + Porotherm 38;
- Внутренние стены — полнотелый кирпич;
- Перекрытия и лестница — монолит;
- Кровля — плоская, ПВХ-мембрана;
- Фасад — итальянский керамогранит;
- Окна — тёплый алюминий, портальные системы.
Дополнительно:
- Подогрев крыльца и входной группы (автоматика по осадкам);
- Архитектурная подсветка кровли;
- Подсветка ступеней.
Коммуникации:
- Вода — артезианская скважина 104 м.;
- Канализация — центральная
- Электричество — 30 кВт (возможность зарядки электромобиля);
- Газ — заведен, котёл установлен и запущен;
- Интернет — высокоскоростной (Акадо).
О посёлке:
КП «Ильинский ландшафт» — камерный посёлок на 30 домов, закрытая территория, круглосуточная охрана и видеонаблюдение. Аллеи, зелёные зоны, места отдыха. Экологически чистый район.
Инфраструктура:
- Школы, детские сады, магазины, фитнес-клубы — рядом;
- Инфраструктура Рублёвки — 10 минут;
- Остановка общественного транспорта — в шаговой доступности;
- В перспективе — метро «Ильинская»;
- Удобный выезд на Рублёво-Успенское, Ильинское и Новорижское шоссе.
Юридическая информация: дом поставлен на кадастровый учёт. Без обременений. Полный пакет документов, быстрый выход на сделку.