Подпишитесь на новости Villagio
Мы ценим ваше время
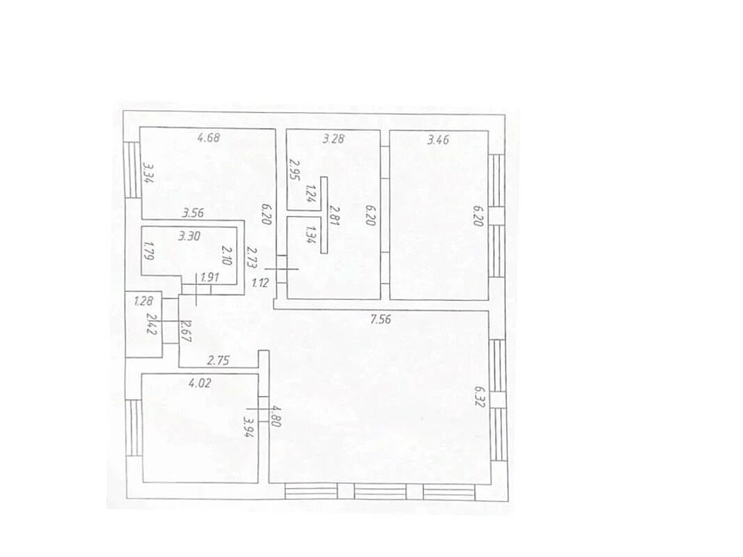
Современный одноэтажный дом в стиле минимализм, расположенный на участке 6 соток. Дом общей площадью 170 кв.м оснащен просторной террасой размером 80 кв.м, идеально подходящей для отдыха и развлечений на свежем воздухе. Отделка дома выполнена материалами высокого качества, подчеркивая современный и элегантный стиль жилища.
Дом построен на прочной монолитной плите и выполнен из газобетонных блоков, обеспечивая комфорт и энергоэффективность круглый год. Уникальное панорамное остекление открывает потрясающие виды на окружающую природу, а плоская крыша с системой обогрева добавляет удобства и эстетики зданию. Полы покрыты керамогранитом, оснащены системой теплого пола, установлены качественные радиаторы Arbonia для оптимального отопления помещений.
Участок выравнен и облагорожен. Расположение дома выгодно отличается своей близостью ко многим важным объектам инфраструктуры: всего лишь 15 минут езды на автомобиле отделяют вас от Москвы-Сити, Барвихи Лакшери Вилладж, парков Раздолье и Малевича, гимназии имени Примакова, магазинов, ресторанов, медицинских центров, школ и детских садов в Жуковке.
Делегируйте подбор или продажу экспертам вашего уровня
искусство загородной жизниПолучите персональную коллекцию от эксперта Villagio




Современный одноэтажный дом в стиле минимализм, расположенный на участке 6 соток. Дом общей площадью 170 кв.м оснащен просторной террасой размером 80 кв.м, идеально подходящей для отдыха и развлечений на свежем воздухе. Отделка дома выполнена материалами высокого качества, подчеркивая современный и элегантный стиль жилища.
Дом построен на прочной монолитной плите и выполнен из газобетонных блоков, обеспечивая комфорт и энергоэффективность круглый год. Уникальное панорамное остекление открывает потрясающие виды на окружающую природу, а плоская крыша с системой обогрева добавляет удобства и эстетики зданию. Полы покрыты керамогранитом, оснащены системой теплого пола, установлены качественные радиаторы Arbonia для оптимального отопления помещений.
Участок выравнен и облагорожен. Расположение дома выгодно отличается своей близостью ко многим важным объектам инфраструктуры: всего лишь 15 минут езды на автомобиле отделяют вас от Москвы-Сити, Барвихи Лакшери Вилладж, парков Раздолье и Малевича, гимназии имени Примакова, магазинов, ресторанов, медицинских центров, школ и детских садов в Жуковке.