Подпишитесь на новости Villagio
Мы ценим ваше время
Современный новый дом в поселке Маслово Парк.
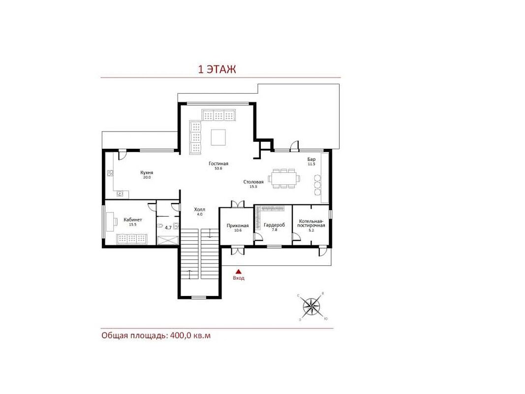
Представляем уютный и просторный жилой дом площадью 400 м², расположенный на ухоженном участке площадью 23 сотки. Дом полностью отделан и готов к комфортной жизни. Коммуникации центральные.
На первом этаже расположены: холл, просторная гостиная с большим открытым камином, гостевая спальня, профессионально оборудованная кухня с современной техникой, столовая с барной стойкой, выход на просторную террасу с лаунж-зоной, где приятно расслабиться и провести встречу с близкими. Также на этаже есть санузел, постирочная, котельная и комфортабельная спальня-кабинет для работы или отдыха. Кухня имеет выход на малую террасу и зону барбекю — идеальное место для отдыха на свежем воздухе.
На втором этаже расположены холл, четыре спальни с индивидуальными санузлами и просторными гардеробными, а также терраса с захватывающим видом на тихий зелёный участок. Со второго этажа есть возможность выхода на третий этаж и эксплуатируемую крышу, что позволяет расширить рекреационные зоны и наслаждаться панорамными видами.
Этот дом — идеальное сочетание комфорта, функциональности и эстетики, созданное для уютной жизни и приятных встреч в кругу семьи и друзей.
Делегируйте подбор или продажу экспертам вашего уровня
искусство загородной жизниПолучите персональную коллекцию от эксперта Villagio




Современный новый дом в поселке Маслово Парк.
Представляем уютный и просторный жилой дом площадью 400 м², расположенный на ухоженном участке площадью 23 сотки. Дом полностью отделан и готов к комфортной жизни. Коммуникации центральные.
На первом этаже расположены: холл, просторная гостиная с большим открытым камином, гостевая спальня, профессионально оборудованная кухня с современной техникой, столовая с барной стойкой, выход на просторную террасу с лаунж-зоной, где приятно расслабиться и провести встречу с близкими. Также на этаже есть санузел, постирочная, котельная и комфортабельная спальня-кабинет для работы или отдыха. Кухня имеет выход на малую террасу и зону барбекю — идеальное место для отдыха на свежем воздухе.
На втором этаже расположены холл, четыре спальни с индивидуальными санузлами и просторными гардеробными, а также терраса с захватывающим видом на тихий зелёный участок. Со второго этажа есть возможность выхода на третий этаж и эксплуатируемую крышу, что позволяет расширить рекреационные зоны и наслаждаться панорамными видами.
Этот дом — идеальное сочетание комфорта, функциональности и эстетики, созданное для уютной жизни и приятных встреч в кругу семьи и друзей.