Подпишитесь на новости Villagio
Мы ценим ваше время
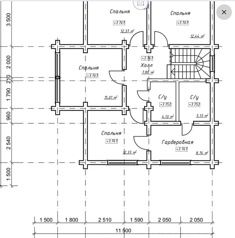
На участке 15 соток с вековыми соснами удачно расположился дом с пятью спальнями, небольшая баня и домик для персонала с подсобным помещением и навесом для двух автомобилей.
По конструктиву основного дома: монолитная плита, бревно 26-го диаметра (финский паз), кровля из цементно-песчаной черепицы, окна из лиственницы, потолки на первом этаже - 3,4 м, на втором - до 4,5 метров, полы - керамогранит. Фасадное освещение.
На участке сохранены все вековые сосны, выполнен дренаж, ливневая канализация. В тени деревьев расположилась небольшая банька с террасой, очищенная солнечная Полянка, а при въезде на участок стоит дом для персонала с хозблоком и навесом для двух автомобилей. За участком земля лесфонда – можно увеличить участок, взяв в аренду у государства.
Камерный коттеджный посёлок "Ласковый Май" находится внутри ЦКАД, между Новорижским, Волоколамским, Пятницким, Ленинградским шоссе. Лёгкая доступность: до Истры 15 минут, Зеленограда 25 минут, до Москвы 45 минут.
КП расположился на 5 на земли и имеют охрану 24/7, все центральные коммуникации. Всего 16 домовладений и статусное соседство. Также есть детская и спортивная площадки, горка и тёплый спортзал. Прекрасное место для отдыха и единения с природой в комфортных условиях.
Делегируйте подбор или продажу экспертам вашего уровня
искусство загородной жизниПолучите персональную коллекцию от эксперта Villagio




На участке 15 соток с вековыми соснами удачно расположился дом с пятью спальнями, небольшая баня и домик для персонала с подсобным помещением и навесом для двух автомобилей.
По конструктиву основного дома: монолитная плита, бревно 26-го диаметра (финский паз), кровля из цементно-песчаной черепицы, окна из лиственницы, потолки на первом этаже — 3,4 м, на втором — до 4,5 метров, полы — керамогранит. Фасадное освещение.
На участке сохранены все вековые сосны, выполнен дренаж, ливневая канализация. В тени деревьев расположилась небольшая банька с террасой, очищенная солнечная Полянка, а при въезде на участок стоит дом для персонала с хозблоком и навесом для двух автомобилей. За участком земля лесфонда — можно увеличить участок, взяв в аренду у государства.
Камерный коттеджный посёлок «Ласковый Май» находится внутри ЦКАД, между Новорижским, Волоколамским, Пятницким, Ленинградским шоссе. Лёгкая доступность: до Истры 15 минут, Зеленограда 25 минут, до Москвы 45 минут.
КП расположился на 5 на земли и имеют охрану 24/7, все центральные коммуникации. Всего 16 домовладений и статусное соседство. Также есть детская и спортивная площадки, горка и тёплый спортзал. Прекрасное место для отдыха и единения с природой в комфортных условиях.