Подпишитесь на новости Villagio
Мы ценим ваше время
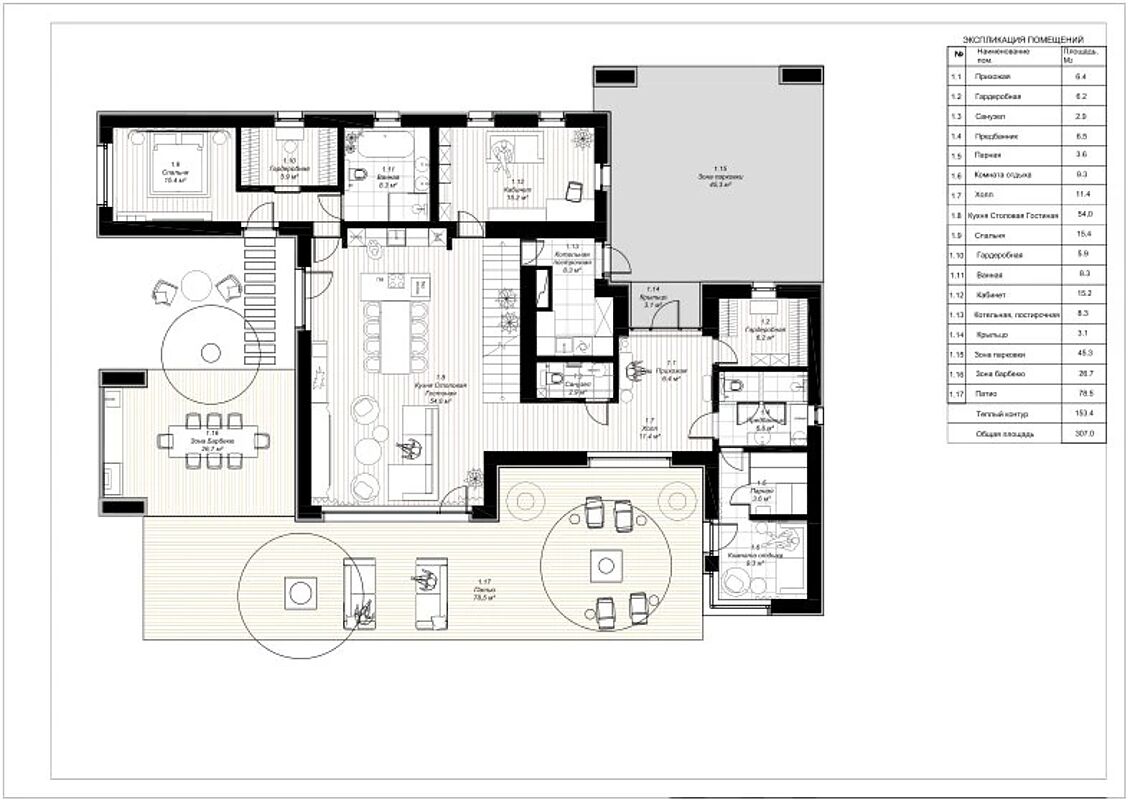
Красивый большой дом 462 м2, продуманный до мелочей как внутри, так и снаружи. Располагается в окружении леса, на участке 10 соток.
Ключевые особенности:
Архитектура: плоская кровля, фасад из эксклюзивного ригельного кирпича с 3D-кладкой.
Простор и свет: большая кухня-гостиная с двойным светом, панорамные алюминиевые окна (более 100 м²).
Комфорт: 4 спальни (любая может быть мастер-спальней), кабинет, СПА-зона с парной.
Дизайн и отделка: полная дизайнерская отделка, «парящая» лестница, полы с подогревом, умные потолки.
Технологии: система «умный дом» (голосовое управление), приточно-вытяжная вентиляция с кондиционированием, антиобледенительные системы.
Уникальная деталь: 2 живых дуба, интегрированных в террасу.
Коммуникации: Все центральные (газ, вода, электричество).
Планировка:
1 этаж - общественная и гостевая зоны: большая кухня-столовая-гостиная, объединенная с террасой. Изолированный кабинет. Мастер-спальня с собственной гардеробной и санузлом. Отдельный СПА-блок: парная, комната отдыха, санузел. Прихожая; гардеробная; Котельная. Парковка на 4 машиноместа. 4 террасы, включая патио с живыми дубами.
2 этаж - приватная спальная зона: Три изолированные спальни, каждая с индивидуальной гардеробной и санузлом. Любая из спален может быть обустроена как вторая мастер-спальня. Две просторные террасы для отдыха.
Поселок «Московский Писатель» обжитой, с собственной инфраструктурой, в состав которой входит гастроном, больница, школа, детские и спортивные площадки. Более развернутая социально значимая инфраструктура расположена в ближайших поселках Внуково и Абабурово. На закрытой охраняемой территории посёлка всегда царят чистота и порядок, здесь можно получить полноценный отдых и по-настоящему насладиться плавным течением жизни, позабыв обо всех заботах.
Срок сдачи дома октябрь 2026 года
Делегируйте подбор или продажу экспертам вашего уровня
искусство загородной жизниПолучите персональную коллекцию от эксперта Villagio




Красивый большой дом 462 м2, продуманный до мелочей как внутри, так и снаружи. Располагается в окружении леса, на участке 10 соток.
Ключевые особенности:
Архитектура: плоская кровля, фасад из эксклюзивного ригельного кирпича с 3D-кладкой.
Простор и свет: большая кухня-гостиная с двойным светом, панорамные алюминиевые окна (более 100 м²).
Комфорт: 4 спальни (любая может быть мастер-спальней), кабинет, СПА-зона с парной.
Дизайн и отделка: полная дизайнерская отделка, «парящая» лестница, полы с подогревом, умные потолки.
Технологии: система «умный дом» (голосовое управление), приточно-вытяжная вентиляция с кондиционированием, антиобледенительные системы.
Уникальная деталь: 2 живых дуба, интегрированных в террасу.
Коммуникации: Все центральные (газ, вода, электричество).
Планировка:
1 этаж — общественная и гостевая зоны: большая кухня-столовая-гостиная, объединенная с террасой. Изолированный кабинет. Мастер-спальня с собственной гардеробной и санузлом. Отдельный СПА-блок: парная, комната отдыха, санузел. Прихожая; гардеробная; Котельная. Парковка на 4 машиноместа. 4 террасы, включая патио с живыми дубами.
2 этаж — приватная спальная зона: Три изолированные спальни, каждая с индивидуальной гардеробной и санузлом. Любая из спален может быть обустроена как вторая мастер-спальня. Две просторные террасы для отдыха.
Поселок «Московский Писатель» обжитой, с собственной инфраструктурой, в состав которой входит гастроном, больница, школа, детские и спортивные площадки. Более развернутая социально значимая инфраструктура расположена в ближайших поселках Внуково и Абабурово. На закрытой охраняемой территории посёлка всегда царят чистота и порядок, здесь можно получить полноценный отдых и по-настоящему насладиться плавным течением жизни, позабыв обо всех заботах.
Срок сдачи дома октябрь 2026 года