Подпишитесь на новости Villagio
Мы ценим ваше время
Современный красивый коттедж для большой семьи в поселке Мозжинка!
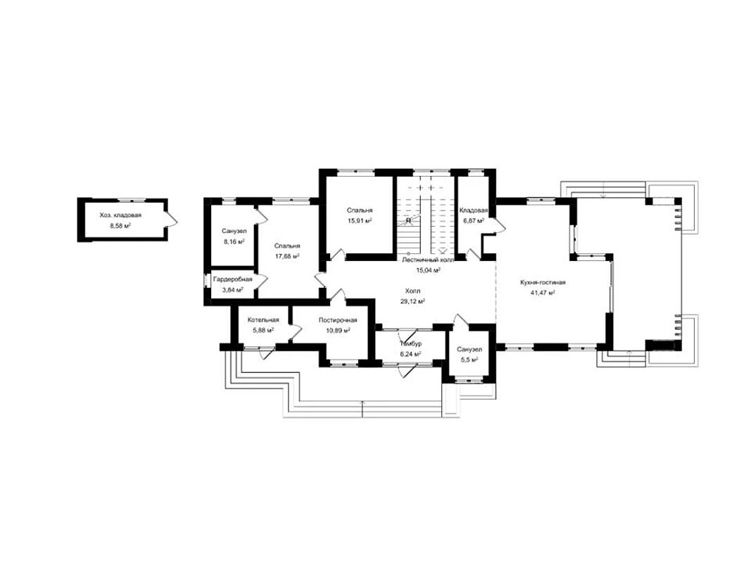
Дом площадью 380 м² включает 6 спален и 5 санузлов, есть гардеробные. Высота потолков на обоих этажах составляет 3,40 м, а панорамное остекление создает ощущение простора и света. Продуманная удобная планировка и большие открытые террасы обеспечивают комфорт и уют для каждого члена семьи. В этом доме много пространства и воздуха, что позволяет ощущать себя максимально удобно и свободно.
Коттедж расположен в камерном охраняемом поселке "Мозжинка", окруженном лесом, всего в нескольких минутах от городской инфраструктуры Звенигорода.
Дом построен на участке площадью 25 соток, внутренняя отделка выполнена в стиле white box, при желании покупателя возможно изменение цветового решения фасада. Внутри можно реализовать любые дизайнерские идеи и сделать дом по своему вкусу.
Поэтажная планировка:
на первом этаже расположены: кухня-столовая с выходом на открытую террасу, просторная гостиная, холл, спальня с санузлом и гардеробной, кабинет, технические помещения и котельная.
Второй этаж включает: три спальни с собственными санузлами и гардеробными; у двух спален есть выход на эксплуатируемую кровлю. Также есть кабинет или игровая зона.
Участок частично засажен взрослыми лесными деревьями, создающими ощущение уединенности и спокойствия. Выполняется ландшафтный дизайн и мощение дорожек, что дополняет уют окружающей территории.
Поселок "Мозжинка" отличается комфортной атмосферой, круглосуточной охраной и удобной транспортной доступностью. В пешей доступности находятся школы, магазины и другие объекты инфраструктуры Звенигорода, работает доставка продуктов.
Делегируйте подбор или продажу экспертам вашего уровня
искусство загородной жизниПолучите персональную коллекцию от эксперта Villagio




Современный красивый коттедж для большой семьи в поселке Мозжинка!
Дом площадью 380 м² включает 6 спален и 5 санузлов, есть гардеробные. Высота потолков на обоих этажах составляет 3,40 м, а панорамное остекление создает ощущение простора и света. Продуманная удобная планировка и большие открытые террасы обеспечивают комфорт и уют для каждого члена семьи. В этом доме много пространства и воздуха, что позволяет ощущать себя максимально удобно и свободно.
Коттедж расположен в камерном охраняемом поселке «Мозжинка», окруженном лесом, всего в нескольких минутах от городской инфраструктуры Звенигорода.
Дом построен на участке площадью 25 соток, внутренняя отделка выполнена в стиле white box, при желании покупателя возможно изменение цветового решения фасада. Внутри можно реализовать любые дизайнерские идеи и сделать дом по своему вкусу.
Поэтажная планировка:
на первом этаже расположены: кухня-столовая с выходом на открытую террасу, просторная гостиная, холл, спальня с санузлом и гардеробной, кабинет, технические помещения и котельная.
Второй этаж включает: три спальни с собственными санузлами и гардеробными; у двух спален есть выход на эксплуатируемую кровлю. Также есть кабинет или игровая зона.
Участок частично засажен взрослыми лесными деревьями, создающими ощущение уединенности и спокойствия. Выполняется ландшафтный дизайн и мощение дорожек, что дополняет уют окружающей территории.
Поселок «Мозжинка» отличается комфортной атмосферой, круглосуточной охраной и удобной транспортной доступностью. В пешей доступности находятся школы, магазины и другие объекты инфраструктуры Звенигорода, работает доставка продуктов.