Подпишитесь на новости Villagio
Мы ценим ваше время
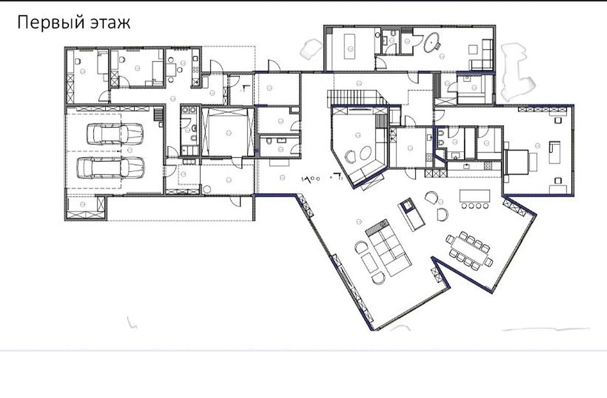
Просторный двухэтажный дом площадью 970 м2, расположенный на видовом участке 33.6 сотки с естественным уклоном. На участке сделан ландшафт, освещение, дренаж, ливневая канализация, установлен автополив. Построен уличный дровяной камин.
Фасад дома отделан клинкерной плиткой Feldhaus, натуральным сланцем, лиственницей. Терраса первого этажа - лиственница, натуральный сланец. Терраса на 2 этаже покрыта доской и природной галькой. Остекление Schuco.
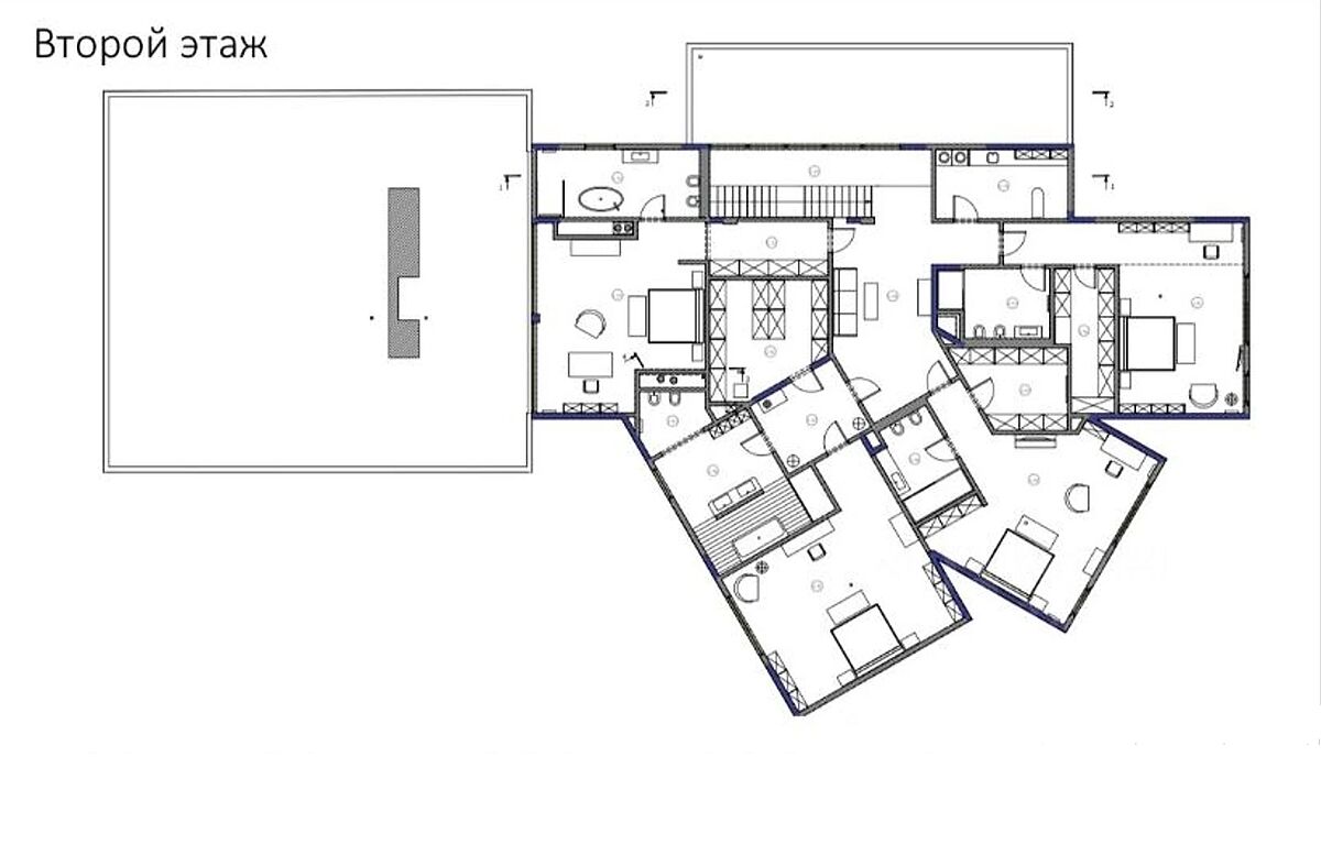
Дом в формате "под чистовую отделку" включает в себя 5 спальных блоков с санузлами и гардеробными. Одна из спален расположена на первом этаже.
В доме установлена и запущена приточно-вытяжная система Breezart /кондиционирование Daikin. Выполнена инженерная часть по сантехнике и электричеству - сделана сантехническая разводка, теплые полы, завершена электрическая разводка, установлены и запущены конвекторы Molenhoff, радиаторы Arbonia.
В доме запланированы: Спа-зона, домашний кинотеатр, рабочая кухня. Гараж на 2 м/м. Блок для персонала с отдельным входом: 2 спальни, душевая/постирочная, санузел, кухня, котельная.
«Резиденции Берёзки» — принципиально новый элитный коттеджный посёлок на рынке загородной недвижимости ближнего Подмосковья. Дома в «Берёзках» подойдут для людей, которые предпочитают современную европейскую архитектуру, развитую инфраструктуру возле дома и богатое природное окружение. Посёлок расположены в тихом уголке Рублёвки в окружении чистого воздуха, берёзовых рощ и реки, которую дополняет каскад прудов.
Делегируйте подбор или продажу экспертам вашего уровня
искусство загородной жизниПолучите персональную коллекцию от эксперта Villagio




Просторный двухэтажный дом площадью 970 м2, расположенный на видовом участке 33.6 сотки с естественным уклоном. На участке сделан ландшафт, освещение, дренаж, ливневая канализация, установлен автополив. Построен уличный дровяной камин.
Фасад дома отделан клинкерной плиткой Feldhaus, натуральным сланцем, лиственницей. Терраса первого этажа — лиственница, натуральный сланец. Терраса на 2 этаже покрыта доской и природной галькой. Остекление Schuco.
Дом в формате «под чистовую отделку» включает в себя 5 спальных блоков с санузлами и гардеробными. Одна из спален расположена на первом этаже.
В доме установлена и запущена приточно-вытяжная система Breezart /кондиционирование Daikin. Выполнена инженерная часть по сантехнике и электричеству — сделана сантехническая разводка, теплые полы, завершена электрическая разводка, установлены и запущены конвекторы Molenhoff, радиаторы Arbonia.
В доме запланированы: Спа-зона, домашний кинотеатр, рабочая кухня. Гараж на 2 м/м. Блок для персонала с отдельным входом: 2 спальни, душевая/постирочная, санузел, кухня, котельная.
«Резиденции Берёзки» — принципиально новый элитный коттеджный посёлок на рынке загородной недвижимости ближнего Подмосковья. Дома в «Берёзках» подойдут для людей, которые предпочитают современную европейскую архитектуру, развитую инфраструктуру возле дома и богатое природное окружение. Посёлок расположены в тихом уголке Рублёвки в окружении чистого воздуха, берёзовых рощ и реки, которую дополняет каскад прудов.