Подпишитесь на новости Villagio
Мы ценим ваше время
Загородный дом площадью 310 кв. м расположен на участке 12 соток в престижном коттеджном поселке «Загорье», всего в 17 км от Рублево-Успенского шоссе. Дом выполнен в современном архитектурном стиле с плоской кровлей и фасадом, акцентированным панорамным остеклением, которое наполняет помещения естественным светом и визуально объединяет интерьер с окружающим ландшафтом.
Проект предлагается с дизайнерской отделкой «под ключ» и полностью укомплектован мебелью и техникой, что позволяет сразу заселиться без дополнительных затрат на оформление.
Планировка тщательно продумана для комфортного проживания: просторная гостиная с камином создает уютную атмосферу, кухня-столовая с выходом на террасу идеально подходит для семейных обедов и приема гостей на свежем воздухе.
В доме три спальни, каждая с индивидуальным характером, ванная комната с окном, создающая ощущение простора и естественного освещения, а также вместительная гардеробная для удобного хранения вещей.
Безопасность обеспечивается круглосуточной охраной, видеонаблюдением по всему периметру участка и контрольно-пропускным пунктом на въезде, что гарантирует высокий уровень защиты и приватности для жильцов.
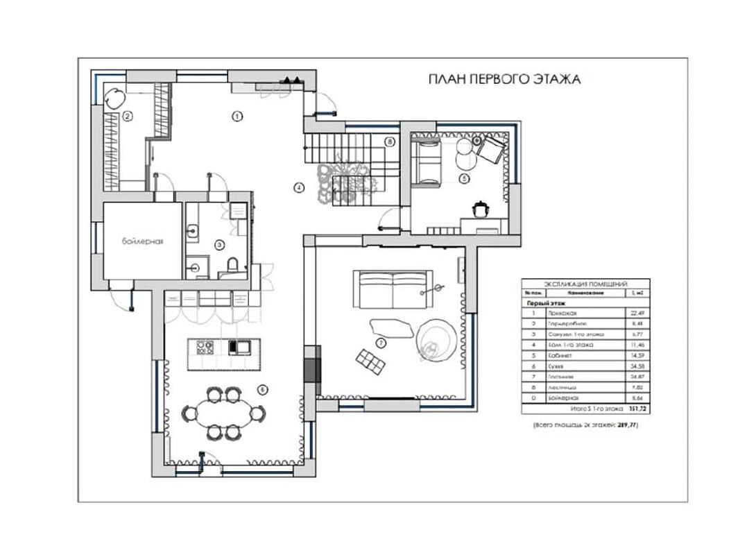
Планировка:
1-й этаж:
просторная прихожая, гардеробная, бойлерная, санузел гостевой, холл ,кабинет/гостевая спальня, кухня-столовая (34,6 м), гостиная с двусторонним камином (34,9 м).
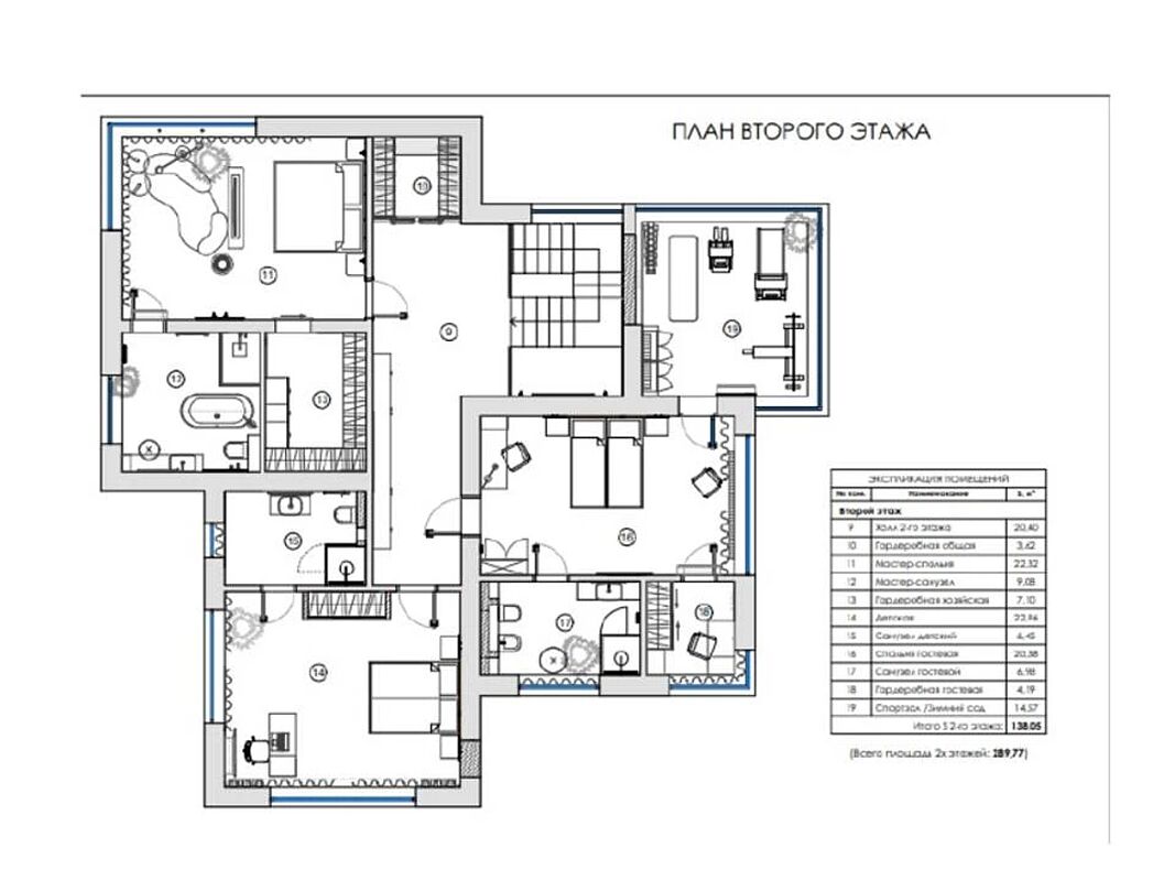
2-й этаж:
мастер спальня (22,32 м) с панорамным остеклением, с ванной и гардеробной комнатами, гардеробная, детская спальня (23 м) с с/у, гостевая спальня (20,38 м) с ванной и гардеробной комнатами, а также с зимним садом (спортзал).
Коттеджный поселок Загорье открывает свои двери для тех, кто любит комфорт. Он расположен в 15 км от Москвы на лесной опушке и представляет собой 160 респектабельных домовладений, построенных по уникальным архитектурным проектам. Все это сочетается с уютом загородной жизни и обилием чистого свежего воздуха. Покупка дома в поселке Загорье – это выбор тех, кто хочет жить в современном доме и не готов жертвовать комфортом и уютом.
Делегируйте подбор или продажу экспертам вашего уровня
искусство загородной жизниПолучите персональную коллекцию от эксперта Villagio




Загородный дом площадью 310 кв. м расположен на участке 12 соток в престижном коттеджном поселке «Загорье», всего в 17 км от Рублево-Успенского шоссе. Дом выполнен в современном архитектурном стиле с плоской кровлей и фасадом, акцентированным панорамным остеклением, которое наполняет помещения естественным светом и визуально объединяет интерьер с окружающим ландшафтом.
Проект предлагается с дизайнерской отделкой «под ключ» и полностью укомплектован мебелью и техникой, что позволяет сразу заселиться без дополнительных затрат на оформление.
Планировка тщательно продумана для комфортного проживания: просторная гостиная с камином создает уютную атмосферу, кухня-столовая с выходом на террасу идеально подходит для семейных обедов и приема гостей на свежем воздухе.
В доме три спальни, каждая с индивидуальным характером, ванная комната с окном, создающая ощущение простора и естественного освещения, а также вместительная гардеробная для удобного хранения вещей.
Безопасность обеспечивается круглосуточной охраной, видеонаблюдением по всему периметру участка и контрольно-пропускным пунктом на въезде, что гарантирует высокий уровень защиты и приватности для жильцов.
Планировка:
1-й этаж:
просторная прихожая, гардеробная, бойлерная, санузел гостевой, холл,кабинет/гостевая спальня, кухня-столовая (34,6 м), гостиная с двусторонним камином (34,9 м).
2-й этаж:
мастер спальня (22,32 м) с панорамным остеклением, с ванной и гардеробной комнатами, гардеробная, детская спальня (23 м) с с/у, гостевая спальня (20,38 м) с ванной и гардеробной комнатами, а также с зимним садом (спортзал).
Коттеджный поселок Загорье открывает свои двери для тех, кто любит комфорт. Он расположен в 15 км от Москвы на лесной опушке и представляет собой 160 респектабельных домовладений, построенных по уникальным архитектурным проектам. Все это сочетается с уютом загородной жизни и обилием чистого свежего воздуха. Покупка дома в поселке Загорье — это выбор тех, кто хочет жить в современном доме и не готов жертвовать комфортом и уютом.