Подпишитесь на новости Villagio
Мы ценим ваше время
Дом в охраняемом поселке с удобным выездом на платную дорогу.
Эксклюзивное предложение: стильный дом 487 м² под ключ с полной меблировкой, расположенный на живописном участке площадью 11 соток в поселке «Территория Усадьбы Подушкинского Лесопарка». Всего 10 км от Москвы по Рублево-Успенскому шоссе или платной дороге — идеальное сочетание уединения и удобства.
Дом, построенный в 2020 году, включает 4 просторных спальни, гараж на две машины с зарядными станциями для электрокаров и уютную сауну — всё создано для комфортной и роскошной жизни.
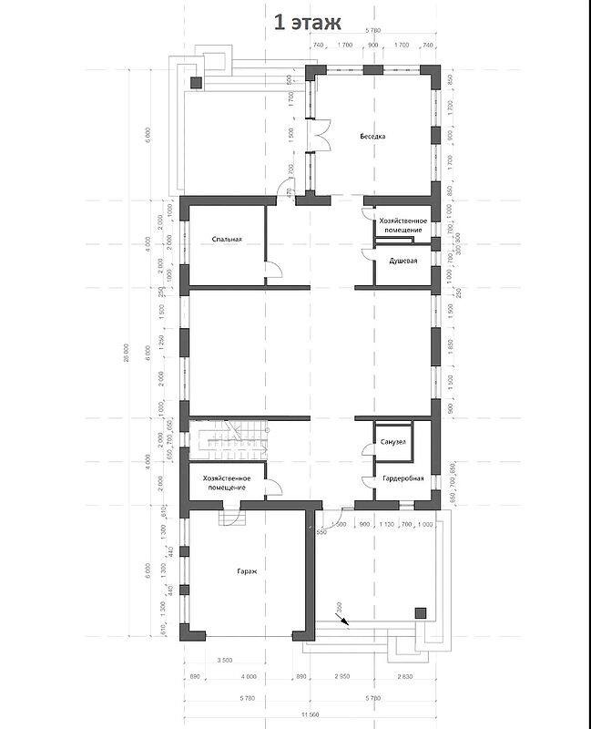
Планировка дома:
Цокольный этаж: просторная зона для отдыха и активного времяпрепровождения — тренажерный зал, домашний кинозал, сауна, санузел, постирочная, бойлерная.
Первый этаж: просторная прихожая с гардеробной, гостевой санузел, светлая гостиная-кухня-столовая в едином стиле-студии, гостевая спальня, санузел, теплая веранда с выходом на террасу и ухоженный участок. Гараж на две машины оборудован зарядками для электромобилей.
Второй этаж: холл, три спальни с собственными санузлами, рабочий кабинет.
Перед домом просторная парковка для гостей и семьи.
Все коммуникации — магистральный газ, центральное водоснабжение с дополнительной скважиной, индивидуальная канализация и электроснабжение мощностью 15 кВт.
В Подушкино, где расположен поселок, есть все необходимое для комфортной жизни: школы, кафе, магазины, АЗС, детские сады, конные клубы, медицинские центры.
Недалеко от “Усадьбы Подушкинского лесопарка” находятся такие населенные пункты, как Рождественно, Шульгино, Мамоново, Трехгорка, Ромашково и Лохино.
Этот уникальный дом — идеальное место для тех, кто ценит комфорт, эстетику и природу вблизи столицы.
Делегируйте подбор или продажу экспертам вашего уровня
искусство загородной жизниПолучите персональную коллекцию от эксперта Villagio




Дом в охраняемом поселке с удобным выездом на платную дорогу.
Эксклюзивное предложение: стильный дом 487 м² под ключ с полной меблировкой, расположенный на живописном участке площадью 11 соток в поселке «Территория Усадьбы Подушкинского Лесопарка». Всего 10 км от Москвы по Рублево-Успенскому шоссе или платной дороге — идеальное сочетание уединения и удобства.
Дом, построенный в 2020 году, включает 4 просторных спальни, гараж на две машины с зарядными станциями для электрокаров и уютную сауну — всё создано для комфортной и роскошной жизни.
Планировка дома:
Цокольный этаж: просторная зона для отдыха и активного времяпрепровождения — тренажерный зал, домашний кинозал, сауна, санузел, постирочная, бойлерная.
Первый этаж: просторная прихожая с гардеробной, гостевой санузел, светлая гостиная-кухня-столовая в едином стиле-студии, гостевая спальня, санузел, теплая веранда с выходом на террасу и ухоженный участок. Гараж на две машины оборудован зарядками для электромобилей.
Второй этаж: холл, три спальни с собственными санузлами, рабочий кабинет.
Перед домом просторная парковка для гостей и семьи.
Все коммуникации — магистральный газ, центральное водоснабжение с дополнительной скважиной, индивидуальная канализация и электроснабжение мощностью 15 кВт.
В Подушкино, где расположен поселок, есть все необходимое для комфортной жизни: школы, кафе, магазины, АЗС, детские сады, конные клубы, медицинские центры.
Недалеко от «Усадьбы Подушкинского лесопарка» находятся такие населенные пункты, как Рождественно, Шульгино, Мамоново, Трехгорка, Ромашково и Лохино.
Этот уникальный дом — идеальное место для тех, кто ценит комфорт, эстетику и природу вблизи столицы.