Подпишитесь на новости Villagio
Мы ценим ваше время
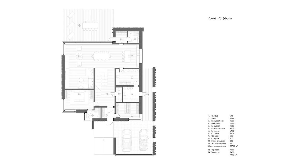
Резиденция премиум-класса площадью 450 м². Современная архитектура и продуманная функциональная планировка создают комфортное пространство для жизни.
Дом выполнен из качественных материалов:
- Стены: кирпич;
- Перекрытия: монолитные железобетонные конструкции;
- Окна: панорамные с алюминиевыми профилями;
- Фасад: керамогранит и термоясень;
- Крыша: надежная плоская кровля.
Помимо просторных общественных зон, дом оборудован 4 спальнями с индивидуальными санузлами и вместительными гардеробными комнатами.
Участок площадью 27,7 соток расположен на первой линии реки, имеет прямой выход к воде и открывается восхитительным пейзажем природы Подмосковья. Категория участка позволяет оформление постоянной регистрации.
Подключены все необходимые инженерные системы:
- Электричество;
- Централизованное водоснабжение и водоотведение;
- Система ливневой канализации.
Просторный участок 27,7 соток с видом на реку и с прямым выходом к воде. Ровный рельеф, сухой грунт.
Камерный посёлок всего на 5 домов на первой береговой линии. Вход на территорию осуществляется через охраняемый КПП с контролем доступа. 44 сотки оборудованы специально для общественного пользования, образуя прекрасную рекреационную зону прямо на берегу реки.
Это идеальное предложение для тех, кто ценит уединение, престиж и качество жизни рядом с природой. Отличный выбор для семьи, предпочитающей размеренный ритм загородной жизни вдали от городской суеты.
Делегируйте подбор или продажу экспертам вашего уровня
искусство загородной жизниПолучите персональную коллекцию от эксперта Villagio




Резиденция премиум-класса площадью 450 м². Современная архитектура и продуманная функциональная планировка создают комфортное пространство для жизни.
Дом выполнен из качественных материалов:
- Стены: кирпич;
- Перекрытия: монолитные железобетонные конструкции;
- Окна: панорамные с алюминиевыми профилями;
- Фасад: керамогранит и термоясень;
- Крыша: надежная плоская кровля.
Помимо просторных общественных зон, дом оборудован 4 спальнями с индивидуальными санузлами и вместительными гардеробными комнатами.
Участок площадью 27,7 соток расположен на первой линии реки, имеет прямой выход к воде и открывается восхитительным пейзажем природы Подмосковья. Категория участка позволяет оформление постоянной регистрации.
Подключены все необходимые инженерные системы:
- Электричество;
- Централизованное водоснабжение и водоотведение;
- Система ливневой канализации.
Просторный участок 27,7 соток с видом на реку и с прямым выходом к воде. Ровный рельеф, сухой грунт.
Камерный посёлок всего на 5 домов на первой береговой линии. Вход на территорию осуществляется через охраняемый КПП с контролем доступа. 44 сотки оборудованы специально для общественного пользования, образуя прекрасную рекреационную зону прямо на берегу реки.
Это идеальное предложение для тех, кто ценит уединение, престиж и качество жизни рядом с природой. Отличный выбор для семьи, предпочитающей размеренный ритм загородной жизни вдали от городской суеты.