Подпишитесь на новости Villagio
Мы ценим ваше время
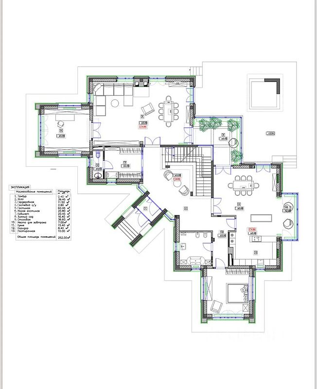
Планировка основного дома: 1 этаж: гостиная, гардеробная, гостевой с/у, малая гостиная, кабинет, зимний сад, столовая, кухня, постирочная. 2 этаж: детская-гостевая, детская, 3 мастер-спальни.
Ключевые характеристики:
* Участок: 30 соток
* Общая площадь зданий: 1123,1 м²
* Состав ансамбля:
* Основной дом: 571 м²
* Пристроенный СПА-комплекс: 346,5 м²
* Гараж с комнатами персонала: 205,6 м²
* Год комплексной реновации: 2020. Состояние — идеальное, как у нового дома.
* Впечатляющий вход: Панорамное остекление, зимний сад и сквозные виды во внутренний двор создают эффект бесконечного пространства и света.
* Эксклюзивные интерьеры: В отделке использованы только натуральные материалы — мрамор, камень, ценные породы дерева. Стены украшены обоями ручной работы (Dedar) и уникальной художественной росписью.
* Просторная кухня-столовая: Выделена стеклянными стенами для изоляции шумов и запахов, с сохранением визуальной легкости и обилием естественного света.
* Гостевая зона: На первом этаже расположена уютная спальня с собственной ванной комнатой и гардеробной.
* Великолепная лестница: Ведет на второй этаж в мастер-спальню — настоящую зону роскоши. Ее дополняют:
* Уютная лоджия.
* Камин с расписными изразцами.
* Роскошная отделка: расписной потолок, обои Ralph Lauren, мебель от Baker Furniture и Ralph Lauren.
* Просторная гардеробная и ванная комната, полностью выполненная из натурального камня и мрамора Petra.
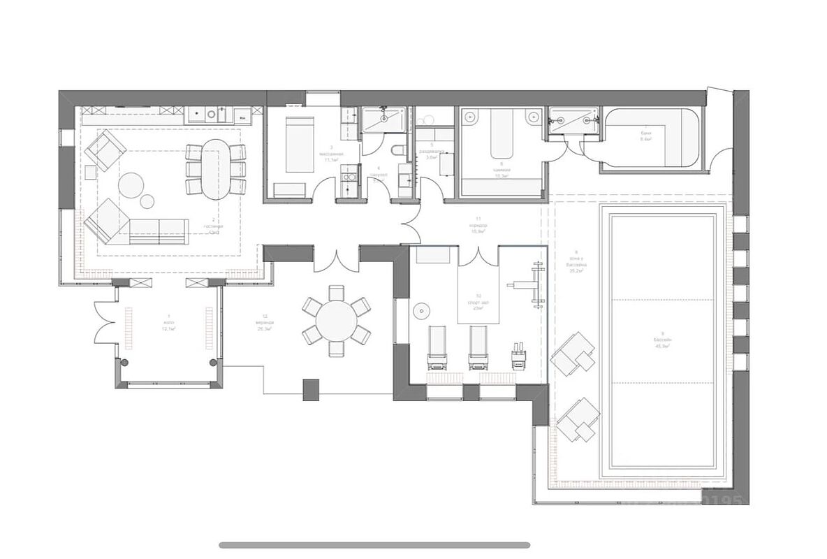
Личный СПА-комплекс: Рай для релаксации
Пристройка к дому, которая может работать как полностью автономная зона с отдельным входом с улицы.
* Бассейн: Отделан мозаикой ручной работы под расписным потолком.
* Хамам и сауна: Уникальный дизайн с эксклюзивной мозаикой и потолком «звездное небо».
* Элитная отделка: Стены отделаны деревянными панелями, пол — из благородного тика, ванные комнаты оформлены камнем Fmg Fabric.
* Технологии: Умный дом, встроенная кухня с скрытыми фасадами, система осушения воздуха в бассейне.
Инфраструктура и инженерия
* Гараж: Рассчитан на 2 автомобиля, с комфортабельными комнатами для персонала. На территории перед домом возможна парковка для 3-4 машин.
* Цокольный этаж: Вмещает все технические помещения: постирочную, холодильник для мехов, кладовые, электрощитовую.
* Инженерия: Установлена премиальная система кондиционирования Daikin и приточно-вытяжная вентиляция.
Бренды, определяющие уровень:
Ralph Lauren, Dedar, Pierre Frey, Visual Comfort, Baker Furniture, Christopher Guy, Miele, Fmg Fabrics, Kelly Wearstler.
Делегируйте подбор или продажу экспертам вашего уровня
искусство загородной жизниПолучите персональную коллекцию от эксперта Villagio




Планировка основного дома: 1 этаж: гостиная, гардеробная, гостевой с/у, малая гостиная, кабинет, зимний сад, столовая, кухня, постирочная. 2 этаж: детская-гостевая, детская, 3 мастер-спальни.
Ключевые характеристики:
* Участок: 30 соток
* Общая площадь зданий: 1123,1 м²
* Состав ансамбля:
* Основной дом: 571 м²
* Пристроенный СПА-комплекс: 346,5 м²
* Гараж с комнатами персонала: 205,6 м²
* Год комплексной реновации: 2020. Состояние — идеальное, как у нового дома.
* Впечатляющий вход: Панорамное остекление, зимний сад и сквозные виды во внутренний двор создают эффект бесконечного пространства и света.
* Эксклюзивные интерьеры: В отделке использованы только натуральные материалы — мрамор, камень, ценные породы дерева. Стены украшены обоями ручной работы (Dedar) и уникальной художественной росписью.
* Просторная кухня-столовая: Выделена стеклянными стенами для изоляции шумов и запахов, с сохранением визуальной легкости и обилием естественного света.
* Гостевая зона: На первом этаже расположена уютная спальня с собственной ванной комнатой и гардеробной.
* Великолепная лестница: Ведет на второй этаж в мастер-спальню — настоящую зону роскоши. Ее дополняют:
* Уютная лоджия.
* Камин с расписными изразцами.
* Роскошная отделка: расписной потолок, обои Ralph Lauren, мебель от Baker Furniture и Ralph Lauren.
* Просторная гардеробная и ванная комната, полностью выполненная из натурального камня и мрамора Petra.
Личный СПА-комплекс: Рай для релаксации
Пристройка к дому, которая может работать как полностью автономная зона с отдельным входом с улицы.
* Бассейн: Отделан мозаикой ручной работы под расписным потолком.
* Хамам и сауна: Уникальный дизайн с эксклюзивной мозаикой и потолком «звездное небо».
* Элитная отделка: Стены отделаны деревянными панелями, пол — из благородного тика, ванные комнаты оформлены камнем Fmg Fabric.
* Технологии: Умный дом, встроенная кухня с скрытыми фасадами, система осушения воздуха в бассейне.
Инфраструктура и инженерия
* Гараж: Рассчитан на 2 автомобиля, с комфортабельными комнатами для персонала. На территории перед домом возможна парковка для 3–4 машин.
* Цокольный этаж: Вмещает все технические помещения: постирочную, холодильник для мехов, кладовые, электрощитовую.
* Инженерия: Установлена премиальная система кондиционирования Daikin и приточно-вытяжная вентиляция.
Бренды, определяющие уровень:
Ralph Lauren, Dedar, Pierre Frey, Visual Comfort, Baker Furniture, Christopher Guy, Miele, Fmg Fabrics, Kelly Wearstler.